River Run South Condo 2 bedroom Condo For Sale
2475 Nw 16th St Rd, Unit 616, Miami, FL 33125

$299,876
Продажа
Людмила Богатов
Людмила Богатов
Брокер по недвижимости

Детали


  • МЛС номер:A11907924
  • Виртуальный тур: Да
  • Номер квартиры:616
  • Цена предложения: $299,876
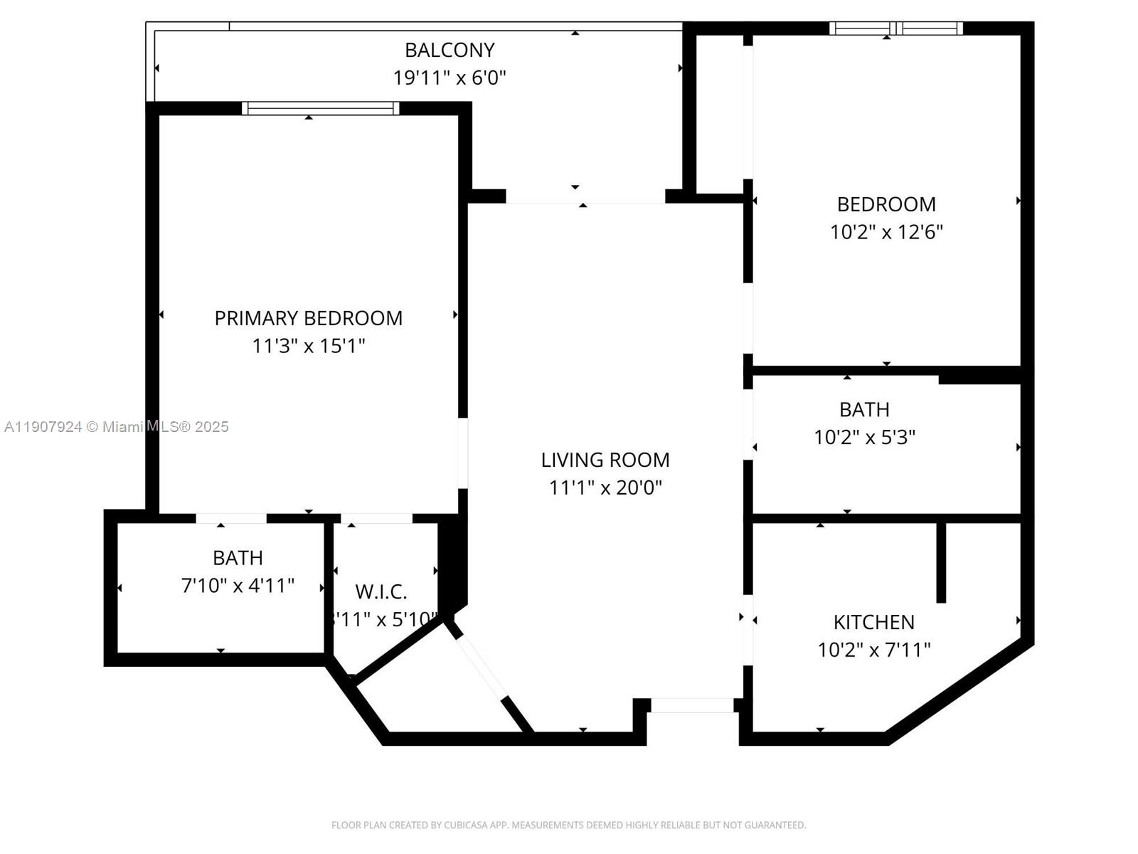
  • Жилая площадь: 807 фут² / 75 м²
  • Цена за фут/метр: $372 / $4,000
  • Комнаты:2
  • Полных ванн:2
  • Обслуживание:$521
  • Налоги:$2,399
  • Год строительства:2006
  • На канале:Да
  • Дата публикации:November 4, 2025
  • Дней на рынке:73

Описание


Look no further, come home and relax watching the boats travel up and down the Miami River, unit has washer and dryer inside the unit, all tiled, updated bathrooms and kitchen, unit is conveniently located near Jackson Memorial, UM Hospital, VA hospital making it a great location for Dr's and Nurses that work in the area. Located near expressways, shopping malls and houses for worship. Thank you for looking and remember to make it a Great, Sunny, South Florida Day! It's a Good Life!

Особенности


  • Полы:CeramicTile
  • Интерьер:BedroomOnMainLevel, FirstFloorEntry
  • Экстерьер:Porch
  • На канале:RiverFront

Расположение


Запросить информацию
Людмила Богатов
Людмила Богатов
Брокер по недвижимости

Другие квартиры в Майами


1800 Nw 24th Ave, Unit 314
Miami, FL 33125
$200,000
1740 Nw N River Dr, Unit 626
Miami, FL 33125
$399,999
2475 Nw 16th St Rd, Unit 601
Miami, FL 33125
$249,999
1861 Nw S River Dr, Unit 406
Miami, FL 33125
$449,895