734 Michigan Condo 2 bedroom Condo For Sale
734 Michigan Ave, Unit 7, Miami Beach, FL 33139

$1,570,000
Продажа
Людмила Богатов
Людмила Богатов
Брокер по недвижимости

Детали


  • МЛС номер:A11937676
  • Виртуальный тур: Да
  • Номер квартиры:7
  • Цена предложения: $1,570,000
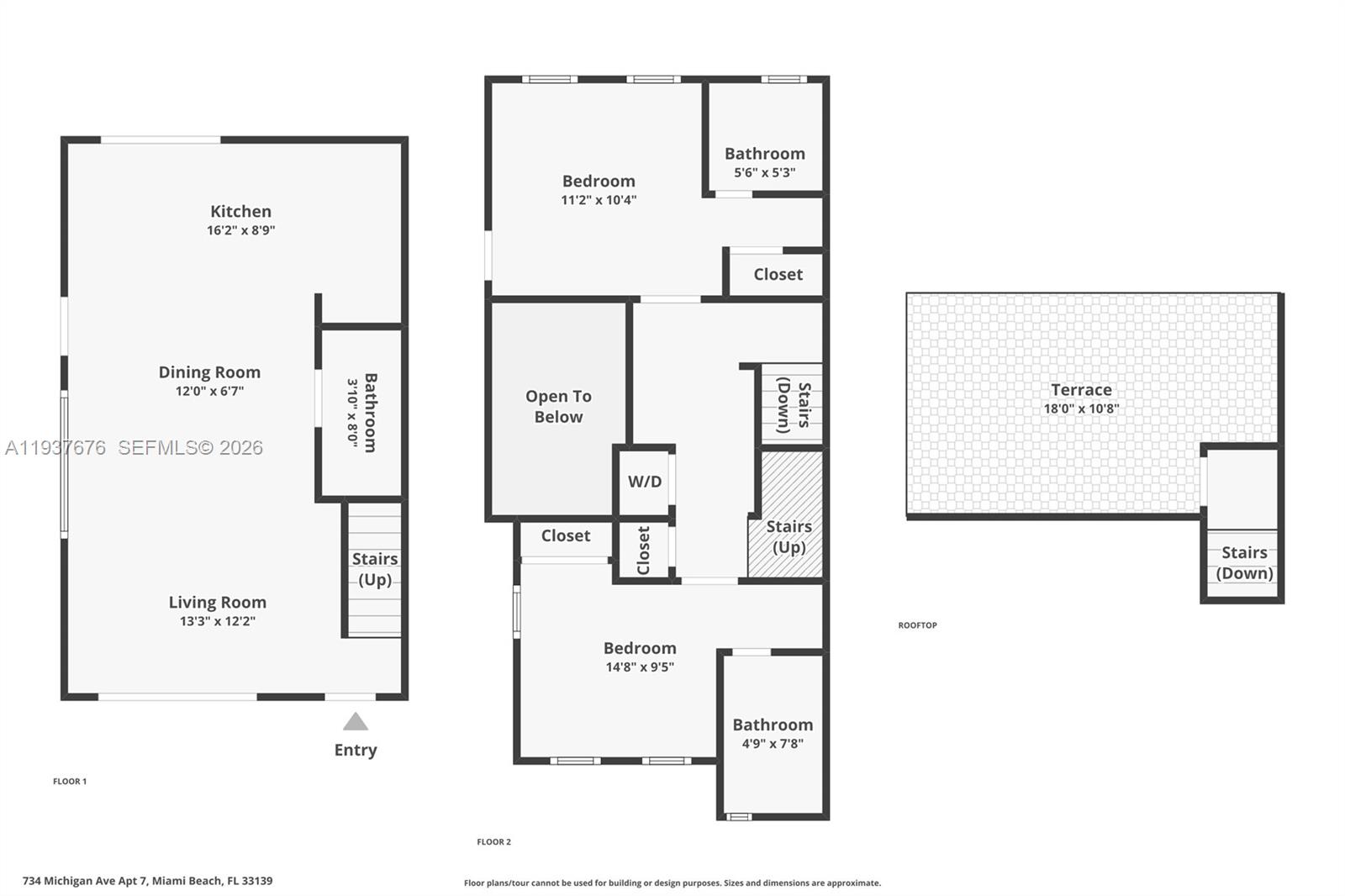
  • Жилая площадь: 1428 фут² / 133 м²
  • Цена за фут/метр: $1,099 / $11,834
  • Комнаты:2
  • Полных ванн:2
  • Неполных ванн:1
  • Обслуживание:$557
  • Налоги:$12,240
  • Год строительства:2006
  • Дата публикации:January 2, 2026
  • Дней на рынке:111

Описание


Modern Tri-level townhouse loft style 2 bedrooms, 2.5 bath with 1428 sq feet under A/C residence. Space boasts soaring 28' ceilings, completed with luxury finishes and appliances in South Beach.The second level offers 2 comfortable bedrooms with in-suite bathrooms plus washer and dryer. Dramatic floor-to-ceiling, high impact resistant windows and stained concrete flooring throughout. Includes 1 covered assigned parking in a gated garage. Walking distance to the beach, Flamingo Park, Lincoln Road, shops and restaurants. Publix, Total Wine and Whole Foods are just around the corner. Quiet and secure boutique building with only 7 units without the hassle of high rise living. Generating $6600 per month. Very low maintenance fee

Особенности


  • Полы:Concrete
  • Интерьер:BuiltInFeatures, ClosetCabinetry, FirstFloorEntry, HighCeilings, KitchenIsland, KitchenDiningCombo, LivingDiningRoom, SplitBedrooms
  • Экстерьер:Balcony, Deck, SecurityHighImpactDoors
Запросить информацию
Людмила Богатов
Людмила Богатов
Брокер по недвижимости

Другие квартиры в Майами Бич


1881 Washington Ave, Unit 11D
Miami Beach, FL 33139
$415,000
101 20th St, Unit 3806
Miami Beach, FL 33139
$4,975,000
1100 West Ave, Unit 916
Miami Beach, FL 33139
$795,000
650 West Ave, Unit 2801
Miami Beach, FL 33139
$1,699,999