Cambridge E Condo 1 bedroom Condo For Sale
1116 E Cambridge E, Unit 1116, Deerfield Beach, FL 33442

$145,000
Под контрактом Продажа
Людмила Богатов
Людмила Богатов
Брокер по недвижимости

Детали


  • МЛС номер:A11957816
  • Виртуальный тур: Да
  • Номер квартиры:1116
  • Цена предложения: $145,000
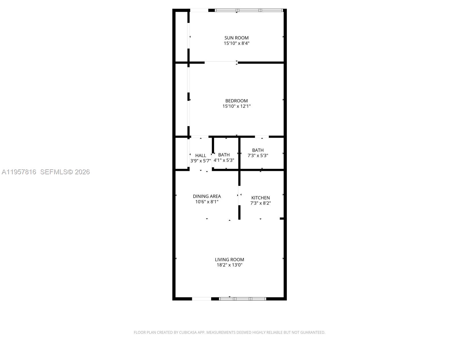
  • Жилая площадь: 700 фут² / 65 м²
  • Цена за фут/метр: $207 / $2,230
  • Комнаты:1
  • Полных ванн:1
  • Неполных ванн:1
  • Обслуживание:$693
  • Налоги:$2,976
  • Год строительства:1975
  • На канале:Да
  • Дата публикации:February 5, 2026
  • Дней на рынке:77

Описание


This stunning, fully remodeled 1 bedroom, 1 and a half bath condo is ideally located and move in ready. Enjoy spectacular all day water views from the oversized Florida room, an inviting space that immediately captures your attention. The home features a gorgeous brand new quartz kitchen with modern white cabinetry, stainless steel appliances, and an open counter perfect for casual dining and a new Electrical Panel. Contemporary tile flooring and warm modern window treatments enhance the clean, stylish interior. Resort style amenities are just steps away, including a beautiful resort pool directly across the street and a five star world class clubhouse offering a fitness center, exercise rooms, woodworking, art, ceramics, music, and dance classes. Enjoy movies, live shows, and access to over seventy active clubs. Fine dining and quality shopping are conveniently nearby. This is truly a must see opportunity.

Особенности


  • Полы:Tile
  • Интерьер:BedroomOnMainLevel, ClosetCabinetry, FirstFloorEntry, LivingDiningRoom, MainLivingAreaEntryLevel, TubShower
  • Экстерьер:Other
  • На канале:LakeFront

Расположение


Запросить информацию
Людмила Богатов
Людмила Богатов
Брокер по недвижимости

Другие квартиры в Дирфилд Бич


244 Durham F, Unit 244
Deerfield Beach, FL 33442
$105,500
1011 Westbury F, Unit 1011
Deerfield Beach, FL 33442
$85,000
4031 Berkshire, Unit 4031
Deerfield Beach, FL 33442
$60,000
143 Oakridge J, Unit 143
Deerfield Beach, FL 33442
$108,000