Hillmont Middle River Vis 3 bedroom Single Family House For Sale
2013 Nw 11th Ave, Fort Lauderdale, FL 33311

$200,000
Продано
Людмила Богатов
Людмила Богатов
Брокер по недвижимости

Детали


  • МЛС номер:A10927425
  • Виртуальный тур: Да
  • Цена предложения: $225,000
  • Цена продажи: $200,000
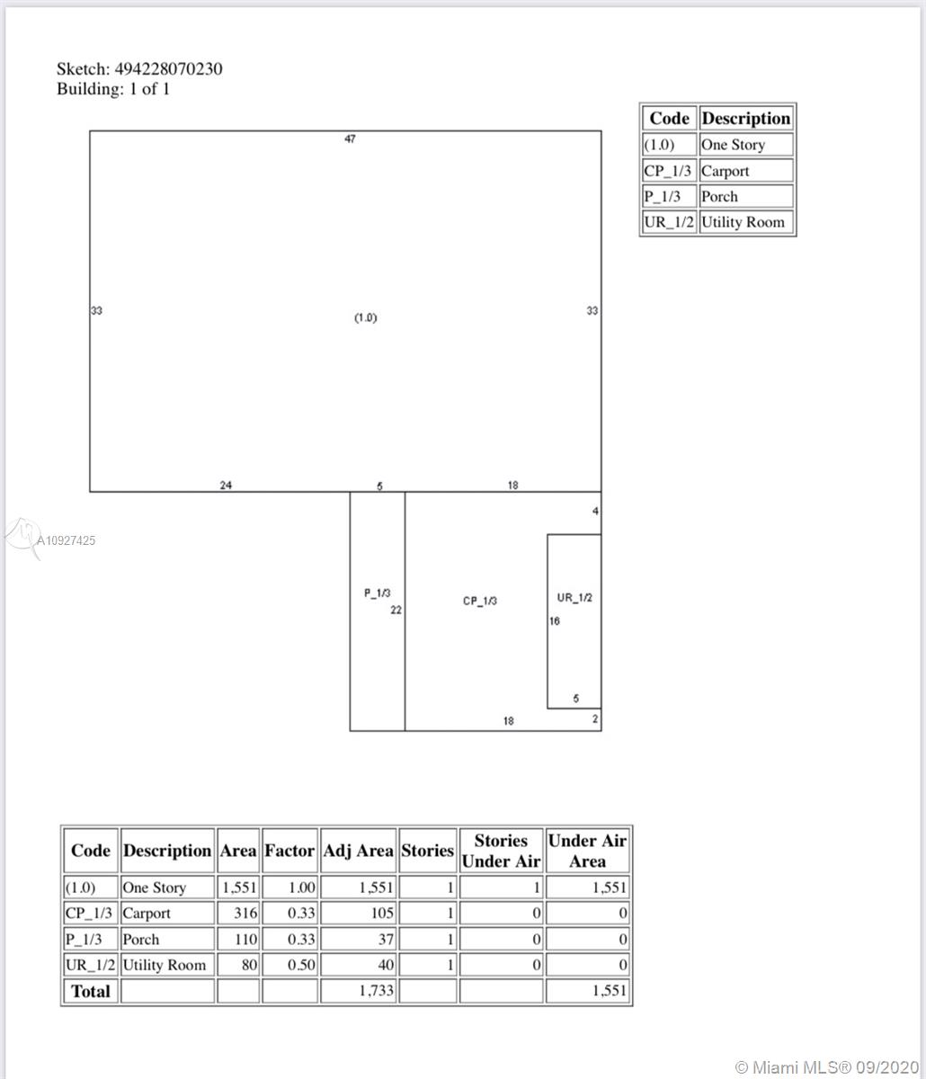
  • Жилая площадь: 1551 фут² / 144 м²
  • Цена за фут/метр: $129 / $1,388
  • Комнаты:3
  • Полных ванн:2
  • Налоги:$892
  • Год строительства:1958
  • Дата публикации:September 15, 2020
  • Дата продажи: October 9, 2020
  • Дней на рынке:23

Описание


PERFECT FOR INVESTORS! Bring your remodeling crew along. Single Family, 3 bedrooms 2 baths ONE STORY. Impact Hurricane Windows. Central AC. Driveway can hold at least 4 cars. Quiet Neighborhood and close to Beaches, Hard Rock, major highways. This place has no association payments. Take advantage of the tax incentives since this place is located in an opportunity zone!

Особенности


  • Полы:Carpet
  • Интерьер:BedroomonMainLevel, FirstFloorEntry, MainLevelMaster
  • Экстерьер:SecurityHighImpactDoors

Расположение


Запросить информацию
Людмила Богатов
Людмила Богатов
Брокер по недвижимости

Другие дома в Форт Лодердейл


272 Nw 31st Ave
Fort Lauderdale, FL 33311
$465,000
2217 Nw 4th Ave
Wilton Manors, FL 33311
$699,000
535 Nw 29th Ter
Fort Lauderdale, FL 33311
$364,900
316 Nw 29th St
Wilton Manors, FL 33311
$635,000