Ivanhoe Estates 5 bedroom Single Family House For Sale
15110 N Saxon Cir, Southwest Ranches, FL 33331

$2,699,000
Продажа
Людмила Богатов
Людмила Богатов
Брокер по недвижимости

Детали


  • МЛС номер:A11901946
  • Виртуальный тур: Да
  • Цена предложения: $2,699,000
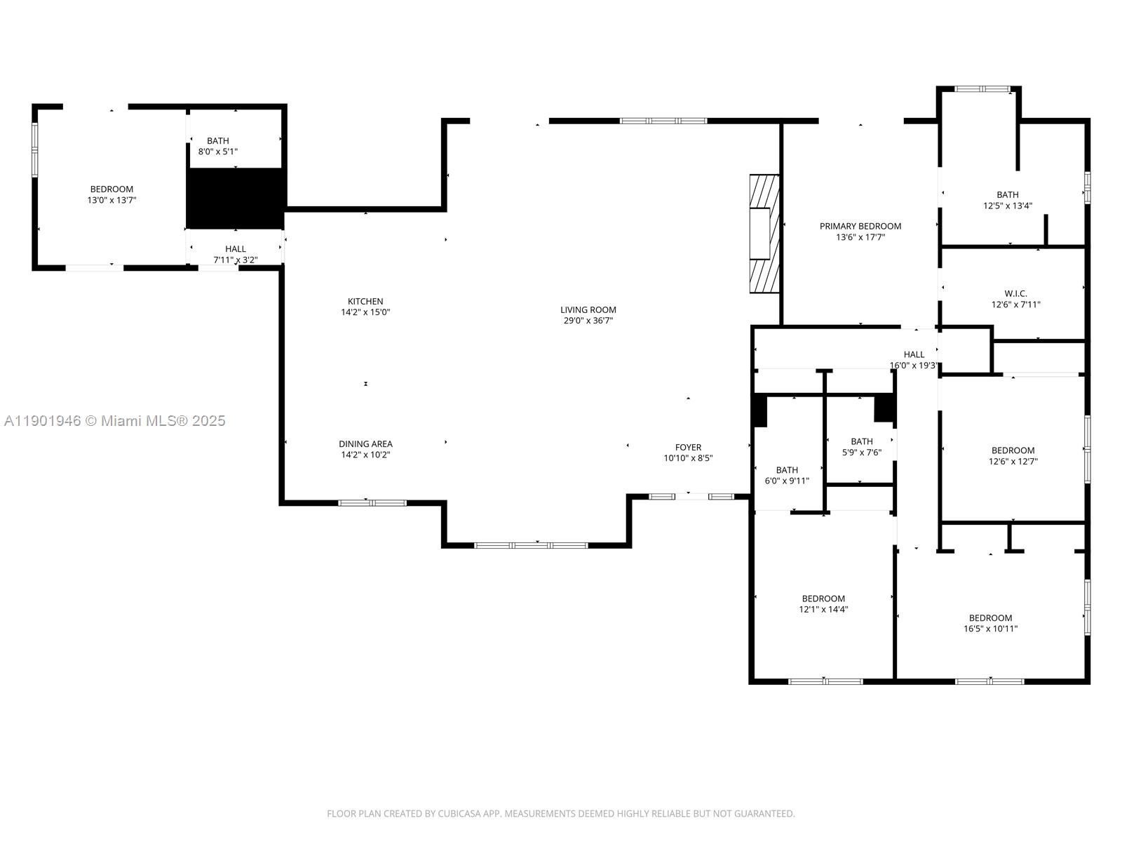
  • Жилая площадь: 2901 фут² / 270 м²
  • Цена за фут/метр: $930 / $10,014
  • Комнаты:5
  • Полных ванн:5
  • Обслуживание:$250
  • Налоги:$13,263
  • Год строительства:1981
  • Дата публикации:October 23, 2025
  • Дней на рынке:175

Описание


Homes are rarely available in SW Ranches' Ivanhoe Estates! This sanctuary sits on 1+ acre of manicured landscaping and fruit-tree splendor. Inside a fresh, contemporary vibe that flows effortlessly throughout the home. This 5/5 home features a primary suite PLUS two additional master bedrooms. The heart of the home: the great room-an open-concept that seamlessly integrates kitchen, dining, family and living spaces within once connected space. Luxury kitchen with Taj Mahal stone & high-end s/s appliances. A resort-style terrace with pool, oversized pergola and a full cabana bath! Move-in ready with impact windows/doors throughout, including garage. The split floor plan provides a perfect haven for multigenerational families, guest, or WFH professionals. Walkthru video available. Must see!

Особенности


  • Полы:Hardwood, Marble, Other, Tile, Wood
  • Интерьер:BedroomOnMainLevel, ClosetCabinetry, EatInKitchen, FirstFloorEntry, Fireplace, JettedTub, KitchenIsland, LivingDiningRoom, PullDownAtticStairs, SplitBedrooms, SeparateShower, WalkInClosets, Attic
  • Экстерьер:Fence, FruitTrees, Lighting, Patio, SecurityHighImpactDoors

Расположение


Запросить информацию
Людмила Богатов
Людмила Богатов
Брокер по недвижимости

Другие дома в Саутвест Ранчес


4394 Fox Ridge Dr
Weston, FL 33331
$1,190,000
3425 Saddlebrook Lane
Weston, FL 33331
$3,999,999
3520 Paddock Rd
Weston, FL 33331
$3,890,000
2905 Paddock Rd
Weston, FL 33331
$7,900,000