Estero Park For Sale
6081 Shelby Ln, Fort Myers, FL 33931

$690,000
Продажа
Людмила Богатов
Людмила Богатов
Брокер по недвижимости

Детали


  • МЛС номер:A11804301
  • Виртуальный тур: Да
  • Цена предложения: $690,000
  • Налоги:$4,240
  • Дата публикации:June 9, 2025
  • Дней на рынке:309

Описание


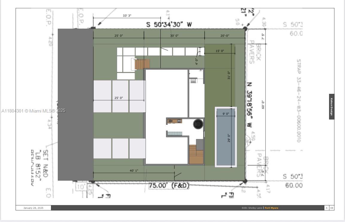
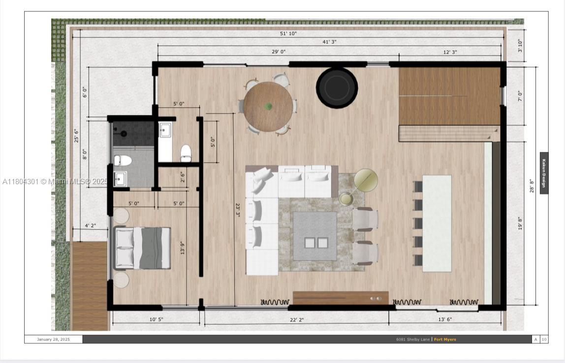
Build-Ready Luxury Estate Opportunity. A premier coastal lot offers the perfect blend of luxury design prime location& turnkey readiness—steps from the Gulf of Mexico. GULF SIDE. Luxury Poolside Living. Your future home includes a heated private swimming pool& an outdoor summer shower. Covered 145 sqft BBQ area. Build-Ready Specs Include: Lot size:75x75 ft, 3,078 sqft under AC, 4,012 total sqft, 3 Bedrooms+1 Flex Room, 4 Bathrooms (3 Full+1 Half), 3-story design with private elevator, Expansive balconies for Gulf views, Impact-resistant windows& doors, 3-car garage& elevated construction. Located on a quiet upscale street of multimillion-dollar homes, minutes from dining& marinas. Architectural & engineering plans included. Geotechnical surveys have been completed, and according to engineering calculations, the project does not require foundation piles, which significantly reduces construction costs. ALL INFORMATION FROM THE SELLER AND MUST BE VERIFIED BY THE BUYER!

Расположение


Запросить информацию
Людмила Богатов
Людмила Богатов
Брокер по недвижимости

Другие участки и земля в Форт Майерс


161 Hibiscus Dr
Fort Myers, FL 33931
$375,000