Dixie Pines 2Nd Rev For Sale
12010 Sw 214th Ter, Miami, FL 33177

$359,900
Продажа
Людмила Богатов
Людмила Богатов
Брокер по недвижимости

Детали


  • МЛС номер:A11975356
  • Виртуальный тур: Да
  • Цена предложения: $359,900
  • Налоги:$1,434
  • Дата публикации:March 3, 2026
  • Дней на рынке:52

Описание


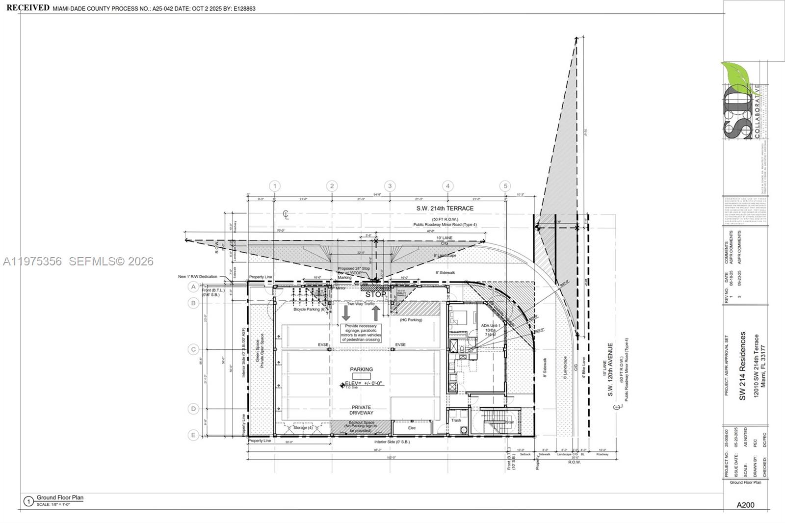
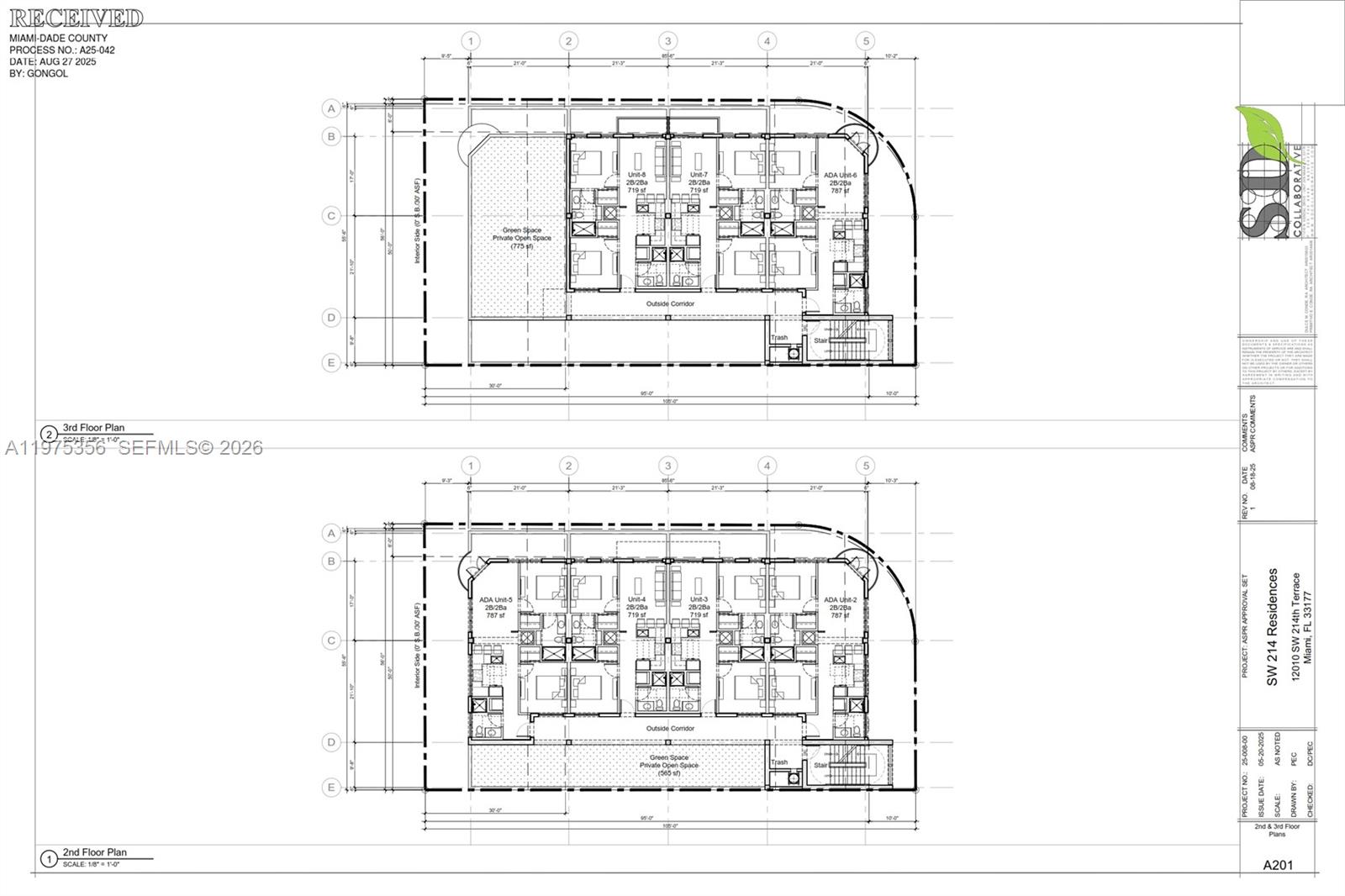
100% SITE PLAN APPROVED PROJECT. 8 all market rate units (can be sold as individual condos if desired) of 2/2's with 8 parking spaces. 8 inch water line/ 12 inch sewer abutting property and ready to connect no costly extensions needed. 2nd option for 25 units / 6 stories was approved in pre-app with the planning department if the buyer is interested. Blocks from the $1 billion redevelopment project Southplace City Center a "city within a city," featuring 5,000 residential units, 500,000 sqft retail, and a hotel. A lot of development in planning within two blocks (see photo). Not in a flood zone. Please email me for a copy of the full site plan. LOWEST PRICED PER SQ FT FOR THIS ZONING IN 33177 or 33170.

Расположение


Запросить информацию
Людмила Богатов
Людмила Богатов
Брокер по недвижимости

Другие участки и земля в Майами


13105 Sw 199th Ave
Miami, FL 33177
$700,000
12010 Sw 214th Ter
Miami, FL 33177
$359,900
19425 Sw 127 Ct
Miami, FL 33177
$399,000
11870 Sw 214th St
Miami, FL 33177
$2,300,000