Savannah Plat 1 4 bedroom Single Family House For Sale
13209 Nw 12th Ct, Sunrise, FL 33323

$675,000
Под контрактом Продажа
Людмила Богатов
Людмила Богатов
Брокер по недвижимости

Детали


  • МЛС номер:A11951613
  • Виртуальный тур: Да
  • Цена предложения: $675,000
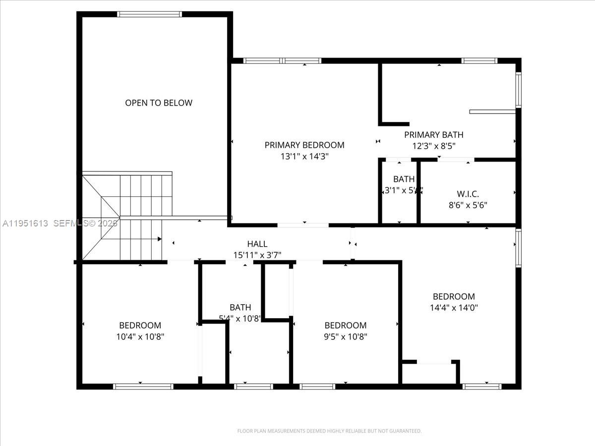
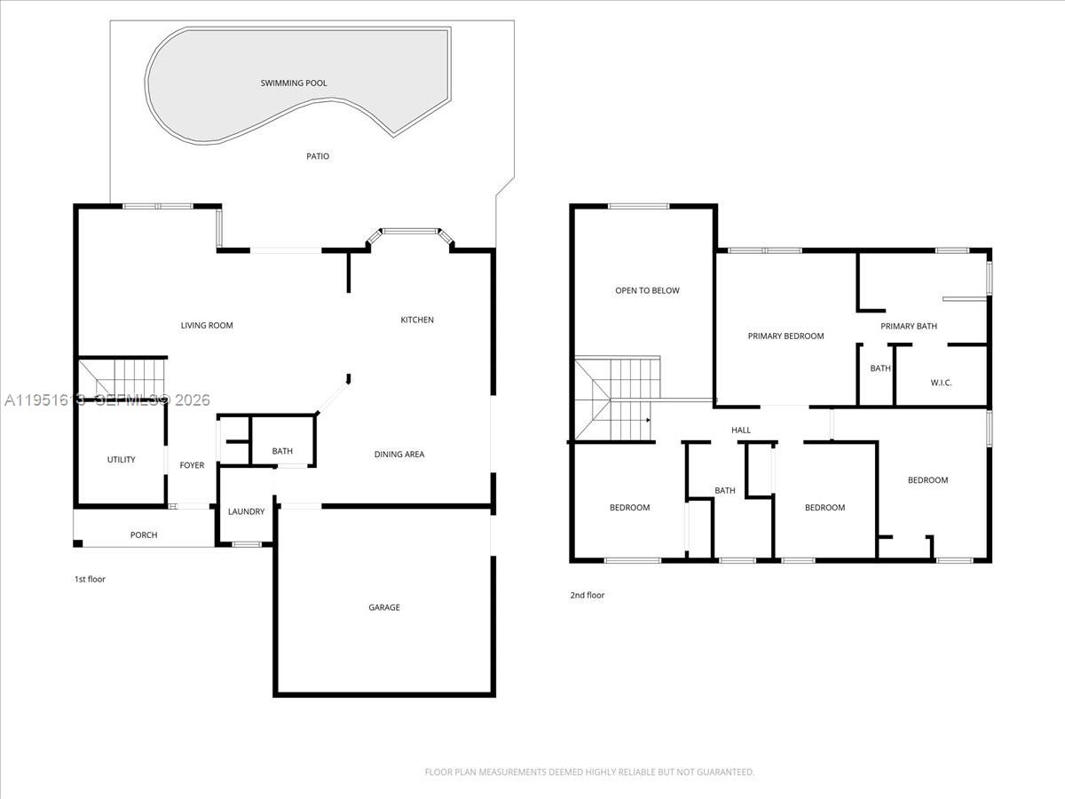
  • Жилая площадь: 1847 фут² / 172 м²
  • Цена за фут/метр: $365 / $3,934
  • Комнаты:4
  • Полных ванн:2
  • Неполных ванн:1
  • Обслуживание:$220
  • Налоги:$13,142
  • Год строительства:1990
  • Дата публикации:January 26, 2026
  • Дней на рынке:97

Описание


Stunning Turn-Key Home in Sawgrass Mills Residence~Osprey West. Discover the perfect blend of luxury and comfort in this beautifully remodeled home.This two-story gem features 4 spacious bedrooms 2.5 luxurious bathrooms, 2-car garage, & Laundry Room. Outdoor Oasis, Enjoy summer days in the stunning oversized pool surrounded by a beautifully landscaped backyard, perfect for entertaining.As you step inside, you'll be greeted by an abundance of natural light streaming through large windows, high volume ceilings, & an elegant staircase. A brand new kitchen is a chef's dream, featuring oversized white quartz countertops, sleek white cabinetry & top-of-the-line brand new appliances that make cooking a pleasure. The primary bedroom opens with double doors to a large bedroom, leading to a spa-like bathroom complete with a walk-in closet, ensuring a tranquil retreat. Each of the additional bedrooms is generously sized, equipped with plenty of closet space to accommodate all your storage needs.You'll enjoy convenient access to top-notch schools—both private & public—as well as easy access to highways, making commuting a breeze. Roof just 6 yrs, 2020, new water hearter 2026, new appliances, washer & dryer 2026.Don't miss this incredible opportunity to own this beautiful home.

Особенности


  • Полы:Laminate, Tile
  • Интерьер:BreakfastArea, ClosetCabinetry, DiningArea, SeparateFormalDiningRoom, DualSinks, EntranceFoyer, EatInKitchen, FirstFloorEntry, GardenTubRomanTub, KitchenIsland, SeparateShower, UpperLevelPrimary, VaultedCeilings, WalkInClosets, Attic
  • Экстерьер:Deck, Fence, Patio, Shed

Расположение


Запросить информацию
Людмила Богатов
Людмила Богатов
Брокер по недвижимости

Другие дома в Санрайз


2261 Nw 139th Ave
Sunrise, FL 33323
$790,000
11431 Nw 27th St
Plantation, FL 33323
$1,050,000
11501 Nw 41st St
Sunrise, FL 33323
$647,000
11240 Nw 23rd St
Plantation, FL 33323
$1,790,000