Dania Country Club Estate Duplex For Sale
236 Ne 1st St, Dania Beach, FL 33004

$1,400,000
Продажа
Людмила Богатов
Людмила Богатов
Брокер по недвижимости

Детали


  • МЛС номер:A11917289
  • Виртуальный тур: Да
  • Цена предложения: $1,400,000
  • Жилая площадь: 2930 фут² / 272 м²
  • Цена за фут/метр: $478 / $5,143
  • Налоги:$17,758
  • Год строительства:1958
  • Дата публикации:November 20, 2025
  • Дней на рынке:169

Описание


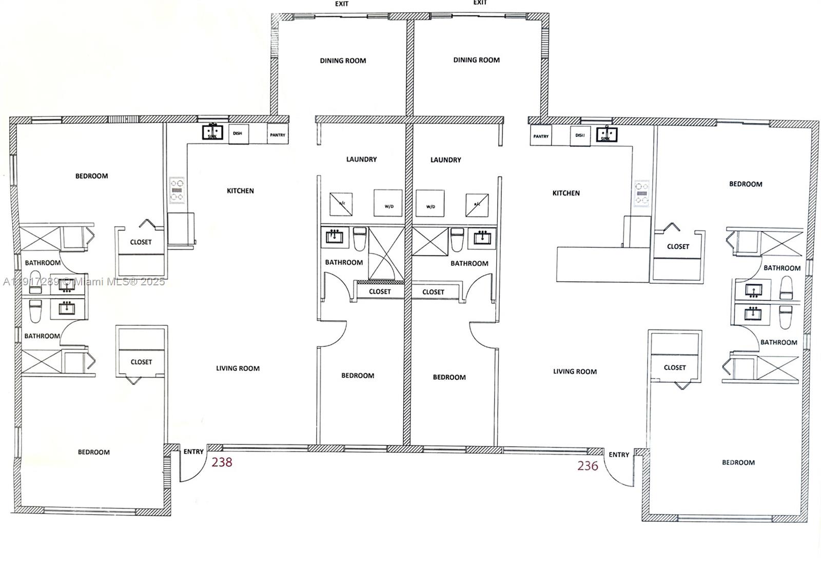
Turnkey, fully furnished income-producing duplex in Dania Beach, just 1 mile from the ocean and steps from Dania Beach Casino. On a generous lot, this updated property offers two large units with a total of 6 bedrooms and 6 baths—ideal for investors or buyers who want to live in one side and rent the other. Both units feature modern finishes, impact windows, central A/C and access to a beautiful shared backyard with pool and ample parking. With flexible short-term rental potential and strong demand from tourists and business travelers, this duplex is ideally positioned for excellent cash flow and long-term appreciation. Close to Dania Pointe, FLL Airport and major highways, it offers easy access for guests, strong occupancy potential and solid resale value in a growing coastal area.

Особенности


  • Полы:Tile
  • Экстерьер:

Расположение


Запросить информацию
Людмила Богатов
Людмила Богатов
Брокер по недвижимости

Другая коммерческая недвижимость в Дания Бич


108 Se 4th Ter
Dania Beach, FL 33004
$850,000
20 Se 12th St
Dania Beach, FL 33004
$755,000