Melrose Park Sec 2 4 bedroom Single Family House For Sale
430 Florida Ave, Fort Lauderdale, FL 33312

$330,000
Продано
Людмила Богатов
Людмила Богатов
Брокер по недвижимости

Детали


  • МЛС номер:A10719308
  • Виртуальный тур: Да
  • Цена предложения: $349,900
  • Цена продажи: $330,000
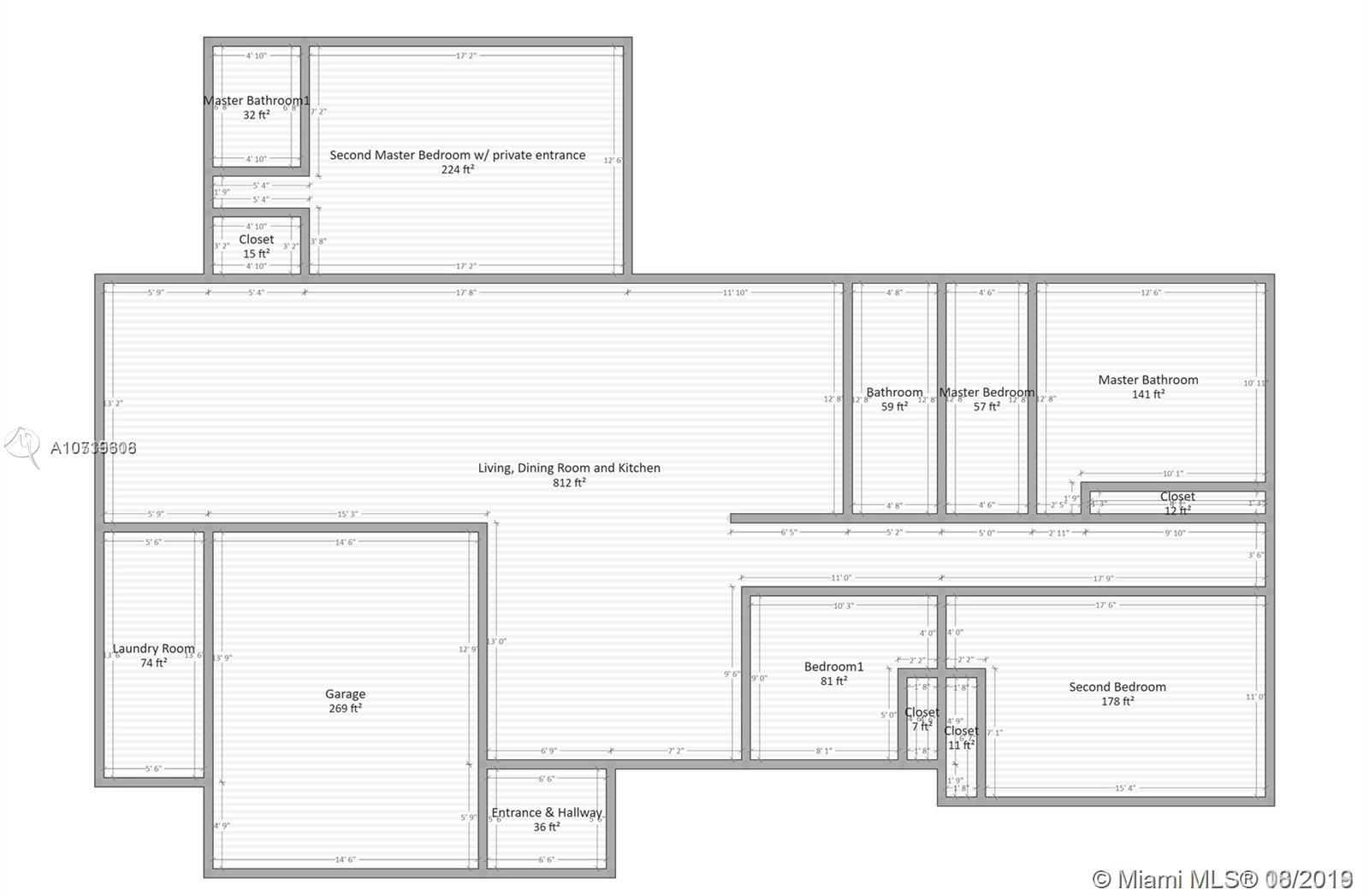
  • Жилая площадь: 1967 фут² / 183 м²
  • Цена за фут/метр: $168 / $1,806
  • Комнаты:4
  • Полных ванн:3
  • Налоги:$3,304
  • Год строительства:1953
  • Разрешены животные:Да
  • Дата публикации:August 6, 2019
  • Дата продажи: February 5, 2020
  • Дней на рынке:182

Описание


Gorgeous 4 Beds/3 Baths, Completely Remodeled home w/ 1-Car garage in the family friendly neighborhood of Melrose Park! Features: New Porcelain floors thru-out, Amazing new kitchen w/wood cabinets & soft closing drawers, Quartz counter tops, Center Island & stainless steel appliances, New High Impact doors & windows, Bathrooms w/ marble back-splash & glass shower door. 2 Spacious Master Bedroom, 1 w/ its own Entrance for possible in-law quarters, New A/C Unit, freshly painted inside & out, utility room w/washer dryer hookup. Large fenced yard w/room for a pool, RV or Boat. Excellent location close to major highways, Amtrak, Airport, Walmart, Restaurants & More! Great for a large family! Fall In Love with this Spectacular Home!

Особенности


  • Полы:CeramicTile, Marble
  • Интерьер:BedroomonMainLevel, FirstFloorEntry, KitchenIsland, KitchenDiningCombo, LivingDiningRoom, MainLevelMaster, WalkInClosets
  • Экстерьер:Fence, SecurityHighImpactDoors, Lighting, Patio, RoomForPool

Расположение


Запросить информацию
Людмила Богатов
Людмила Богатов
Брокер по недвижимости

Другие дома в Форт Лодердейл


680 Sw 29th Ter
Fort Lauderdale, FL 33312
$574,900
4911 Sw 29th Ter
Dania Beach, FL 33312
$694,900
521 E Evanston Cir
Fort Lauderdale, FL 33312
$575,000
3839 Sw 51st St
Hollywood, FL 33312
$739,000