Rock Harbor Estate 4 bedroom Single Family House For Sale
1210 Cactus St, Key Largo, FL 33037

$1,695,000
Продажа
Людмила Богатов
Людмила Богатов
Брокер по недвижимости

Детали


  • МЛС номер:A11860312
  • Виртуальный тур: Да
  • Цена предложения: $1,695,000
  • Жилая площадь: 3120 фут² / 290 м²
  • Цена за фут/метр: $543 / $5,848
  • Комнаты:4
  • Полных ванн:4
  • Неполных ванн:1
  • Обслуживание:$200
  • Налоги:$7,700
  • Год строительства:1979
  • На канале:Да
  • Дата публикации:August 20, 2025
  • Дней на рынке:269

Описание


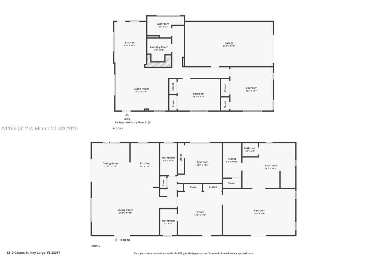
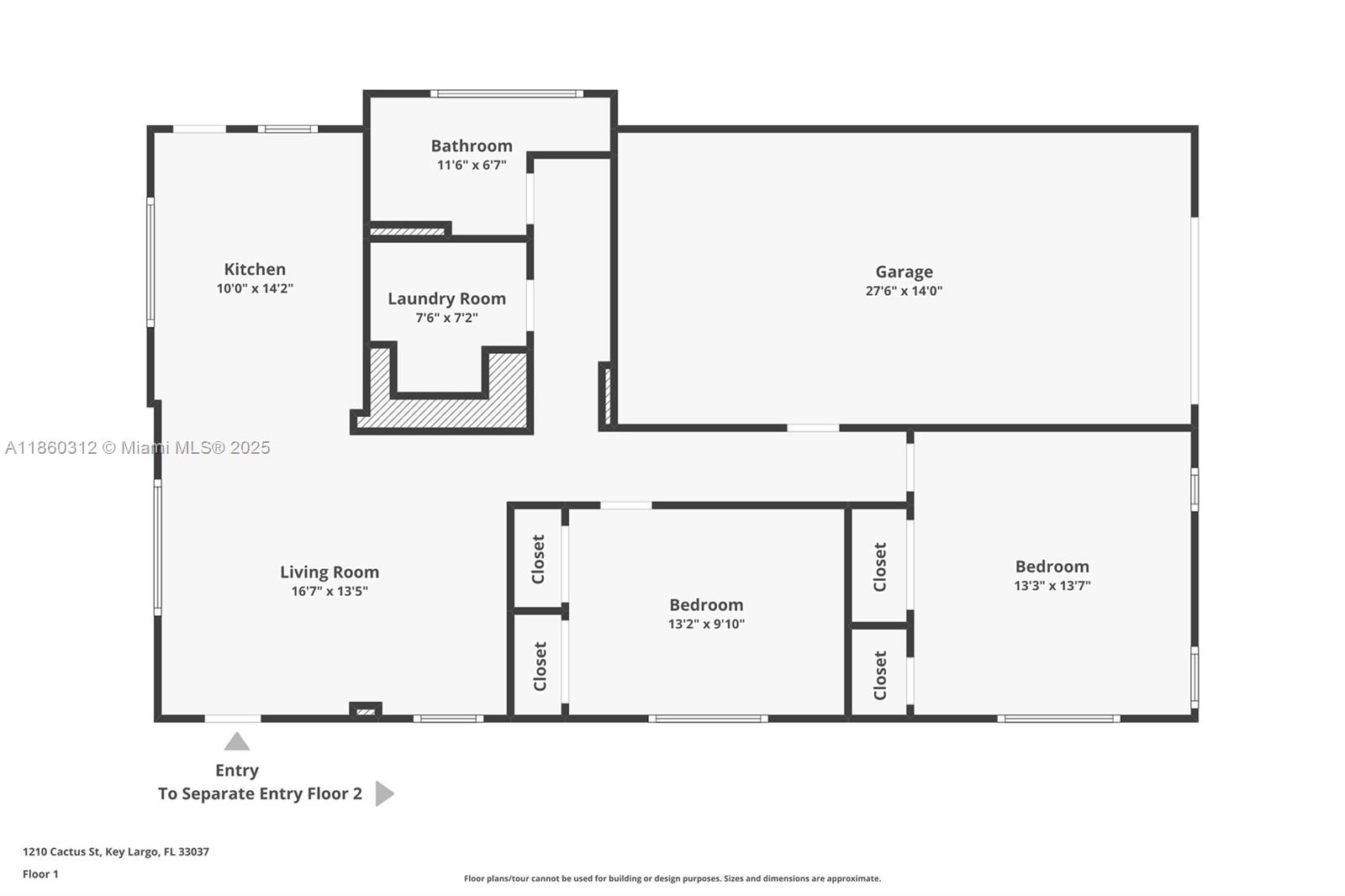
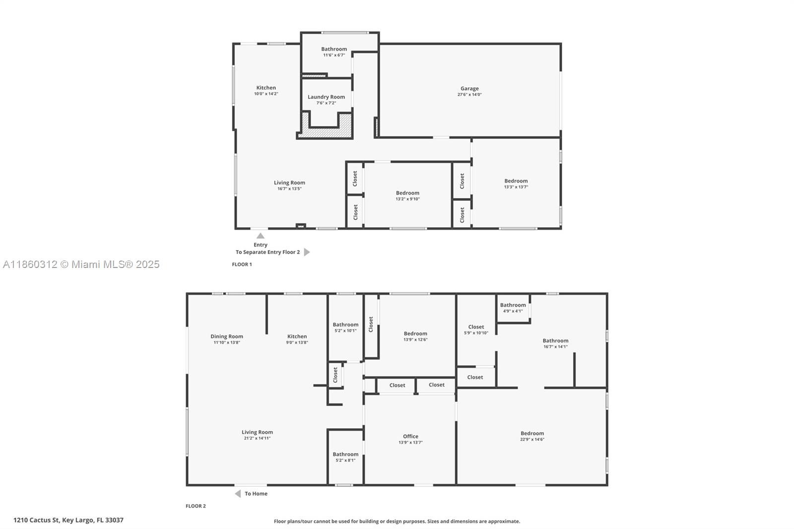
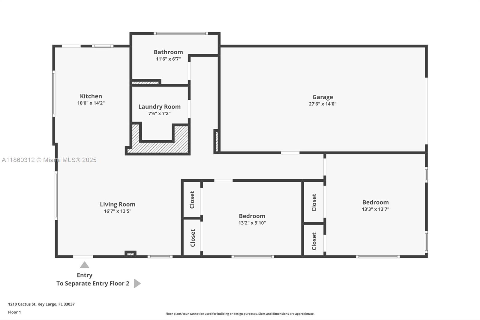
This exceptional all-CBS with concrete roof canal-front home offers direct ocean access to world-class fishing and diving, and is ideally located for an easy mainland commute. The permitted first-floor addition was added in 2001 and features 2 bedrooms, 1.5 baths, and a garage. The upstairs main living area has a recent 720 sq. ft. addition, creating a stunning master suite with a spacious bedroom and spa-like bath. The open-concept upper level blends living, dining, and kitchen spaces, along with additional bedrooms and 2 baths, perfect for hosting family and friends. Enjoy a 60-foot split-level concrete dock with step-down access for kayaks, paddle boards, and low-profile vessels. Entertain on the expansive porch or take advantage of ample parking for boats, RVs, and trailers

Особенности


  • Полы:Laminate, Tile
  • Интерьер:BedroomOnMainLevel, SecondFloorEntry, FirstFloorEntry, UpperLevelPrimary, WalkInClosets
  • Экстерьер:Balcony, Deck, Fence
  • На канале:CanalFront

Расположение


Запросить информацию
Людмила Богатов
Людмила Богатов
Брокер по недвижимости

Другие дома в Key Largo


350 Hazel St
Key Largo, FL 33037
$1,400,000
201 Wildwood Cir
Key Largo, FL 33037
$2,290,000
862 Cardinal Ln
Key Largo, FL 33037
$2,250,000
1218 Mockingbird Rd
Key Largo, FL 33037
$2,170,000