Heritage City Sec 2 4 bedroom Mobile House For Sale
21760 Nw 3rd St, Pembroke Pines, FL 33029

$296,000
Продано
Людмила Богатов
Людмила Богатов
Брокер по недвижимости

Детали


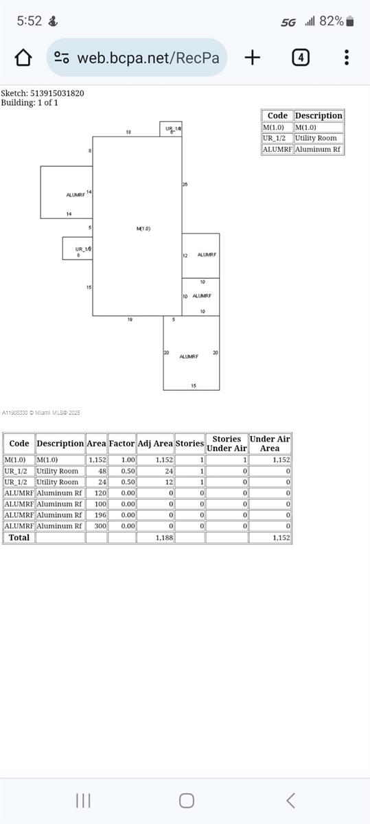
  • МЛС номер:A11905330
  • Виртуальный тур: Да
  • Цена предложения: $279,000
  • Цена продажи: $296,000
  • Жилая площадь: 1188 фут² / 110 м²
  • Цена за фут/метр: $249 / $2,682
  • Комнаты:4
  • Полных ванн:2
  • Обслуживание:$103
  • Налоги:$4,051
  • Год строительства:1982
  • Дата публикации:October 30, 2025
  • Дата продажи: May 20, 2026
  • Дней на рынке:201

Описание


Tranquility sanctuary rare to find. Double wide Manufactured home with 3/2 plus an additional room that can be used at den a/o four bed a/o office a/o buyer choice/desire/need. Good news YOU OWN THE LAND. Refreshed updated renovation: new floor, kitchen, baths, appliances, etc. Freshly exterior paint. No rental restriction. Shed that is used as laundry room, but with space for your tool. Community include club house, gym lake, pool, tennis/basketball courts, play ground. Low HOA ($103/m)

Особенности


  • Полы:Vinyl
  • Интерьер:BedroomOnMainLevel, FirstFloorEntry
  • Экстерьер:None

Расположение


Запросить информацию
Людмила Богатов
Людмила Богатов
Брокер по недвижимости

Другие квартиры в Пемброк Пайнс


730 Nw 217th Ter
Pembroke Pines, FL 33029
$449,000
21771 Nw 6th St
Pembroke Pines, FL 33029
$300,000