Sheridan Ocean Club 3 bedroom Single Family House For Sale
1054 Se 6th Ave, Dania Beach, FL 33004

$560,000
Продажа
Людмила Богатов
Людмила Богатов
Брокер по недвижимости

Детали


  • МЛС номер:A11967234
  • Виртуальный тур: Да
  • Цена предложения: $560,000
  • Жилая площадь: 1388 фут² / 129 м²
  • Цена за фут/метр: $403 / $4,343
  • Комнаты:3
  • Полных ванн:2
  • Неполных ванн:1
  • Обслуживание:$290
  • Налоги:$8,928
  • Год строительства:1995
  • На канале:Да
  • Дата публикации:February 18, 2026
  • Дней на рынке:75

Описание


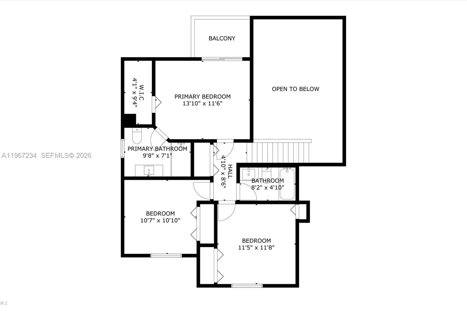
Stunning fully renovated waterfront two-story home in the highly desirable gated community of Sheridan Ocean Club. This 3-bedroom, 2.5-bath residence offers modern design and comfortable South Florida living. Soaring vaulted ceilings and abundant natural light enhance the spacious living area. The open kitchen features quartz countertops, stainless steel appliances, ample cabinetry, a large counter, and breakfast area—ideal for daily living and entertaining. The primary suite offers a walk-in closet and private balcony with peaceful lake views. Secondary bedrooms include generous closets, and a guest bath is conveniently located on the first floor. Additional features include luxury vinyl flooring throughout, fully renovated bathrooms, 1-car garage, and extended driveway for 2 more vehicles. Enjoy the large screened patio, perfect for relaxing or entertaining. Major upgrades include a new roof (2022) and impact windows and doors. Community amenities include clubhouse, pool, tiki hut, and BBQ area. Prime location just one mile from the beach and minutes to Fort Lauderdale-Hollywood International Airport, major highways, shopping, and dining. Mortgage savings may be available for buyers of this listing.

Особенности


  • Полы:Tile, Vinyl
  • Интерьер:EatInKitchen, FirstFloorEntry, HighCeilings, LivingDiningRoom, UpperLevelPrimary
  • Экстерьер:Balcony, EnclosedPorch, SecurityHighImpactDoors, Lighting, StormSecurityShutters
  • На канале:LakeFront

Расположение


Запросить информацию
Людмила Богатов
Людмила Богатов
Брокер по недвижимости

Другие дома в Дания Бич


233 Se 4th Ter
Dania Beach, FL 33004
$629,000
426 Se 3rd St
Dania Beach, FL 33004
$975,000
235 Se 9th St
Dania Beach, FL 33004
$820,000
1401 Sw 3rd Ave
Dania Beach, FL 33004
$499,000