Industiral For Sale
29055 Sw 107th Ave, Homestead, FL 33033

$9
Продажа
Людмила Богатов
Людмила Богатов
Брокер по недвижимости

Детали


  • МЛС номер:A11909901
  • Виртуальный тур: Да
  • Цена предложения: $9
  • Налоги:$36,984
  • Год строительства:2015
  • Дата публикации:November 6, 2025
  • Дней на рынке:183

Описание


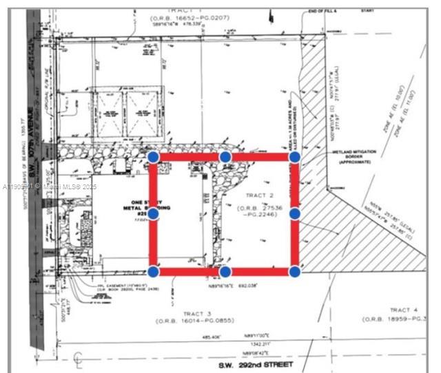
Proud to present a prime 35,796 sqft insulated steel building with plenty of outdoor storage space. Can be divided. Newer 2015 facility has ceiling height of 26 ft, two dock height and 3 drive up doors, fenced in lot, exterior lighting & security cameras. Electrical 800 amp 480/277 v three phase & (2) 400 amp 120/240v 3 phase system. Mins from Turnpike, Homestead Air Base, FedEx & Amazon Distribution Center, Turkey Point, Black Point Marina & Homestead Marina. Major developments in the area. Plenty of outdoor storage. Info deemed accurate but not warranted. Inquire on additional CAM charges.

Особенности


  • Полы:Concrete
  • Экстерьер:

Расположение


Запросить информацию
Людмила Богатов
Людмила Богатов
Брокер по недвижимости

Другая коммерческая недвижимость в Homestead


1770 Se 38 Ave, Unit BAY16
Homestead, FL 33033
$795,600
29055 Sw 107th Ave
Homestead, FL 33033
$5,900,000