Office For Sale
2030 S Douglas Rd, Unit 216, Coral Gables, FL 33134

$885,000
Продажа
Людмила Богатов
Людмила Богатов
Брокер по недвижимости

Детали


  • МЛС номер:A11934703
  • Виртуальный тур: Да
  • Номер квартиры:216
  • Цена предложения: $885,000
  • Обслуживание:$1,153
  • Налоги:$9,858
  • Год строительства:2005
  • Дата публикации:December 23, 2025
  • Дней на рынке:127

Описание


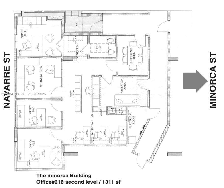
Rare opportunity to acquire a premier 1,311 sf professional suite in the commercial corridor of Coral Gables . one block from Miracle Mile and steps from The plaza Coral Gables. this asset is designed for investors seeking stability. Air conditioned individual This unit is "over-parked", featuring two assigned parking spaces city's strict requirements, providing a massive logistical advantage in this sub market. Furthermore, the building offers a competitive advantage that is nearly non existent in the area. COMPLIMENTARY VISITOR PARKING, clients and guests. Two Entrances, one in office lobby and on side office. For rent also. 2026 no assesments Purchase additional parking spaces at $30,000 each Investment highlights: *Location: The Corporate Hear of Coral Gables" Steps from Miracle Mile and Merrick Park) *Financials:6.25% CAP Rate with stabilized income until early 2027 *Parking Alpha: 3 Surplus Assigned spaces PLUS Building-wide Free Visitor Parking *Amenities Exclusive pool and Fitness Center access to Owners *Size 1311 sq ft. *Office rent 2026 $4,804.14 monthly *Rent increase 5% annually starting 2027 *NOI (2026): $36,143 Projected NOI 2030 $43,948 *Cap Rate estimated 6.25% Currently yielding a 6.25% CAP RATE, the property is stabilized with a reliable tenant in place through early 2026. Investment highlights: Location: The "Corporate Heart" of Coral Gables, Steps from Miracle Mile and Merrick Park

Особенности


  • Полы:CeramicTile, Hardwood, Wood
  • Экстерьер:

Расположение


Запросить информацию
Людмила Богатов
Людмила Богатов
Брокер по недвижимости

Другая коммерческая недвижимость в Корал Гейблс


5455 Sw 8 St, Unit 200
Miami, FL 33134
$1,395 / месяц
1200 Ponce De Leon Blvd, Unit 901
Coral Gables, FL 33134
$13,000 / месяц
306 Alcazar Ave, Unit 205
Coral Gables, FL 33134
$3,500 / месяц
306 Alcazar Ave, Unit 200
Coral Gables, FL 33134
$5,500 / месяц