Lincoln Park Fifth Add Am 3 bedroom Single Family House For Sale
908 Nw 16th Ter, Fort Lauderdale, FL 33311

$335,400
Продано
Людмила Богатов
Людмила Богатов
Брокер по недвижимости

Детали


  • МЛС номер:A11265185
  • Цена предложения: $335,400
  • Цена продажи: $335,400
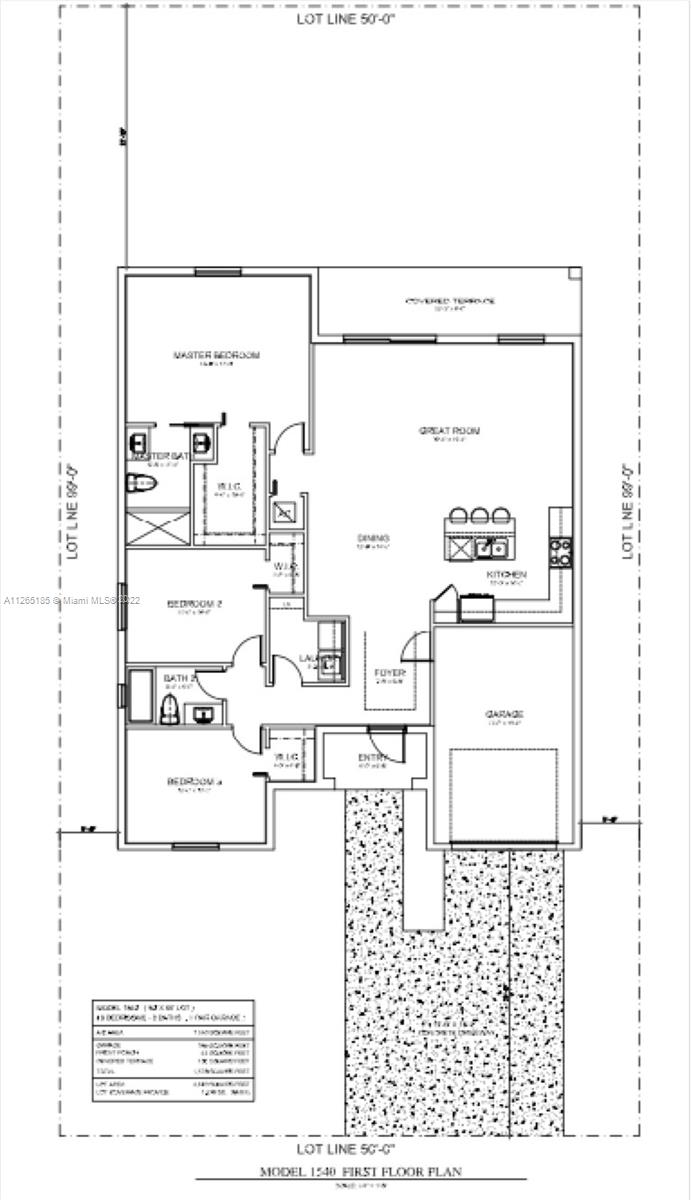
  • Жилая площадь: 1540 фут² / 143 м²
  • Цена за фут/метр: $218 / $2,344
  • Комнаты:3
  • Полных ванн:2
  • Год строительства:2022
  • Дата публикации:September 15, 2022
  • Дата продажи: November 15, 2023
  • Дней на рынке:425

Описание


Great Time To Be A Homeowner! This Beautiful Home Features Three Bedrooms, Two Baths & 1 Car Garage. Built With All The Upgrades You Need To Make It Your Dream Home. Inside Your Home, You Will Find; Impact Windows & Doors With Decorative Blinds On All Windows, A Modern Kitchen With Stainless Steel Appliances And White Quartz Countertops, Modern Bathrooms With Ceramic Tile Showers And Modern Plumbing Fixtures, Polished Concrete Floors Thought The House, Full-Size Washer, And Dryer, He Water Heater, Recess Lighting In The Living Area And Led Light Fixtures In Bedrooms. Garage Door. Wifi Compatible Home. * CRA Homes Are Not For Investors. Homeowners only!

Особенности


  • Полы:CeramicTile
  • Интерьер:BedroomonMainLevel, ClosetCabinetry, FamilyDiningRoom, FirstFloorEntry, Attic
  • Экстерьер:SecurityHighImpactDoors

Расположение


Запросить информацию
Людмила Богатов
Людмила Богатов
Брокер по недвижимости

Другие дома в Форт Лодердейл


535 Nw 23rd Ave
Fort Lauderdale, FL 33311
$480,000
2701 Nw 18th Ter
Oakland Park, FL 33311
$463,999
1028 Nw 8th Ave
Fort Lauderdale, FL 33311
$699,500
2227 Nw 9th Ct
Fort Lauderdale, FL 33311
$357,000