Lincoln Park Sixth Add Am 3 bedroom Single Family House For Sale
816 Nw 16th Ave, Fort Lauderdale, FL 33311

$345,000
Продано
Людмила Богатов
Людмила Богатов
Брокер по недвижимости

Детали


  • МЛС номер:A11265187
  • Цена предложения: $335,400
  • Цена продажи: $345,000
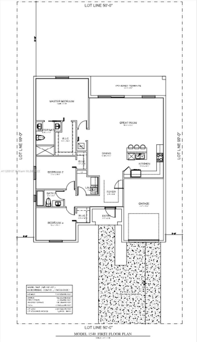
  • Жилая площадь: 1540 фут² / 143 м²
  • Цена за фут/метр: $224 / $2,411
  • Комнаты:3
  • Полных ванн:2
  • Год строительства:2022
  • Дата публикации:September 15, 2022
  • Дата продажи: September 21, 2023
  • Дней на рынке:370

Описание


Great Time To Be A Homeowner! This Beautiful Home Features Three Bedrooms, Two Baths & 1 Car Garage. Built With All The Upgrades You Need To Make It Your Dream Home. Inside Your Home, You Will Find; Impact Windows & Doors With Decorative Blinds On All Windows, A Modern Kitchen With Stainless Steel Appliances And White Quartz Countertops, Modern Bathrooms With Ceramic Tile Showers And Modern Plumbing Fixtures, Polished Concrete Floors Thought The House, Full-Size Washer, And Dryer, He Water Heater, Recess Lighting In The Living Area And Led Light Fixtures In Bedrooms. Garage Door. Wifi Compatible Home. * CRA Homes Are Not For Investors. Homeowners only!

Особенности


  • Полы:Concrete
  • Интерьер:BedroomonMainLevel, ClosetCabinetry, FamilyDiningRoom, FirstFloorEntry, Attic
  • Экстерьер:SecurityHighImpactDoors

Расположение


Запросить информацию
Людмила Богатов
Людмила Богатов
Брокер по недвижимости

Другие дома в Форт Лодердейл


272 Nw 31st Ave
Fort Lauderdale, FL 33311
$465,000
2217 Nw 4th Ave
Wilton Manors, FL 33311
$699,000
535 Nw 29th Ter
Fort Lauderdale, FL 33311
$364,900
316 Nw 29th St
Wilton Manors, FL 33311
$635,000