Riverland Village Sec 1 R 3 bedroom Single Family House For Sale
3120 Sw 16th St, Fort Lauderdale, FL 33312

$435,000
Продано
Людмила Богатов
Людмила Богатов
Брокер по недвижимости

Детали


  • МЛС номер:A11410713
  • Виртуальный тур: Да
  • Цена предложения: $400,000
  • Цена продажи: $435,000
  • Жилая площадь: 1366 фут² / 127 м²
  • Цена за фут/метр: $318 / $3,428
  • Комнаты:3
  • Полных ванн:2
  • Налоги:$5,989
  • Год строительства:1957
  • Дата публикации:June 30, 2023
  • Дата продажи: August 3, 2023
  • Дней на рынке:33

Описание


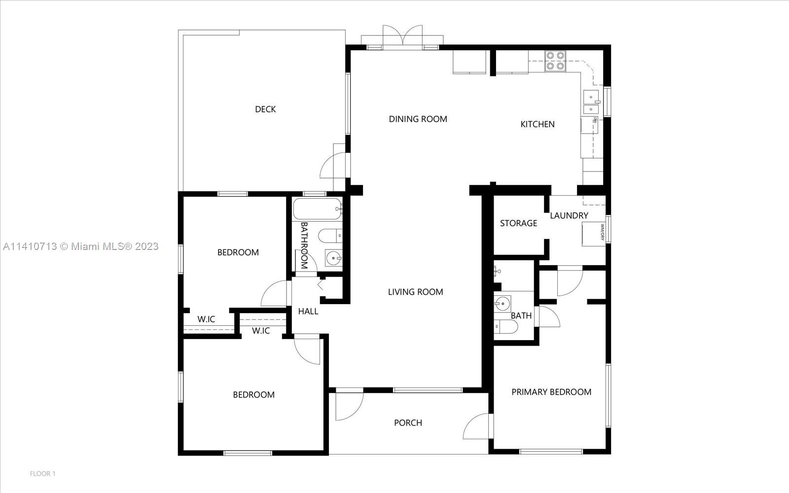
This 3/2 pool home is ready for it's new owner! There is a large split floor plan with 2 bedrooms and 1 bath on one side and a full in-law suite on the other side with a separate entrance. Lots of updates including the kitchen, bathroom, flooring, and pool filter. Needs a new roof! Highest and Best by Monday, 7/10 at 5 pm.

Особенности


  • Полы:Tile, Wood
  • Интерьер:BedroomonMainLevel, FrenchDoorsAtriumDoors, FirstFloorEntry, LivingDiningRoom, MainLevelPrimary, SplitBedrooms
  • Экстерьер:Fence, Lighting, Porch, Patio, Shed

Расположение


Запросить информацию
Людмила Богатов
Людмила Богатов
Брокер по недвижимости

Другие дома в Форт Лодердейл


1704 Sw 5th Ct
Fort Lauderdale, FL 33312
$1,200,000
3640 Sw 22nd St
Fort Lauderdale, FL 33312
$599,000
1101 Sw 19th Ave
Fort Lauderdale, FL 33312
$539,000
2436 Cat Cay Ln
Fort Lauderdale, FL 33312
$1,099,000