Zona West 5 bedroom Single Family House For Sale
14930 Sw 16th Ct, Davie, FL 33326

$5,500,000
Под контрактом Продажа
Людмила Богатов
Людмила Богатов
Брокер по недвижимости

Детали


  • МЛС номер:A11828167
  • Виртуальный тур: Да
  • Цена предложения: $5,500,000
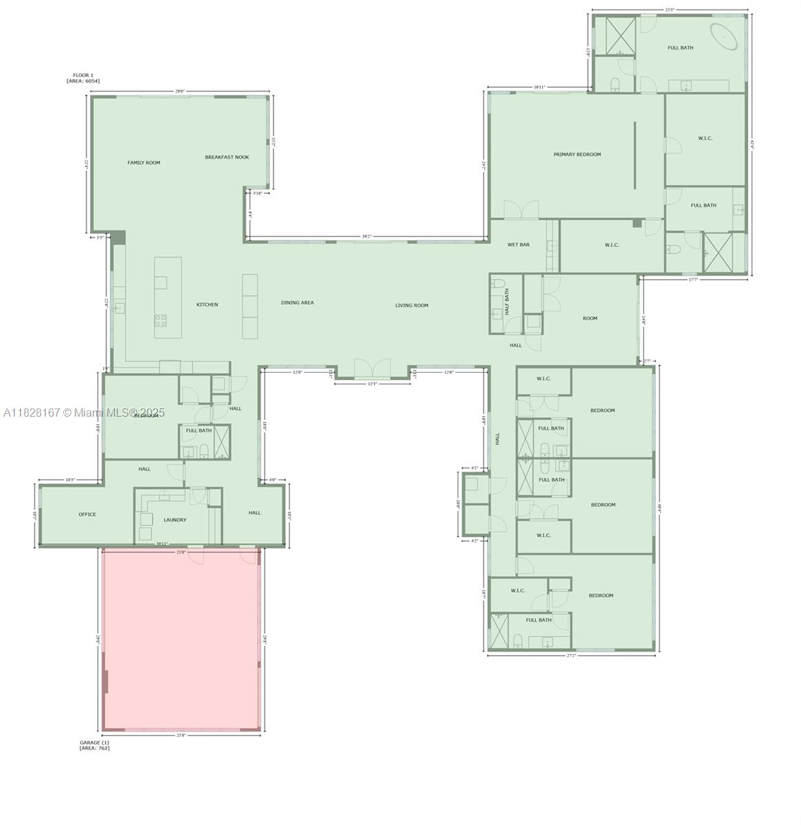
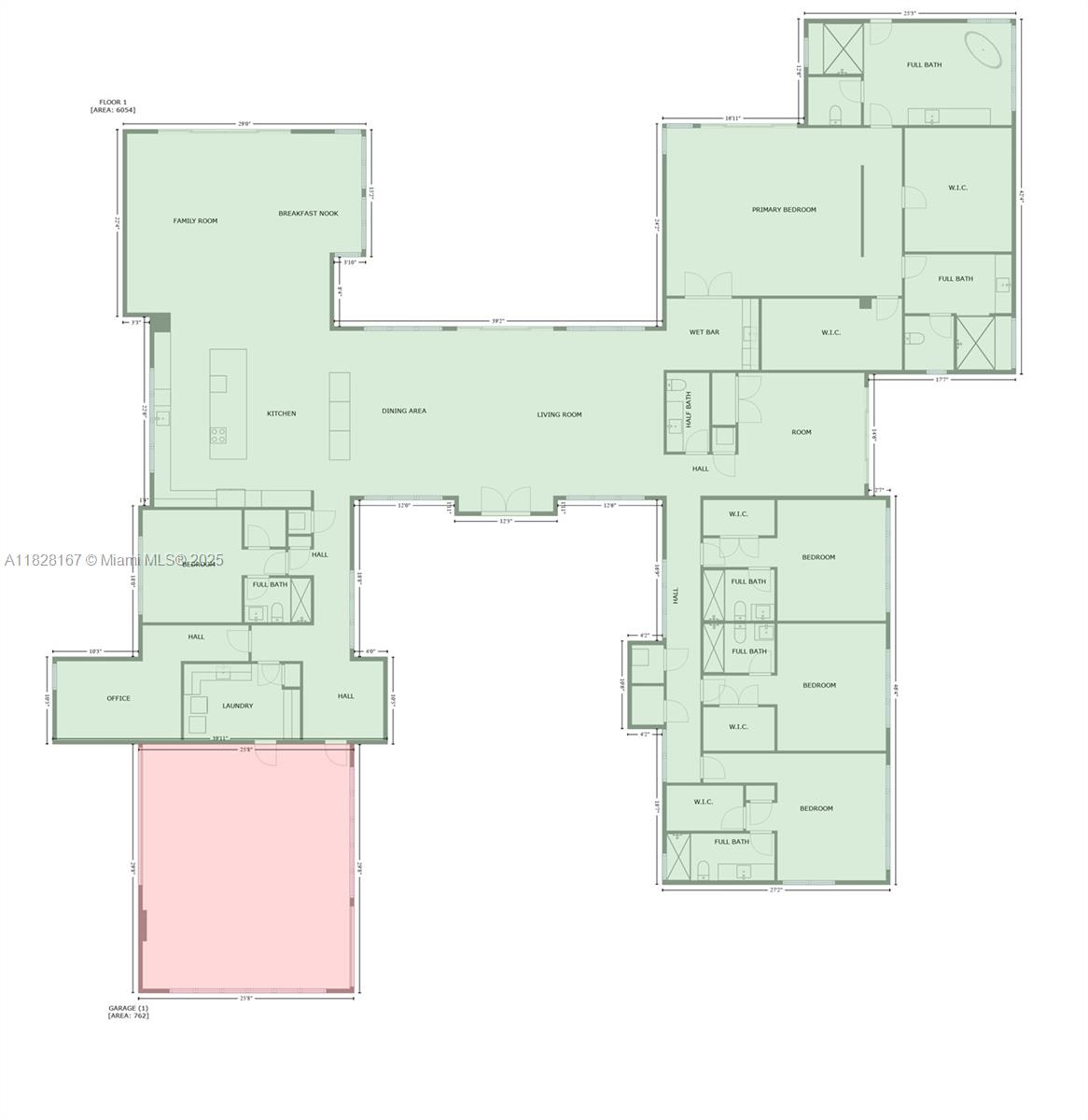
  • Жилая площадь: 5818 фут² / 541 м²
  • Цена за фут/метр: $945 / $10,176
  • Комнаты:5
  • Полных ванн:5
  • Неполных ванн:1
  • Обслуживание:$591
  • Налоги:$4,057
  • Год строительства:2025
  • Дата публикации:July 5, 2025
  • Дней на рынке:325

Описание


A masterpiece of Mediterranean charm and modern luxury, this 5BD/5.5BA custom estate features a den, media room, mud room, and a 3-car garage with a sleek glass wall. Bold travertine walls and cascading water features create a spa-like entry that sets the tone for the elegant design throughout. Enjoy two outdoor pergolas—one with a summer kitchen for entertaining, the other off the primary suite for private lounging. The resort-style pool, fully landscaped grounds, and high-end finishes complete this one-of-a-kind home. Located in a private 12-residence enclave, this is one of the final homes. Every detail has been meticulously curated for elevated living.

Особенности


  • Полы:
  • Интерьер:WetBar, Bidet, BuiltInFeatures, BedroomOnMainLevel, BreakfastArea, ClosetCabinetry, DiningArea, SeparateFormalDiningRoom, EatInKitchen, FirstFloorEntry, KitchenIsland, CustomMirrors, Other, SeparateShower, WalkInClosets
  • Экстерьер:Awnings, Barbecue, SecurityHighImpactDoors, OutdoorGrill

Расположение


Запросить информацию
Людмила Богатов
Людмила Богатов
Брокер по недвижимости

Другие дома в Дейви


392 Coconut Cir
Weston, FL 33326
$2,125,000
16740 N Botaniko Dr N
Weston, FL 33326
$3,150,000
16709 Botaniko Drive North
Weston, FL 33326
$3,199,000
16720 N Botaniko Dr N
Weston, FL 33326
$2,700,000