Crystal Lake 1St Sec 4 bedroom Single Family House For Sale
4147 Rosa Dr, Deerfield Beach, FL 33064

$665,000
Продажа
Людмила Богатов
Людмила Богатов
Брокер по недвижимости

Детали


  • МЛС номер:A11916419
  • Виртуальный тур: Да
  • Цена предложения: $665,000
  • Жилая площадь: 2179 фут² / 202 м²
  • Цена за фут/метр: $305 / $3,285
  • Комнаты:4
  • Полных ванн:3
  • Обслуживание:$407
  • Налоги:$11,503
  • Год строительства:2020
  • Дата публикации:November 19, 2025
  • Дней на рынке:172

Описание


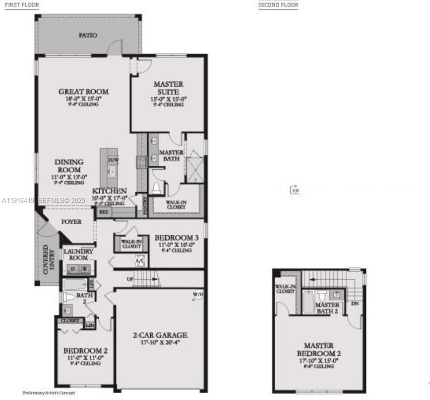
The highly desired Cisne model! This beautiful 4-bedroom, 3-bathroom home with a 2-car garage offers the perfect blend of comfort, space, and modern style in a prime location. Step inside to a bright, open layout designed for both everyday living and entertaining. The modern kitchen features stainless steel appliances and flows seamlessly into the main living areas, creating a warm and inviting atmosphere. Three of the bedrooms are conveniently located downstairs, including one of the primary suites, providing excellent flexibility and privacy. Enjoy a rare dual primary suite layout, ideal for multigenerational living, guests, or rental potential. The spacious private backyard is perfect for relaxing or hosting gatherings, while the extended driveway offers additional parking space for convenience.Located just minutes from beaches, major highways, shopping, and dining, this home delivers comfort, convenience, and great value. A must-see opportunity in Pompano Beach! Call today!

Особенности


  • Полы:Carpet, Tile
  • Интерьер:BedroomOnMainLevel, DualSinks, EatInKitchen, FamilyDiningRoom, FirstFloorEntry, LivingDiningRoom
  • Экстерьер:Fence, Patio

Расположение


Запросить информацию
Людмила Богатов
Людмила Богатов
Брокер по недвижимости

Другие дома в Дирфилд Бич


630 Ne 23rd Ct
Pompano Beach, FL 33064
$599,000
3840 Ne 12th Ave
Pompano Beach, FL 33064
$475,000
3830 Ne 22nd Ter
Lighthouse Point, FL 33064
$904,000
4231 Ne 23rd Ave
Lighthouse Point, FL 33064
$3,499,999