Ponce Road Estates 6 bedroom Single Family House For Sale
4871 Sw 74th Ter, Miami, FL 33143

$8,499,999
Под контрактом Продажа
Людмила Богатов
Людмила Богатов
Брокер по недвижимости

Детали


  • МЛС номер:A11933394
  • Виртуальный тур: Да
  • Цена предложения: $8,499,999
  • Жилая площадь: 5521 фут² / 513 м²
  • Цена за фут/метр: $1,540 / $16,572
  • Комнаты:6
  • Полных ванн:5
  • Неполных ванн:1
  • Обслуживание:$1,600
  • Налоги:$24,804
  • Год строительства:1941
  • Дата публикации:January 5, 2026
  • Дней на рынке:128

Описание


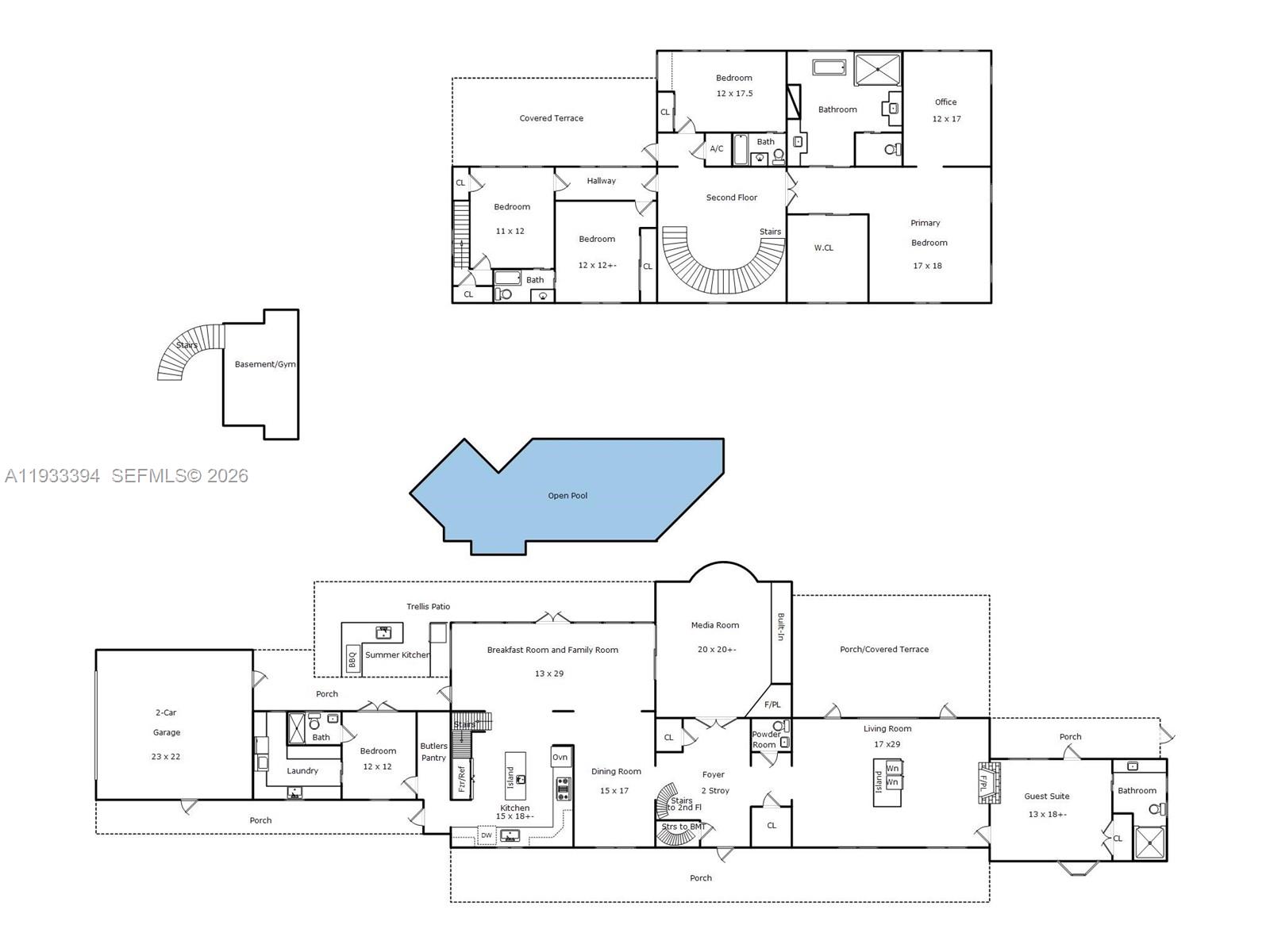
Tucked within the exclusive, gated enclave of Ponce Road Estates—home to only five residences—this Ponce-Davis estate is truly the crown jewel. Set on a generous 3 / 4-acre lot, the 6-bedroom residence (plus home office) showcases exquisite craftsmanship and thoughtful details at every turn. Refined moldings, impact glass, a beautifully remodeled island kitchen with Viking gas range, dual ovens, dual sinks, and a walk-in pantry, along with tastefully updated bathrooms, speak to its elevated design. The primary suite is Architectural Digest–worthy, featuring a spa-inspired bath and an enviable, Instagram-ready closet. Enjoy movie nights in the private media room, morning workouts in the gym, or al fresco gatherings on expansive terraces and balconies overlooking lush, mature gardens. The pool, patio, and summer kitchen create an idyllic backdrop for unforgettable entertaining. An oversized two-car garage and covered carport add convenience, while the community’s own tennis, pickleball, and basketball court complete this rare offering. Located within the super desirable A+ rated Sunset Elementary School. Per appraisers calculations, total living area is 5,521', total adjusted area is 6,313' and total area under roof is 7,937'. A Very Special Home.

Особенности


  • Полы:Hardwood, Tile, Wood
  • Интерьер:WetBar, Bidet, BuiltInFeatures, BedroomOnMainLevel, BreakfastArea, ClosetCabinetry, DiningArea, SeparateFormalDiningRoom, DualSinks, EntranceFoyer, EatInKitchen, FrenchDoorsAtriumDoors, FirstFloorEntry, Fireplace, Pantry, SittingAreaInPrimary, SeparateShower, UpperLevelPrimary, WalkInClosets
  • Экстерьер:Fence, SecurityHighImpactDoors, Lighting, OutdoorGrill, Patio, StormSecurityShutters, TennisCourts
Запросить информацию
Людмила Богатов
Людмила Богатов
Брокер по недвижимости

Другие дома в Майами


7997 Sw 76th Avenue
Miami, FL 33143
$2,450,000
7150 W Lago Dr
Coral Gables, FL 33143
$15,950,000
165 Paloma Dr
Coral Gables, FL 33143
$8,790,000
8550 Old Cutler Rd
Coral Gables, FL 33143
$8,395,000