Yellowstone Park Amen Pla 2 bedroom Single Family House For Sale
1200 Sw 18th St, Fort Lauderdale, FL 33315

$695,000
Продано
Людмила Богатов
Людмила Богатов
Брокер по недвижимости

Детали


  • МЛС номер:A11669702
  • Виртуальный тур: Да
  • Цена предложения: $725,000
  • Цена продажи: $695,000
  • Жилая площадь: 1223 фут² / 114 м²
  • Цена за фут/метр: $568 / $6,117
  • Комнаты:2
  • Полных ванн:2
  • Налоги:$7,316
  • Год строительства:1952
  • Дата публикации:October 23, 2024
  • Дата продажи: December 12, 2024
  • Дней на рынке:49

Описание


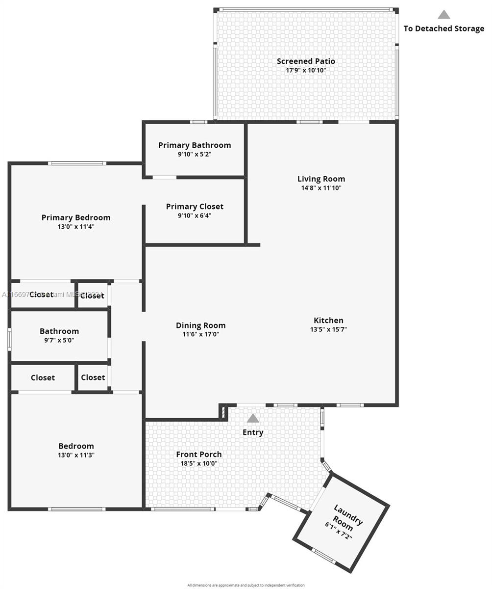
Beautiful home in River Oaks on corner lot w/ mature oak trees, staghorn ferns, portacarpus & clusia hedge. Refinished top to bottom, New Roof 2020, Permitted newer Plumbing & drain lines, fully Fenced on oversized lot w/ double wide gates for RV & Boat Storage, Natural Gas dryer & on demand Hot Water & diesel Generator (negotiable) & freshly Painted. Large open concept kitchen w/ granite counter seating & stainless appliances, updated tile floor & carpeted bedrooms & bathrooms. Screened Porch & patio w/ Sunshades & Shade Pergola. Large permitted Hardie plank Garden Shed. Paver driveway & patio. Impact Windows & Doors & plantation style window treatments. High hat LED lighting, new Fans & Security system w/ Cameras. Abundant landscape lighting. A Rated Elementary; sidewalks w/ oak canopy.

Особенности


  • Полы:Carpet, Tile
  • Интерьер:BreakfastBar, BedroomOnMainLevel, BreakfastArea, FirstFloorEntry, Fireplace, LivingDiningRoom, MainLevelPrimary, Workshop
  • Экстерьер:Awnings, EnclosedPorch, Fence, SecurityHighImpactDoors, Patio, RoomForPool, Shed

Расположение


Запросить информацию
Людмила Богатов
Людмила Богатов
Брокер по недвижимости

Другие дома в Форт Лодердейл


1823 Sw 29th St
Fort Lauderdale, FL 33315
$600,000
207 Sw 11th Street
Fort Lauderdale, FL 33315
$495,000
1004 Mandarin Isle
Fort Lauderdale, FL 33315
$1,200,000
1141 Sw 8th Ter
Fort Lauderdale, FL 33315
$539,900