Bobby Estate Homes 6 bedroom Single Family House For Sale
13050 Sw 103 Ave, Miami, FL 33176

$6,900,000
Продажа
Людмила Богатов
Людмила Богатов
Брокер по недвижимости

Детали


  • МЛС номер:A11863601
  • Виртуальный тур: Да
  • Цена предложения: $6,900,000
  • Жилая площадь: 9600 фут² / 892 м²
  • Цена за фут/метр: $719 / $7,737
  • Комнаты:6
  • Полных ванн:8
  • Налоги:$8,337
  • Год строительства:2025
  • Дата публикации:August 23, 2025
  • Дней на рынке:275

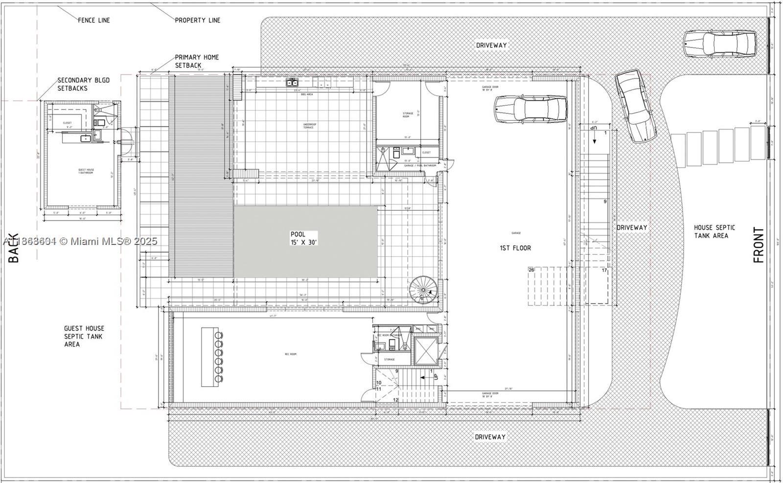
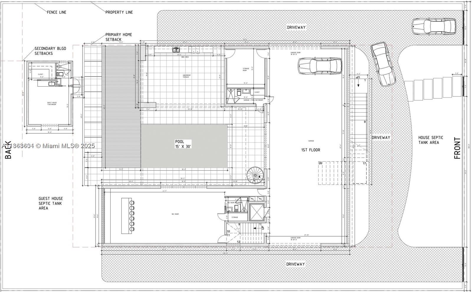
Описание


Exciting opportunity! A one of a kind custom new construction is underway in the heart of The Falls with an estimated completion date of May 2025. Situated on a rare 100x160 lot at the end of a private road, this stunning estate will feature 6 bedrooms, 8 baths and over 9,600 sq. ft. of living area. Highlights include garage parking for 6+ cars, a spacious recreation room, expansive pool area and much more. Truly a once in a lifetime find. Owner financing available.

Особенности


  • Полы:
  • Интерьер:Bidet, BuiltInFeatures, DualSinks, SecondFloorEntry, FrenchDoorsAtriumDoors, Pantry, UpperLevelPrimary, WalkInClosets, CentralVacuum, Elevator
  • Экстерьер:Balcony, Fence, SecurityHighImpactDoors, Lighting, Patio

Расположение


Запросить информацию
Людмила Богатов
Людмила Богатов
Брокер по недвижимости

Другие дома в Майами


10870 Sw 106th Ave
Miami, FL 33176
$1,499,000
8901 Sw 120th St
Miami, FL 33176
$5,350,000
8841 Sw 103rd St
Miami, FL 33176
$2,695,000
10506 Sw 89 Place
Miami, FL 33176
$4,500,000