Sans Souci Rev Amd 5 bedroom Single Family House For Rent
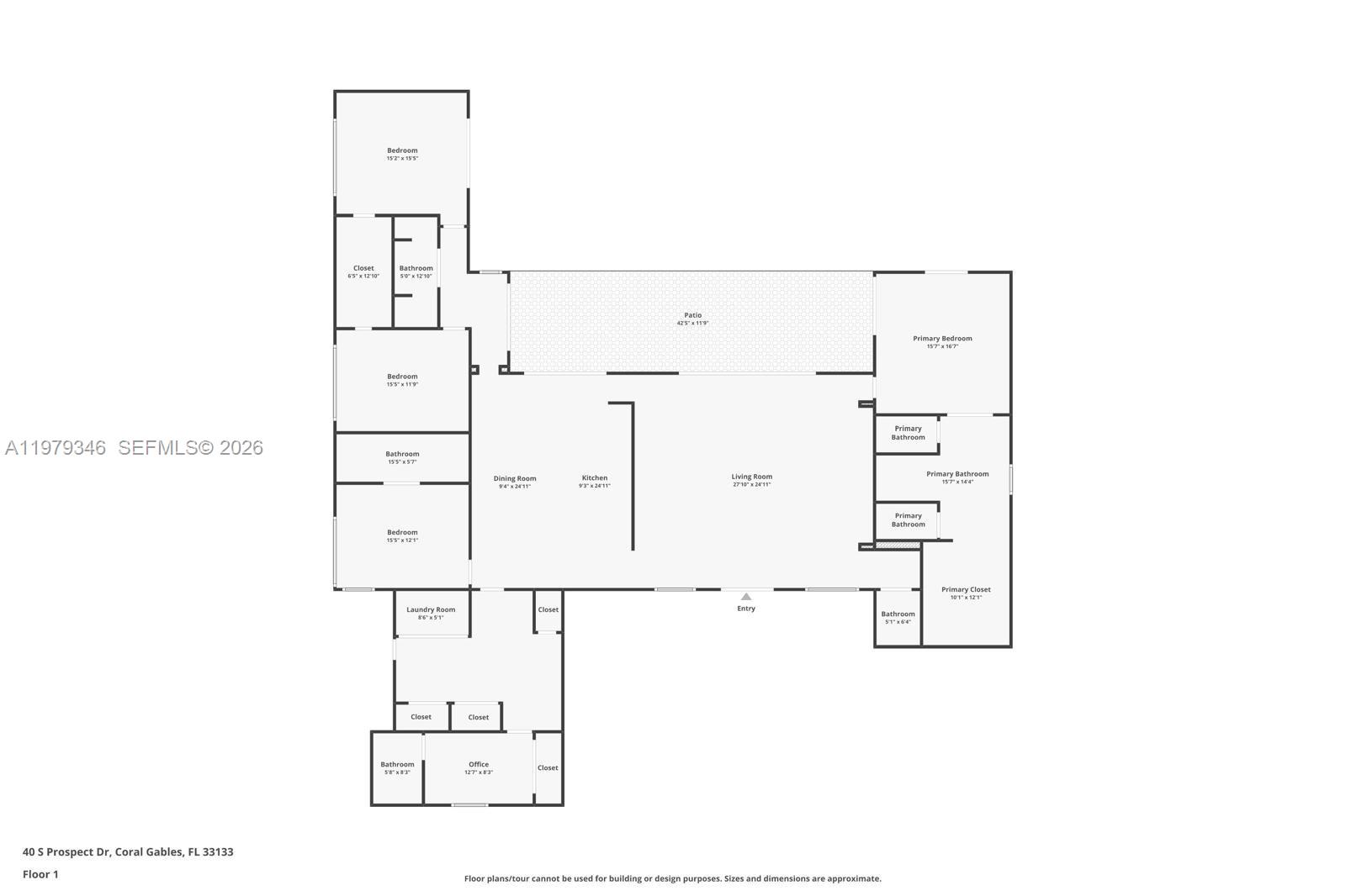
40 S Prospect Dr, Coral Gables, FL 33133

$22,500 / месяц
Аренда
Людмила Богатов
Людмила Богатов
Брокер по недвижимости

Детали


  • МЛС номер:A11979346
  • Виртуальный тур: Да
  • Цена предложения: $22,500
  • Жилая площадь: 3458 фут² / 321 м²
  • Цена за фут/метр: $7 / $70
  • Комнаты:5
  • Полных ванн:4
  • Неполных ванн:1
  • Год строительства:1959
  • Дата публикации:March 9, 2026
  • Дней на рынке:44

Описание


Exceptional 5-bedroom, 4.5-bath residence located in the exclusive Sunrise Harbour community. This spacious home offers 3,458 sq ft of living space with a functional layout including maid’s quarters and vaulted ceilings that bring in abundant natural light. The designer kitchen creates a seamless flow for everyday living and entertaining. Large doors lead to a covered terrace overlooking a saltwater pool and spa, surrounded by lush tropical landscaping for added privacy. Additional features include impact windows and doors and beautifully maintained outdoor spaces. Ideally located near Sunrise Park, with easy access to the dining, shopping, and entertainment of Coconut Grove and South Miami.

Особенности


  • Полы:
  • Интерьер:EntranceFoyer, EatInKitchen, FirstFloorEntry, KitchenDiningCombo, SplitBedrooms, VaultedCeilings, WalkInClosets
  • Экстерьер:SecurityHighImpactDoors, Lighting

Расположение


Запросить информацию
Людмила Богатов
Людмила Богатов
Брокер по недвижимости

Другие дома в Корал Гейблс


3900 S Douglas Rd
Coconut Grove, FL 33133
$22,000 / месяц
3630 Justison Rd
Miami, FL 33133
$38,000 / месяц
3551 E Glencoe St
Miami, FL 33133
$15,900 / месяц
3782 El Prado Blvd, Unit 1
Miami, FL 33133
$23,000 / месяц