Plat No 1 Opa Locka 3 bedroom Single Family House For Sale
205 Seaman Ave, Opa-Locka, FL 33054

$545,000
Под контрактом Продажа
Людмила Богатов
Людмила Богатов
Брокер по недвижимости

Детали


  • МЛС номер:A11763156
  • Виртуальный тур: Да
  • Цена предложения: $545,000
  • Жилая площадь: 1138 фут² / 106 м²
  • Цена за фут/метр: $479 / $5,155
  • Комнаты:3
  • Полных ванн:2
  • Налоги:$7,413
  • Год строительства:1954
  • Дата публикации:March 13, 2025
  • Дней на рынке:405

Описание


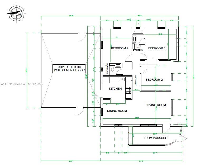
Discover this charming home at 205 Seaman Ave in Opa Locka, FL. This residence features a welcoming layout with ample natural light throughout. The spacious living area flows seamlessly into a well-appointed kitchen. Enjoy the comfort of multiple bedrooms and a cozy outdoor space appropriate for relaxation. Conveniently located near local amenities and transportation, this property offers a wonderful opportunity to own a huge piece of Opa Locka. Including 3 bedrooms and 2 bathrooms, great Florida room and covered patio, you are going to enjoy the 1341 sqft that composes this House. Located on a great corner on 9,286 SqFt lot with century old trees, 2 huge Mango trees and more.

Особенности


  • Полы:CeramicTile
  • Интерьер:
  • Экстерьер:FruitTrees, Porch, RoomForPool, StormSecurityShutters

Расположение


Запросить информацию
Людмила Богатов
Людмила Богатов
Брокер по недвижимости

Другие дома в Opa Locka


2525 Nw 156th St
Miami Gardens, FL 33054
$415,000
2530 Nw 152nd St
Miami Gardens, FL 33054
$465,000
1749 Nw 152nd St
Miami Gardens, FL 33054
$485,000
1215 Kasim St
Opa Locka, FL 33054
$550,000