Hollywood Little Ranches For Sale
2242 Monroe St, Hollywood, FL 33020

$2,045,000
Продажа
Людмила Богатов
Людмила Богатов
Брокер по недвижимости

Детали


  • МЛС номер:A11989396
  • Виртуальный тур: Да
  • Цена предложения: $2,045,000
  • Налоги:$7,361
  • Дата публикации:March 25, 2026
  • Дней на рынке:66

Описание


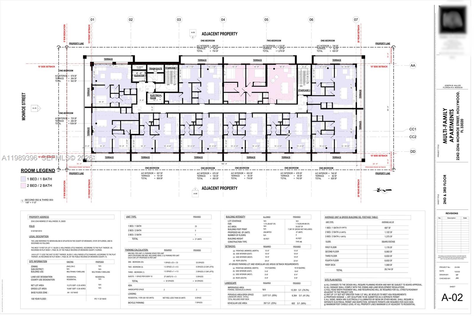
We are excited to present a rare development opportunity lot in the heart of Hollywood. This DH-2 zoned site is shovel-ready, with approved plans and permits for a 4-story, 27-unit multi-family building. The project comes with approved Plans and the Permit! With conventional financing, an investor could achieve: • Equity Multiple: 2.6+ ; • Gross Return: 160%+ ; The development plan includes: • Spacious 1, 2, and 3-bedroom units; • Rooftop deck with open-air pool; • Green space amenity with sun deck, BBQ area, and lounge zone; • Fitness center; • 34 covered parking spaces plus bicycle parking. Project and plans include 27 units total: 23 units with 1 bed/1 bath, 3 units with 2 bed/2 bath and 1 unit with 3 bed/2 bath. The site is just a 10-minute walk from Young Circle and an 8-minute drive to Hollywood Beach, offering excellent access to restaurants, arts, and transit. Project highlights: • Approved construction plans available; • Full geotechnical investigation completed; • Zoning and permitting confirmed for immediate build-out. Close with the permit in hand and start construction the next day!

Расположение


Запросить информацию
Людмила Богатов
Людмила Богатов
Брокер по недвижимости

Другие участки и земля в Холливуд


1601 N 16th Ct
Hollywood, FL 33020
$549,999
2205 Coolidge St
Hollywood, FL 33020
$359,000
1822 N Dixie Hwy
Hollywood, FL 33020
$1,500,000
2247 Jackson St
Hollywood, FL 33020
$1,200,000