Miramar Park Third Add 3 bedroom Single Family House For Sale
7756 Embassy Blvd, Miramar, FL 33023

$400,000
Продано
Людмила Богатов
Людмила Богатов
Брокер по недвижимости

Детали


  • МЛС номер:A11866201
  • Цена предложения: $450,000
  • Цена продажи: $400,000
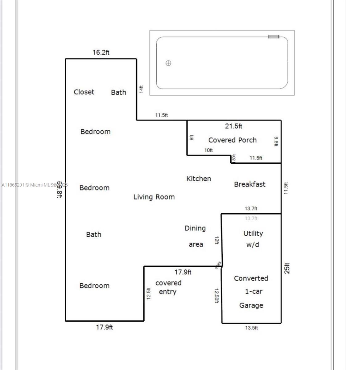
  • Жилая площадь: 1755 фут² / 163 м²
  • Цена за фут/метр: $228 / $2,453
  • Комнаты:3
  • Полных ванн:2
  • Налоги:$11,171
  • Год строительства:1968
  • Дата публикации:August 26, 2025
  • Дата продажи: November 25, 2025
  • Дней на рынке:90

Описание


Bring your vision and make this 3 bedroom, 2 bath home with a den and garage your own. Featuring a pool and a circular driveway, this property is full of possibilities. Major updates include a roof - 2018 and HVAC system - 2018. Perfect for investors, flippers, or buyers looking for a project, this home offers the chance to create a true gem in a desirable location. Don’t miss this opportunity to unlock its full potential NO LOW BALL OFFERS!!!!! BY APPOINTMENT ONNLY

Особенности


  • Полы:Other
  • Интерьер:BedroomOnMainLevel, FirstFloorEntry
  • Экстерьер:None

Расположение


Запросить информацию
Людмила Богатов
Людмила Богатов
Брокер по недвижимости

Другие дома в Мирамар


3500 Sw 40th St
West Park, FL 33023
$359,900
6433 Wiley St
Hollywood, FL 33023
$480,000
6336 Sw 22nd St
Miramar, FL 33023
$429,500
600 Sw 67th Ave
Pembroke Pines, FL 33023
$615,000