Mariners Cove Of Eagle La 5 bedroom Single Family House For Sale
346 Nw 118th Ave, Coral Springs, FL 33071

$860,000
Продано
Людмила Богатов
Людмила Богатов
Брокер по недвижимости

Детали


  • МЛС номер:A11900467
  • Виртуальный тур: Да
  • Цена предложения: $899,000
  • Цена продажи: $860,000
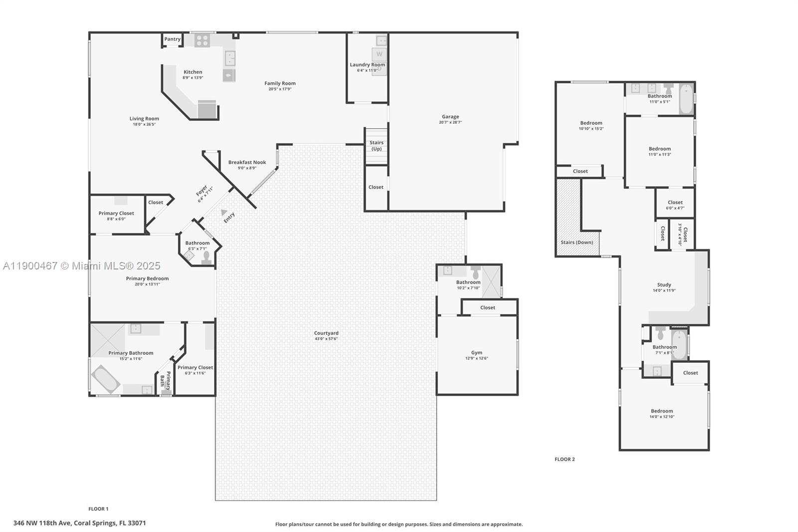
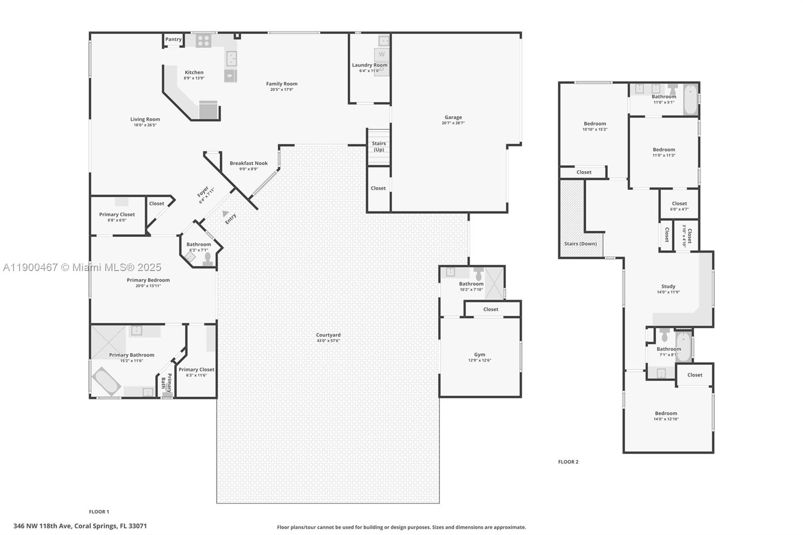
  • Жилая площадь: 3281 фут² / 305 м²
  • Цена за фут/метр: $262 / $2,821
  • Комнаты:5
  • Полных ванн:5
  • Обслуживание:$260
  • Налоги:$14,359
  • Год строительства:1998
  • Дата публикации:October 22, 2025
  • Дата продажи: December 5, 2025
  • Дней на рынке:43

Описание


Discover luxury courtyard living in this 5BD/5BA estate in Mariners Cove at Eagle Lake, a gated 130-home community in the heart of Coral Springs. This home showcases refined style and modern functionality with a reimagined kitchen featuring brand-new quartz countertops, custom cabinetry & stainless appliances. The primary suite offers a spa-like retreat with porcelain tile, floating vanities & custom closets, while all additional baths have been beautifully renovated. A detached guest house with full bath opens to the private courtyard & pool, perfect for a gym or in-law suite. Impact windows/doors, 22kW Generac generator w/500-gal propane tank, gas range/grill, epoxy 3-car garage, plantation shutters, new AC (2022), fenced corner lot, top schools & low HOA.

Особенности


  • Полы:Tile
  • Интерьер:BreakfastBar, BuiltInFeatures, BreakfastArea, ClosetCabinetry, EntranceFoyer, FamilyDiningRoom, FirstFloorEntry, HighCeilings, JettedTub, SeparateShower, VaultedCeilings, WalkInClosets
  • Экстерьер:Fence, Lighting, SecurityHighImpactDoors

Расположение


Запросить информацию
Людмила Богатов
Людмила Богатов
Брокер по недвижимости

Другие дома в Корал Спрингс


620 Nw 104th Ave
Coral Springs, FL 33071
$670,000
11937 Nw 11th Ct
Coral Springs, FL 33071
$1,100,000
12123 Nw 10th Mnr
Coral Springs, FL 33071
$1,074,000
10258 Vestal Mnr
Coral Springs, FL 33071
$1,700,000