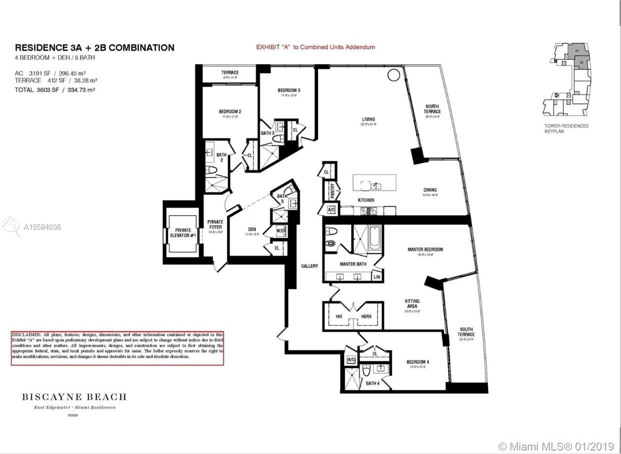
Biscayne Beach Condo 4 bedroom Condo For Sale
2900 Ne 7th Ave, Unit UPH-4602, Miami, FL 33137

$1,600,000
Продано
Людмила Богатов
Людмила Богатов
Брокер по недвижимости

Детали


  • МЛС номер:A10584036
  • Виртуальный тур: Да
  • Номер квартиры:UPH-4602
  • Цена предложения: $1,699,000
  • Цена продажи: $1,600,000
  • Жилая площадь: 3191 фут² / 296 м²
  • Цена за фут/метр: $501 / $5,397
  • Комнаты:4
  • Полных ванн:5
  • Обслуживание:$2,610
  • Налоги:$33,697
  • Год строительства:2017
  • Разрешены животные:Да
  • Дата публикации:December 11, 2018
  • Дата продажи: August 1, 2019
  • Дней на рынке:232

Описание


Spectacular upper level penthouse, 4 BD, 5 BA, 3191 SQFT unit features 11 ft ceilings, floor-to-ceiling glass windows, oversized terrace, views of Biscayne Bay, Miami Beach, and the city skyline. Located in the heart of the Miami's urban core, the Biscayne Beach address is located at 7th Avenue and NE 29th street along Biscayne Bay in one of the fastest growing neighborhoods Miami Midtown.

Особенности


  • Полы:CeramicTile, Marble
  • Интерьер:BedroomonMainLevel, FirstFloorEntry, Elevator
  • Экстерьер:Balcony
  • На канале:BayFront, OceanFront

Расположение


Запросить информацию
Людмила Богатов
Людмила Богатов
Брокер по недвижимости

Другие квартиры в Майами


700 Ne 24th Street, Unit 901
Miami, FL 33137
$2,950,000
788 Ne 23rd St, Unit 3202
Miami, FL 33137
$3,295,000
700 Ne 24th Street, Unit 4507
Miami, FL 33137
$3,495,000
700 Ne 24rd St, Unit PH-5802
Miami, FL 33137
$4,495,000