Costa Brava Condo 4 bedroom Condo For Sale
11 Island Ave, Unit 1201, Miami Beach, FL 33139

$3,990,000
Под контрактом Продажа
Людмила Богатов
Людмила Богатов
Брокер по недвижимости

Детали


  • МЛС номер:A11916259
  • Виртуальный тур: Да
  • Номер квартиры:1201
  • Цена предложения: $3,990,000
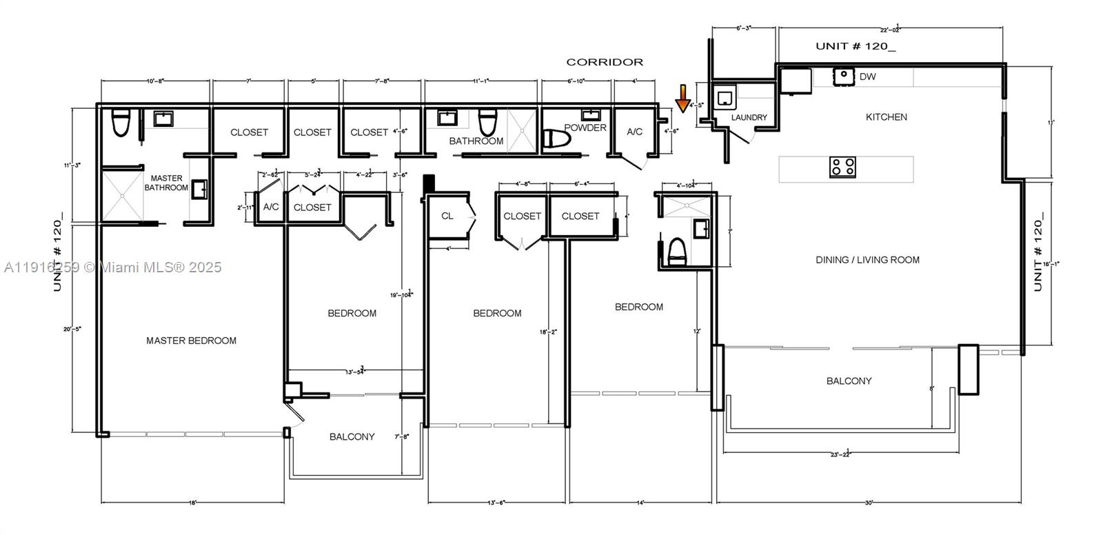
  • Жилая площадь: 2760 фут² / 256 м²
  • Цена за фут/метр: $1,446 / $15,561
  • Комнаты:4
  • Полных ванн:3
  • Неполных ванн:1
  • Налоги:$22,866
  • Год строительства:1972
  • На канале:Да
  • Дата публикации:November 18, 2025
  • Дней на рынке:175

Описание


Exquisite corner with sweeping views from South Beach to the dazzling Miami skyline. Originally 2 units, elegantly reimagined into a spacious 4BD/3.5BA residence w/2 terraces. The open concept living area seamlessly combines design & function, anchored by a stunning kitchen featuring Black Marquina marble. The grand primary suite has dual walk-in closets, a luxurious bath, and terrace. Highlights include impact windows & doors, remote-controlled shades, laundry room, & 2 parking spaces. A full-service building offering 24-hour security, a renovated gym, meeting and party rooms, and a rooftop solarium boasting some of the most spectacular views in the city. Ideally situated and moments from Sunset Harbour to Lincoln Road-an unbeatable central location and an exceptional place to live.

Особенности


  • Полы:Tile
  • Интерьер:BuiltInFeatures, BedroomOnMainLevel, ClosetCabinetry, DualSinks, EntranceFoyer, LivingDiningRoom, MainLevelPrimary, MainLivingAreaEntryLevel
  • Экстерьер:Balcony, SecurityHighImpactDoors
  • На канале:Bayfront
Запросить информацию
Людмила Богатов
Людмила Богатов
Брокер по недвижимости

Другие квартиры в Майами Бич


1250 Ocean Dr, Unit PH1
Miami Beach, FL 33139
$5,999,000
1709 Jefferson Ave, Unit TH-10
Miami Beach, FL 33139
$3,899,000
1616 Michigan Ave, Unit 1
Miami Beach, FL 33139
$1,425,000
1330 Ocean Dr, Unit 3CA
Miami Beach, FL 33139
$3,700,000