Nautica Condo 3 bedroom Condo For Sale
5970 Indian Creek Dr, Unit 203, Miami Beach, FL 33140

$900,000
Продано
Людмила Богатов
Людмила Богатов
Брокер по недвижимости

Детали


  • МЛС номер:A11922192
  • Виртуальный тур: Да
  • Номер квартиры:203
  • Цена предложения: $950,000
  • Цена продажи: $900,000
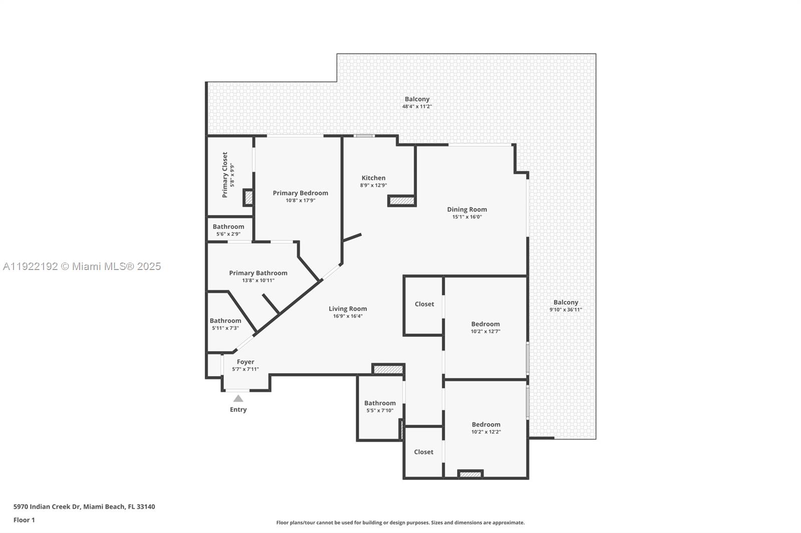
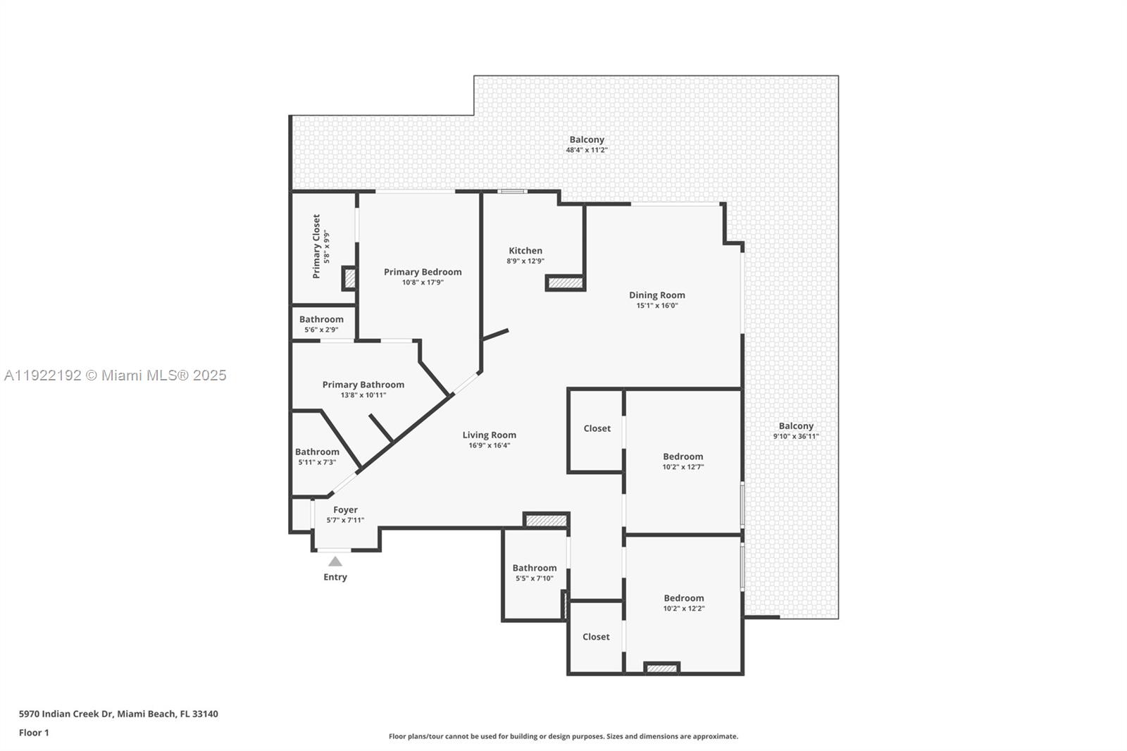
  • Жилая площадь: 1460 фут² / 136 м²
  • Цена за фут/метр: $616 / $6,635
  • Комнаты:3
  • Полных ванн:2
  • Неполных ванн:1
  • Обслуживание:$1,818
  • Налоги:$2,446
  • Год строительства:2004
  • На канале:Да
  • Дата публикации:November 29, 2025
  • Дата продажи: March 18, 2026
  • Дней на рынке:109

Описание


DIRECT INTRACOASTAL WATER VIEWS from this CORNER LANAI featuring a RARE OVERSIZED WRAP-AROUND COVERED TERRACE w/ nearly 900 SqFt & water hose. Enjoy 9-ft ceilings w/ floor to ceiling glass, bamboo wood floors, an open kitchen w/ granite countertops & Thermador induction cooktop. Split-bedroom floor plan, formal dining & living rooms. Primary suite offers water views, terrace access, walk-in closet & marble bath w/ dual sinks, Jacuzzi & separate shower. Includes COVERED TANDEM PARKING for 2 cars + Kayak storage & guest parking. Well maintained building w/ no upcoming projects. Monthly dues include FULL RESERVES, cable, internet & more. Great amenities include rooftop heated pool, hot tub, sauna, steam room, fitness center, marina to launch your paddleboard! Short walk to the beach! Pet Friendly!

Особенности


  • Полы:Hardwood, Wood
  • Интерьер:BreakfastBar, BedroomOnMainLevel, DiningArea, SeparateFormalDiningRoom, DualSinks, FirstFloorEntry, HighCeilings, JettedTub, MainLivingAreaEntryLevel, SplitBedrooms, SeparateShower, WalkInClosets
  • Экстерьер:Balcony, Porch
  • На канале:IntracoastalAccess

Расположение


Запросить информацию
Людмила Богатов
Людмила Богатов
Брокер по недвижимости

Другие квартиры в Майами Бич


5225 Collins Ave, Unit PH7
Miami Beach, FL 33140
$1,975,000
2901 Collins Ave, Unit 1001
Miami Beach, FL 33140
$6,995,000
5757 Collins Ave, Unit 1605
Miami Beach, FL 33140
$2,099,000
5875 Collins Ave, Unit 502
Miami Beach, FL 33140
$3,300,000