Fairhaven 2 bedroom Single Family House For Sale
3571 Fair Isle St, Coconut Grove, FL 33133

$739,500
Продано
Людмила Богатов
Людмила Богатов
Брокер по недвижимости

Детали


  • МЛС номер:A10551644
  • Виртуальный тур: Да
  • Цена предложения: $799,000
  • Цена продажи: $739,500
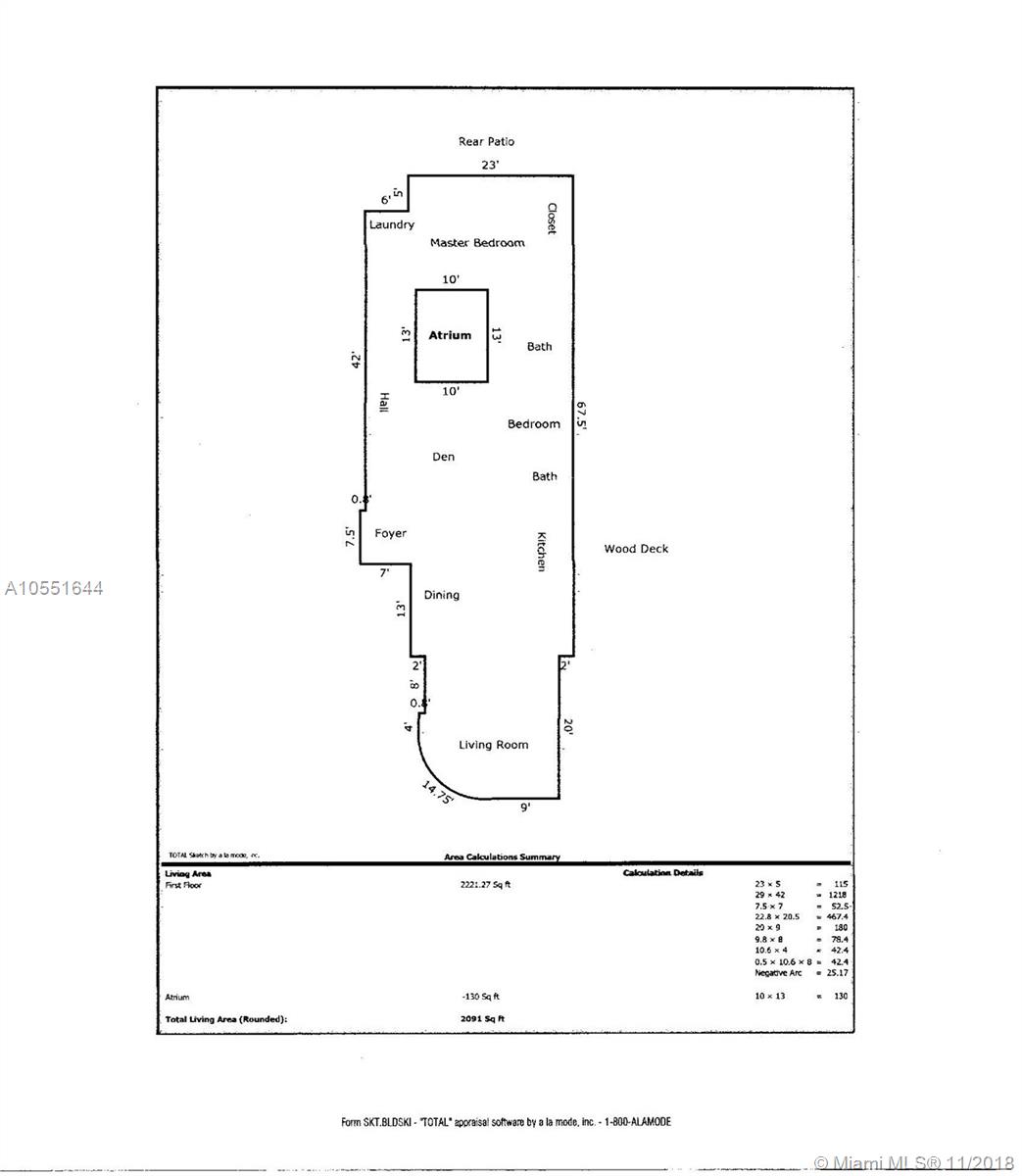
  • Жилая площадь: 2091 фут² / 194 м²
  • Цена за фут/метр: $354 / $3,807
  • Комнаты:2
  • Полных ванн:2
  • Налоги:$6,930
  • Год строительства:1950
  • Дата публикации:October 29, 2018
  • Дата продажи: June 7, 2019
  • Дней на рынке:220

Описание


LOCATED IN ONE Of THE FINEST NEIGHBORHOOD IN COCONUT GROVE ONE BLOCK FROM BISCAYNE BAY. THIS 6,600 SQ FT CORNER LOT - FEATURES 2 BED 2BATH, DEN, ARTIST STUDIO, SKYLIGHTS IN STUDIO & MASTER BEDROOM, LIVING ROOM WITH GLASS BLOCK WINDOWS FOR BEAUTIFUL LIGHT, GALLEY KITCHEN, GRANITE COUNTERS BREAKFAST COUNTER. WOOD DECK & LARGE BACKYARD. DIRECT BRIDGE ACCESS TO "GROVE ISLE MARINA" FOR BOATING ENTHUSIASTS - CLOSE TO COCONUT GROVE SHOPPING, DINING & ENTERTAINMENT EASY ACCESS TO BRICKELL, BRICKELL CITY CENTER, DOWNTOWN & BRIGHLINE TRAIN STATION. HOUSE NEEDS TLC OR COULD PROVIDE A PERFECT LOCATION FOR A NEW HOME

Особенности


  • Полы:Tile
  • Интерьер:BreakfastBar, FirstFloorEntry, LivingDiningRoom, MainLevelMaster, Skylights, Atrium
  • Экстерьер:Fence, Porch, StormSecurityShutters

Расположение


Запросить информацию
Людмила Богатов
Людмила Богатов
Брокер по недвижимости

Другие дома в Коконат Гроув


2490 Abaco Ave
Miami, FL 33133
$2,200,000
3373 Sw 29th Ter
Miami, FL 33133
$750,000
3522 William Avenue
Miami, FL 33133
$1,895,000
3180 Sw 26th St
Miami, FL 33133
$960,000