Golden Shores Ocean Blvd 5 bedroom Single Family House For Sale
18960 N Bay Rd, Sunny Isles Beach, FL 33160

$2,700,000
Продано
Людмила Богатов
Людмила Богатов
Брокер по недвижимости

Детали


  • МЛС номер:A10604348
  • Виртуальный тур: Да
  • Цена предложения: $3,800,000
  • Цена продажи: $2,700,000
  • Жилая площадь: 6185 фут² / 575 м²
  • Цена за фут/метр: $437 / $4,699
  • Комнаты:5
  • Полных ванн:5
  • Неполных ванн:2
  • Налоги:$56,861
  • Год строительства:2010
  • Разрешены животные:Да
  • На канале:Да
  • Дата публикации:January 30, 2019
  • Дата продажи: April 23, 2020
  • Дней на рынке:448

Описание


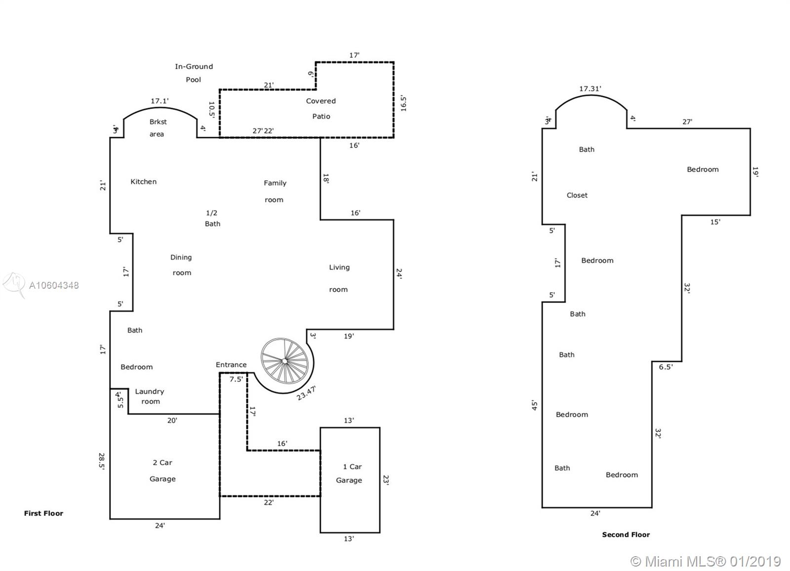
Beautiful Mediterranean Home nestled inside the community of Golden Shores, located on a prime and exclusive waterfront offering a spectacular view of the intracoastal. This stunning house features 5 BDs + 5 BAs + 2 HBA w/ large terraces supporting the bedrooms. Heated pool and jacuzzi by the bay, built in grill, outdoors shower and brick patio. Featured with finished 3 cars garage, 2 complete laundry rooms, wet bar, custom made kitchen, high ceilings, elevator and spiral staircase. Completely hurricane proof w/ whole house Generator, tankless gas heater, 4 central air conditioners and ozone treated pool. It can accommodate a private dock for up to 60' Yacht. Enjoy a relaxing day at the beach 5 minutes walking. This Home can be yours!

Особенности


  • Оборудование:Intercom
  • Полы:Carpet, Marble, Other
  • Интерьер:WetBar, BuiltinFeatures, BedroomonMainLevel, BreakfastArea, DiningArea, SeparateFormalDiningRoom, EntranceFoyer, EatinKitchen, Fireplace, KitchenIsland, UpperLevelMaster, VaultedCeilings, Atrium, BayWindow, CentralVacuum, Elevator, Intercom
  • Экстерьер:Balcony, Barbecue, SecurityHighImpactDoors, Lighting, OutdoorGrill, OutdoorShower, Patio
  • На канале:IntracoastalAccess, OceanAccess

Расположение


Запросить информацию
Людмила Богатов
Людмила Богатов
Брокер по недвижимости

Другие дома в Hollywood


3443 Ne 166th St
North Miami Beach, FL 33160
$2,399,000
268 S Parkway
Golden Beach, FL 33160
$14,800,000
465 Golden Beach Dr
Golden Beach, FL 33160
$4,995,000
4040 Island Estates Dr
Aventura, FL 33160
$9,999,999