Somerset II South 4 bedroom Single Family House For Sale
12822 Sw 53rd Ct, Miramar, FL 33027

$636,000
Продано
Людмила Богатов
Людмила Богатов
Брокер по недвижимости

Детали


  • МЛС номер:A11435087
  • Виртуальный тур: Да
  • Цена предложения: $650,000
  • Цена продажи: $636,000
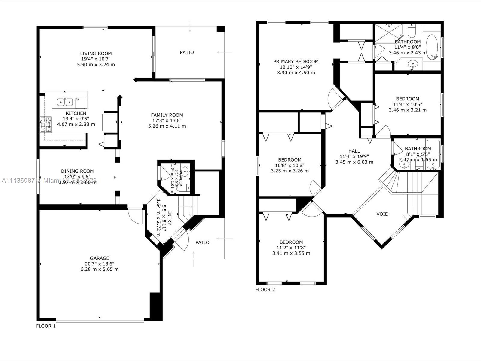
  • Жилая площадь: 1823 фут² / 169 м²
  • Цена за фут/метр: $349 / $3,755
  • Комнаты:4
  • Полных ванн:2
  • Неполных ванн:1
  • Обслуживание:$150
  • Налоги:$3,731
  • Год строительства:2002
  • Дата публикации:August 17, 2023
  • Дата продажи: October 25, 2023
  • Дней на рынке:68

Описание


Charming 2-story home, with 4 bedrooms and 2.5 bathrooms, this property presents an exceptional opportunity to acquire a stunning family home in the desirable gated community Vizcaya in Miramar. This spacious home is a great choice for those seeking a comfortable living environment, featuring formal dining, living and family rooms, tile floors throughout the 1st floor, and carpet on the 2nd floor. Kitchen with wood cabinets and granite countertops. Step outside to discover a fully fenced backyard with covered area, perfect for entertaining, and 2-car garage. The Property has a NEW ROOF (3 years), the A/C is 4 years, and the water heater is 5 years old. Amenities include 2 clubhouse with pools, and 8 kids’ playgrounds. Close to the Turnpike, restaurants, shopping and recreational facilities

Особенности


  • Полы:Carpet, Tile
  • Интерьер:DiningArea, SeparateFormalDiningRoom, EntranceFoyer, FirstFloorEntry, GardenTubRomanTub, SeparateShower, UpperLevelPrimary, WalkInClosets, Loft
  • Экстерьер:Fence, Lighting, Patio, StormSecurityShutters

Расположение


Запросить информацию
Людмила Богатов
Людмила Богатов
Брокер по недвижимости

Другие дома в Мирамар


1941 Sw 148th Way
Miramar, FL 33027
$774,500
3761 Sw 144th Ave
Miramar, FL 33027
$1,800,000
1653 Sw 158th Ter
Pembroke Pines, FL 33027
$689,000
13247 Sw 26th St
Miramar, FL 33027
$950,000