Hammock Oaks Harbor Sec 3 6 bedroom Single Family House For Sale
11065 Marin St, Coral Gables, FL 33156

$7,900,000
Продано
Людмила Богатов
Людмила Богатов
Брокер по недвижимости

Детали


  • МЛС номер:A11650175
  • Виртуальный тур: Да
  • Цена предложения: $8,399,000
  • Цена продажи: $7,900,000
  • Жилая площадь: 6368 фут² / 592 м²
  • Цена за фут/метр: $1,241 / $13,353
  • Комнаты:6
  • Полных ванн:5
  • Неполных ванн:1
  • Налоги:$74,133
  • Год строительства:1996
  • На канале:Да
  • Дата публикации:August 29, 2024
  • Дата продажи: June 2, 2025
  • Дней на рынке:276

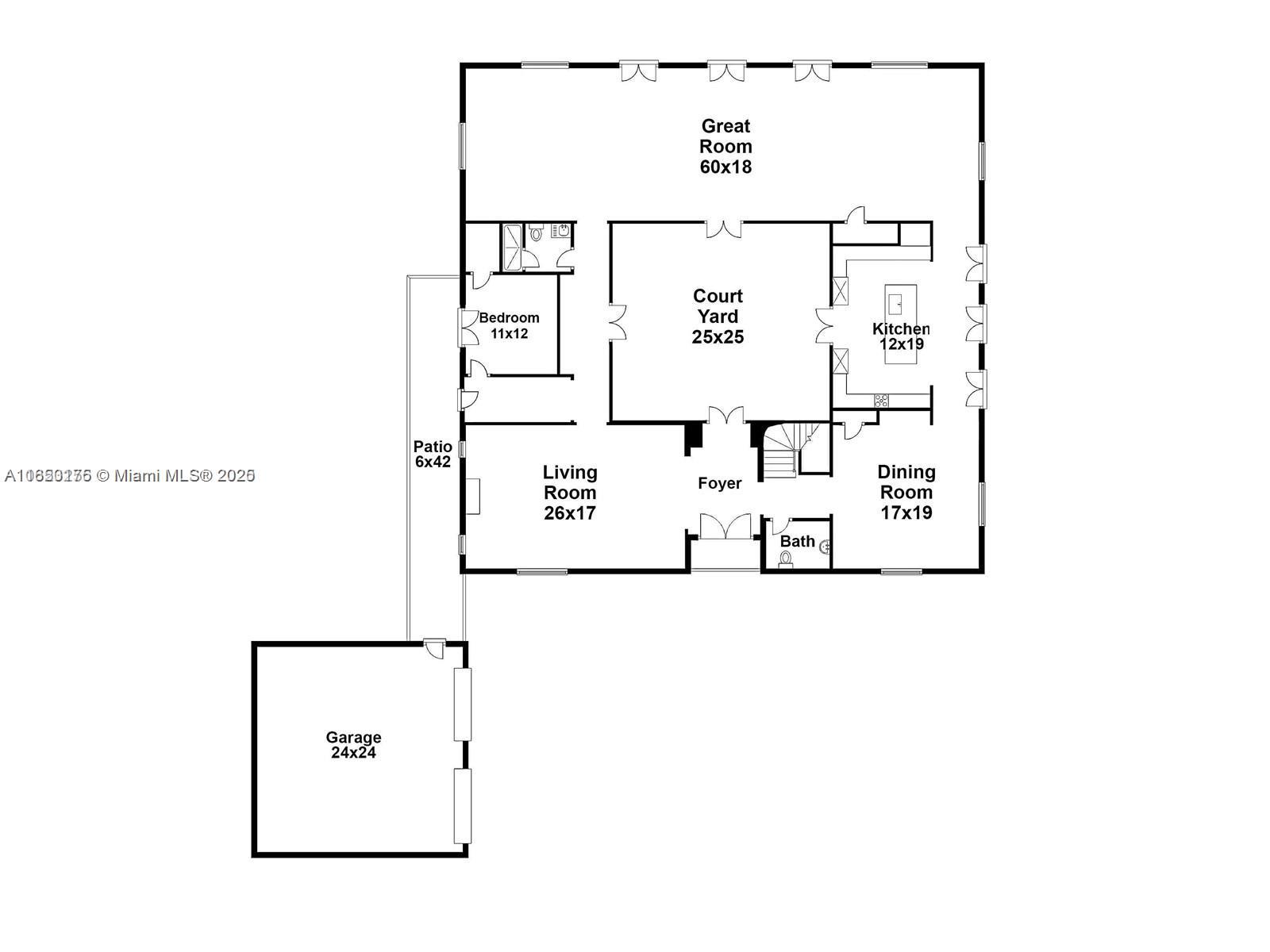
Описание


Waterfront Coral Gables Gated Estate with dock, serene unobstructed waterfront views, and professional tennis court on Builders Acre! This Portuondo Perotti designed home, in the quiet guard gated neighborhood of Hammock Oaks, is situated on a 40,000 SF lot with a ±7,000 SF home, 2 Spectacular Tree Houses! This beautiful home has 6 Bed/5.5 Bath (+2 Bonus Rms, Office, Gym Totaling 8 Rms), Living Room and master bedroom with fireplaces, beautiful Courtyard and a separate Barn Style Garage bringing exquisite style to this home! Unobstructed Serene Waterfront Views, includes 12ft Ceilings, Italian Marble, Hardwood Floors, Pool, Cabana, only one bridge to Open Bay, 36’ Dock on Almost 100 Ft Linear Waterfront! Seven Minute Drive to Open Bay! LEAST EXPENSiVE WATERFRONT “ACRE” IN ALL DADE COUNTY

Особенности


  • Полы:Carpet, Hardwood, Marble, Other, Wood
  • Интерьер:BedroomOnMainLevel, DiningArea, SeparateFormalDiningRoom, EatInKitchen, FirstFloorEntry, Fireplace, GardenTubRomanTub, KitchenDiningCombo, SittingAreaInPrimary, SplitBedrooms, Skylights, UpperLevelPrimary, VaultedCeilings, WalkInClosets
  • Экстерьер:Balcony, Deck, Lighting, Porch, Patio, TennisCourts
  • На канале:Bayfront, FixedBridge, Mangrove, OceanAccess

Расположение


Запросить информацию
Людмила Богатов
Людмила Богатов
Брокер по недвижимости

Другие дома в Корал Гейблс


5825 Sw 111th Ter
Pinecrest, FL 33156
$11,950,000
6175 Sw 128th Street
Pinecrest, FL 33156
$6,795,000
11111 Killian Park Rd
Pinecrest, FL 33156
$6,990,000
6285 Old Cutler Rd
Pinecrest, FL 33156
$8,970,000