North Hollywood 2 bedroom Single Family House For Sale
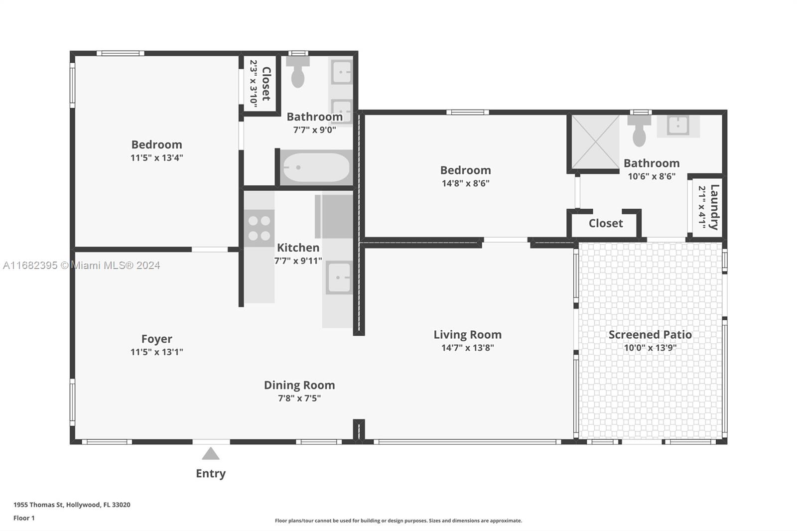
1955 Thomas St, Hollywood, FL 33020

$485,000
Продано
Людмила Богатов
Людмила Богатов
Брокер по недвижимости

Детали


  • МЛС номер:A11682395
  • Виртуальный тур: Да
  • Цена предложения: $499,000
  • Цена продажи: $485,000
  • Жилая площадь: 1033 фут² / 96 м²
  • Цена за фут/метр: $470 / $5,054
  • Комнаты:2
  • Полных ванн:2
  • Налоги:$7,672
  • Год строительства:1951
  • Дата публикации:October 26, 2024
  • Дата продажи: December 30, 2024
  • Дней на рынке:64

Описание


The Alonso Team is happy to announce this beautifully remodeled 2-bedroom, 2-bath oasis, designed for those who value style, comfort, and a bit of fun!This home boasts impact windows, accordion shutters, and a huge, fully fenced yard for complete privacy. Enjoy the resurfaced pool with a brand-new heater for year-round relaxation,and a dedicated mini-golf area that’s perfect for both casual play and entertaining guests. Inside, a sleek, modern kitchen awaits, complete with beautiful cabinetry, elegant countertops, and new stainless steel appliances. This home is move-in ready, offering a relaxed lifestyle with all the luxury touches. Located just 2.5 miles from Hollywood Beach, you'll be close to beautiful beaches, parks, and local dining.

Особенности


  • Полы:Tile
  • Интерьер:BedroomOnMainLevel, FirstFloorEntry
  • Экстерьер:EnclosedPorch, Fence, Patio, SecurityHighImpactDoors, StormSecurityShutters

Расположение


Запросить информацию
Людмила Богатов
Людмила Богатов
Брокер по недвижимости

Другие дома в Холливуд


2730 Adams St
Hollywood, FL 33020
$499,900
2431 Coolidge St
Hollywood, FL 33020
$463,000
2226 Cleveland St
Hollywood, FL 33020
$650,000
2230 Cleveland St
Hollywood, FL 33020
$525,000