Village Grove 4 bedroom Single Family House For Sale
7765 Sw 133rd Ter, Pinecrest, FL 33156

$1,350,000
Продано
Людмила Богатов
Людмила Богатов
Брокер по недвижимости

Детали


  • МЛС номер:A11702134
  • Виртуальный тур: Да
  • Цена предложения: $1,425,000
  • Цена продажи: $1,350,000
  • Жилая площадь: 2018 фут² / 187 м²
  • Цена за фут/метр: $669 / $7,201
  • Комнаты:4
  • Полных ванн:3
  • Налоги:$16,843
  • Год строительства:1957
  • Дата публикации:December 2, 2024
  • Дата продажи: April 1, 2025
  • Дней на рынке:119

Описание


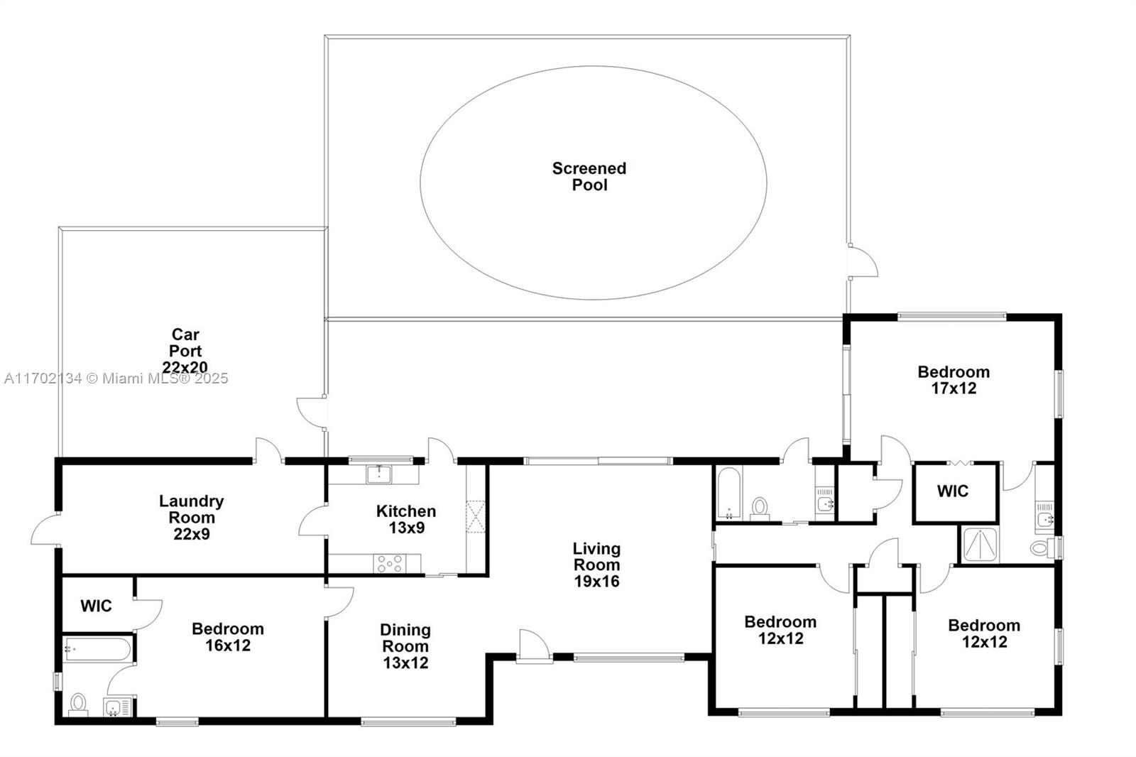
Spacious and airy, this 4 bedroom, 3 bathroom Pinecrest home features a new kitchen with quartz counters and stainless steel appliances, as well as all new impact glass windows and doors! The open living spaces feature terrazzo floors, and the living room has a beautiful pool view. Outside find a screened pool and extra-deep covered porch that is perfect for outdoor entertaining. The split floor plan includes the primary bedroom with a spacious walk-in closet and 2 additional bedrooms to one side, with a 4th bedroom with an en-suite bathroom to the other side. There is also an extra-large laundry/utility/storage room, plus a 2-car carport with additional storage. Located close to shopping, schools, and more, this is a fabulous opportunity!

Особенности


  • Полы:Terrazzo
  • Интерьер:DiningArea, SeparateFormalDiningRoom, MainLevelPrimary, SplitBedrooms, WalkInClosets
  • Экстерьер:EnclosedPorch, SecurityHighImpactDoors

Расположение


Запросить информацию
Людмила Богатов
Людмила Богатов
Брокер по недвижимости

Другие дома в Пайнкрест


12991 Lerida St
Coral Gables, FL 33156
$6,900,000
5780 Las Palmas Dr
Coral Gables, FL 33156
$3,749,000
7400 Sw 116th St
Pinecrest, FL 33156
$2,450,000
7360 Sw 128th St
Pinecrest, FL 33156
$2,249,000