Cypress Creek Estates 2 bedroom Single Family House For Sale
1402 Se 1st St, Pompano Beach, FL 33060

$499,000
Продано
Людмила Богатов
Людмила Богатов
Брокер по недвижимости

Детали


  • МЛС номер:A11795757
  • Виртуальный тур: Да
  • Цена предложения: $525,000
  • Цена продажи: $499,000
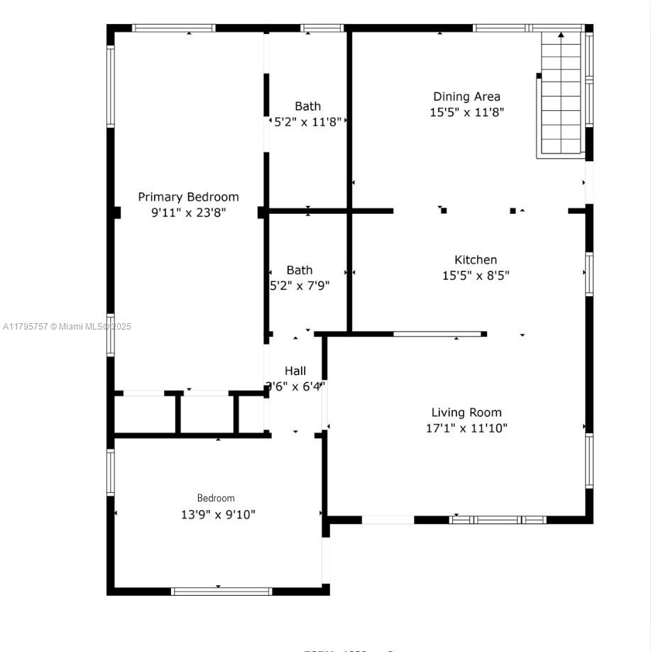
  • Жилая площадь: 1141 фут² / 106 м²
  • Цена за фут/метр: $437 / $4,707
  • Комнаты:2
  • Полных ванн:2
  • Налоги:$3,971
  • Год строительства:1948
  • Дата публикации:May 8, 2025
  • Дата продажи: September 2, 2025
  • Дней на рынке:116

Описание


Charming cottage vibe, ranch-style home 1 mile from the beach, tucked away one street off popular Atlantic Blvd. NEW 2021 roof, PVC plumbing, AC 4 yo, 2025 renovated primary bathroom, hurricane impact windows/doors, & spacious basement with both interior & private exterior access, perfect for guests, storage, or studio. Open kitchen with white cabinetry, marble countertops, & stainless steel appliances. Island provides additional prep space & casual seating, seamlessly transitioning into dining area. Large fully enclosed yard with garden, porch & outdoor area ideal for entertaining or relaxing under the sun. Enjoy the zen-inspired outdoor shower, or soak under the stars in the private jacuzzi included with the sale. Oversized driveway perfect for vehicle, boats, jet skis, work trucks etc.

Особенности


  • Полы:Tile
  • Интерьер:BreakfastBar, BedroomOnMainLevel, BreakfastArea, EatInKitchen, FirstFloorEntry, KitchenIsland, KitchenDiningCombo
  • Экстерьер:Fence, Lighting, Porch, RoomForPool, SecurityHighImpactDoors

Расположение


Запросить информацию
Людмила Богатов
Людмила Богатов
Брокер по недвижимости

Другие дома в Помпано Бич


201 Se 3rd Ave
Pompano Beach, FL 33060
$1,100,000
1019 Nw 4th Ave
Pompano Beach, FL 33060
$300,000
371 Se 3rd St
Pompano Beach, FL 33060
$985,000
700 Sw 8th St
Pompano Beach, FL 33060
$539,900