Fulford By The Sea Rev Pl 4 bedroom Single Family House For Sale
1187 Ne 182nd St, North Miami Beach, FL 33162

$920,000
Продано
Людмила Богатов
Людмила Богатов
Брокер по недвижимости

Детали


  • МЛС номер:A11801823
  • Виртуальный тур: Да
  • Цена предложения: $988,000
  • Цена продажи: $920,000
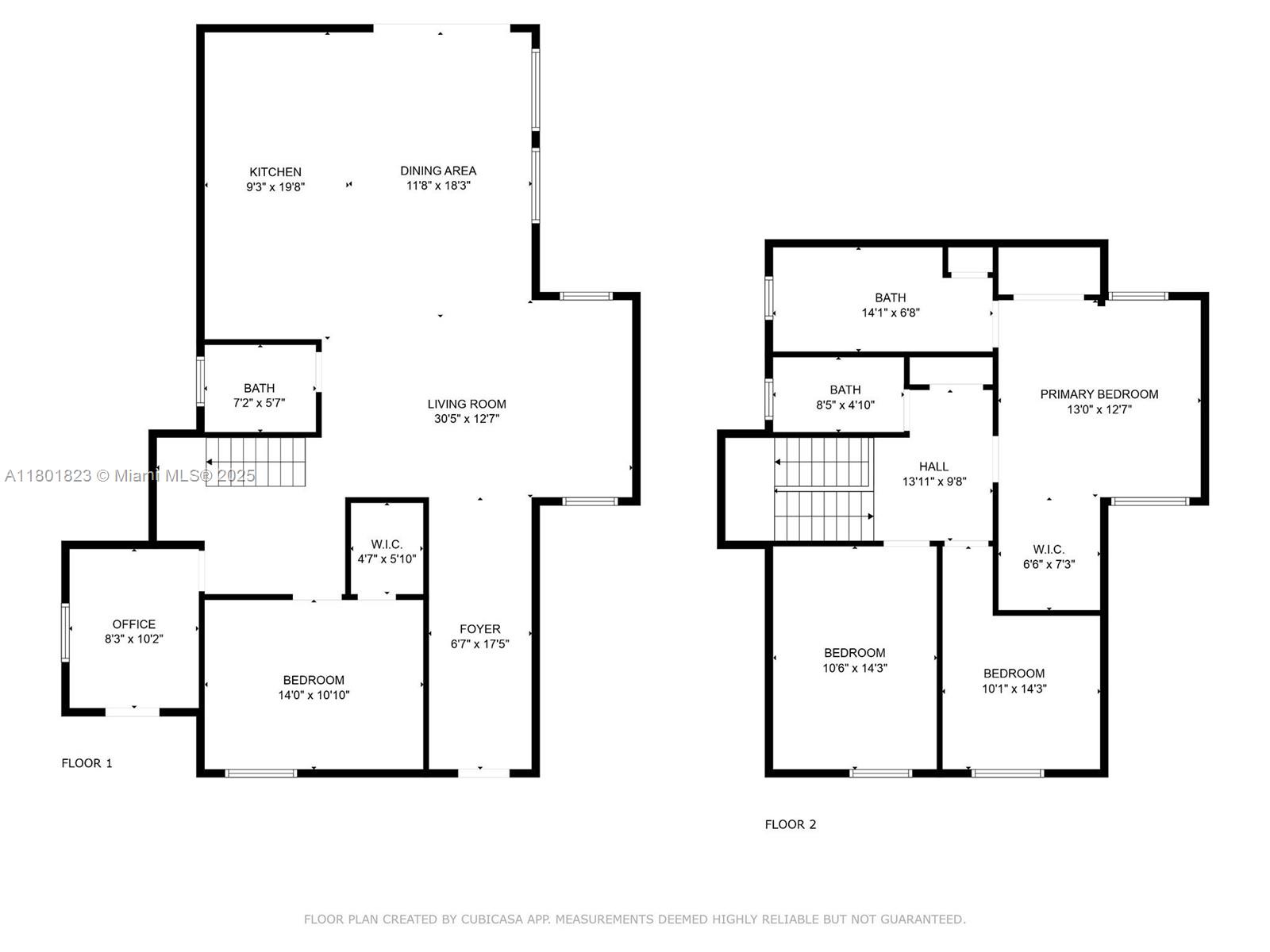
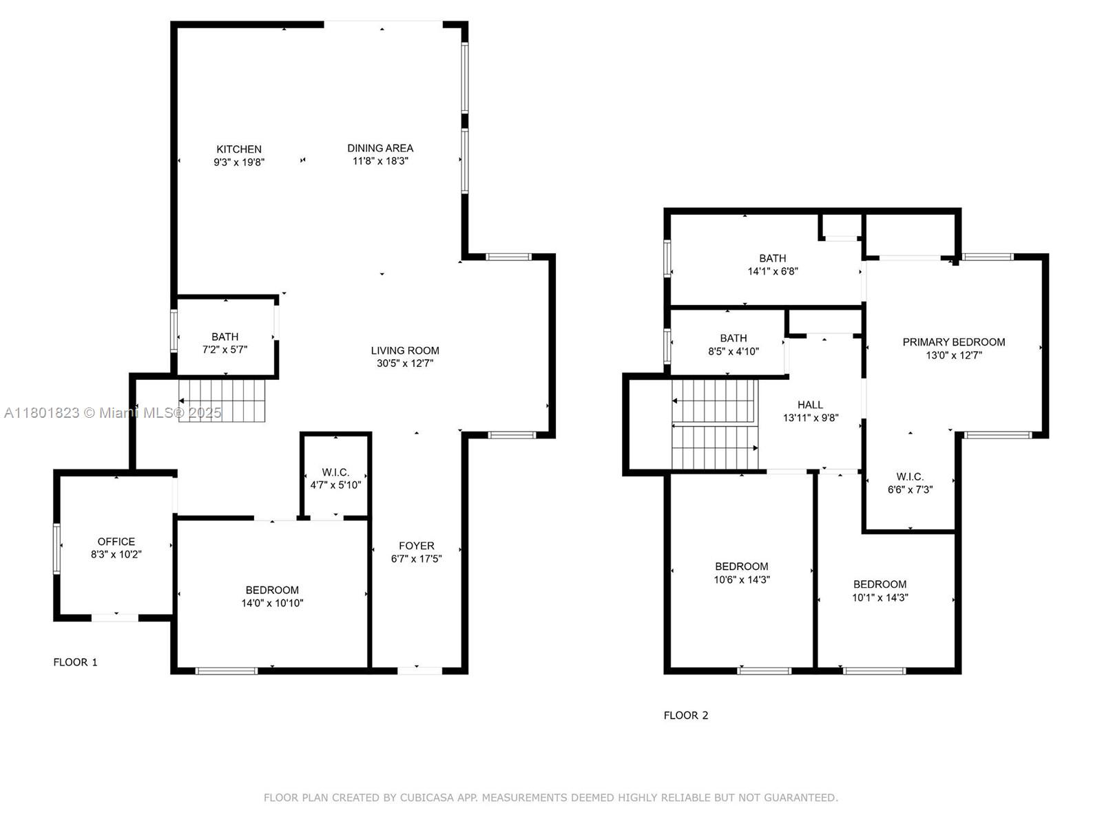
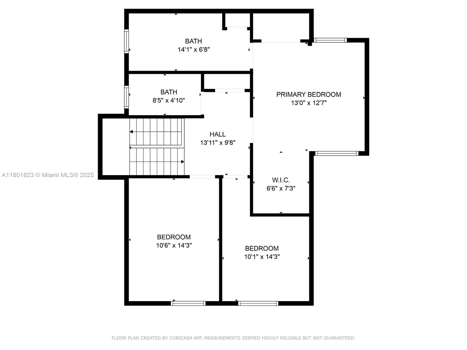
  • Жилая площадь: 2100 фут² / 195 м²
  • Цена за фут/метр: $438 / $4,716
  • Комнаты:4
  • Полных ванн:3
  • Налоги:$6,135
  • Год строительства:1956
  • Дата публикации:May 12, 2025
  • Дата продажи: August 27, 2025
  • Дней на рынке:106

Описание


The pinnacle of modern luxury is in this fully redesigned 4-bed, 3-baths+den home in beautiful North Miami Beach. Crafted with top-tier materials, the open-concept layout features striking Black Fusion Quartzite and Ultra white quartz countertops & backsplashes, sleek Italian cabinetry w/matte & gloss finishes complements luxury appliances by Miele, Thermador, a 48" panel-ready KitchenAid fridge & Samsung washer/dryer. high-end Crystal White flooring on 1st floor & wooden upstairs w/incredibles design details. Brand-new electrical double-combo main panel & CPVC pipes & drains, Tesla EV charger & metal roof. Driveway fits 6 cars, spacious front porch & patio offer exceptional outdoor living, at just 10min. from the beach. Assumable loan at 3% int. rate!!! CHECK ATTACHMENTS!

Особенности


  • Полы:Hardwood, Marble, Wood
  • Интерьер:BedroomOnMainLevel, BreakfastArea, ClosetCabinetry, EatInKitchen, FirstFloorEntry, KitchenIsland, LivingDiningRoom, Pantry, TubShower, UpperLevelPrimary
  • Экстерьер:Barbecue, Fence, Lighting, SecurityHighImpactDoors

Расположение


Запросить информацию
Людмила Богатов
Людмила Богатов
Брокер по недвижимости

Другие дома в Норт Майами Бич



North Miami Beach, FL 33162
$725,000
1379 Ne 177th St
North Miami Beach, FL 33162
$585,000
111 Ne 175th St
North Miami Beach, FL 33162
$640,000
18151 Ne 9th Ct
North Miami Beach, FL 33162
$805,100