Tanglewood Townhomes 2 bedroom Townhouse For Sale
131 Sw 97th Ave, Pembroke Pines, FL 33025

$346,000
Продано
Людмила Богатов
Людмила Богатов
Брокер по недвижимости

Детали


  • МЛС номер:A11807565
  • Виртуальный тур: Да
  • Цена предложения: $355,000
  • Цена продажи: $346,000
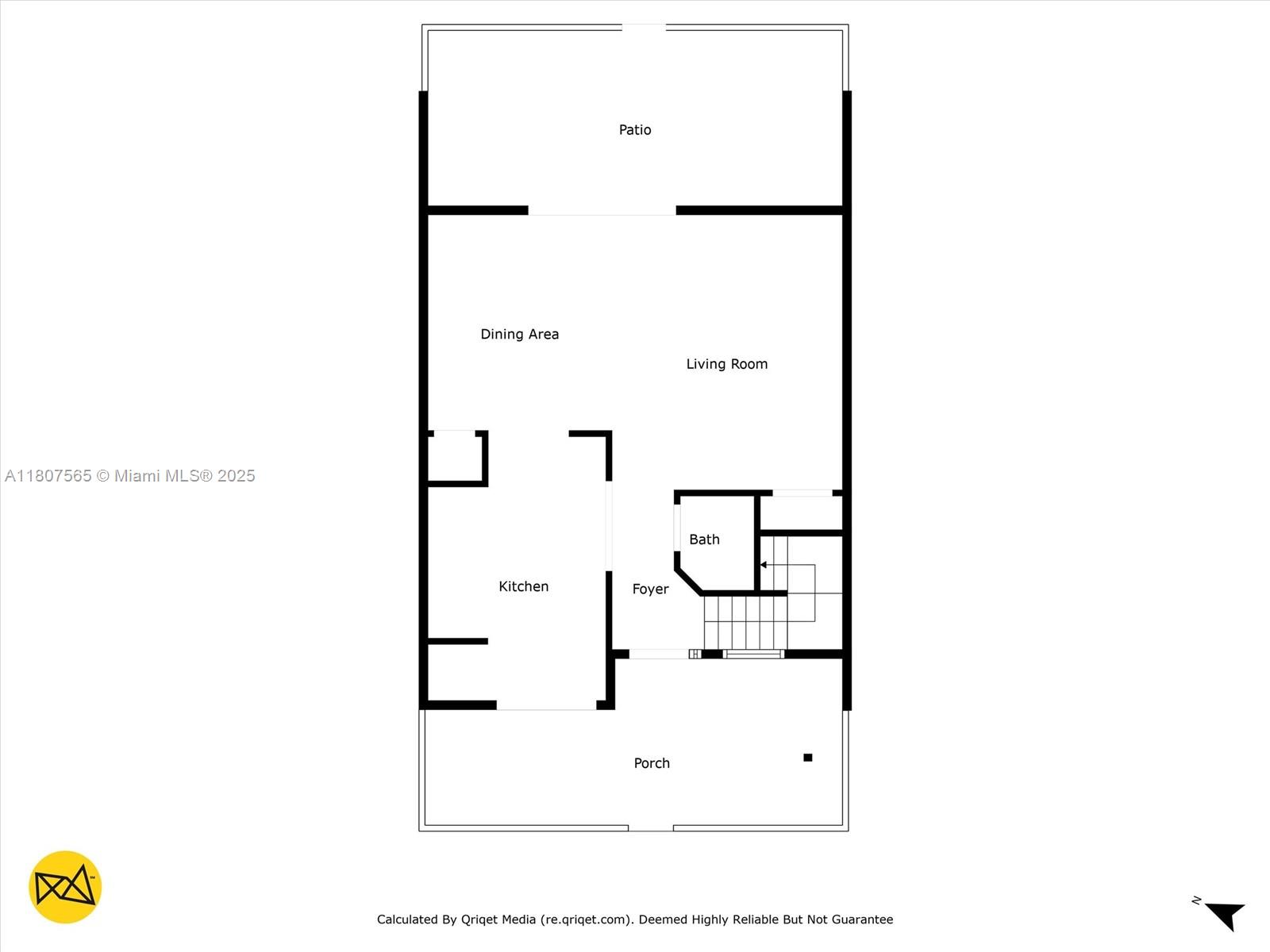
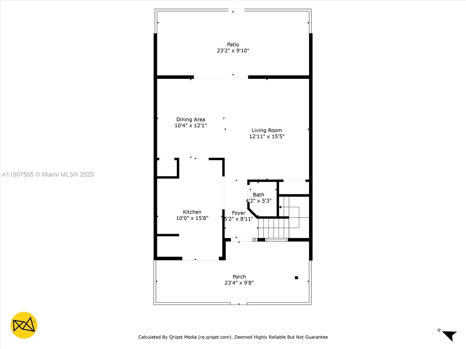
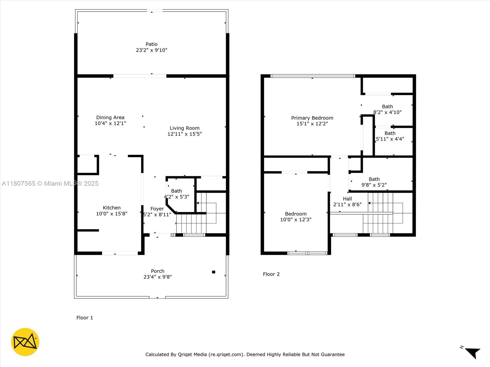
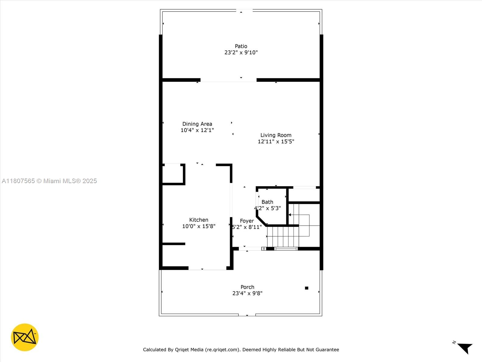
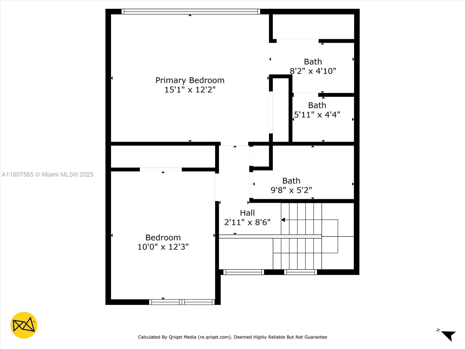
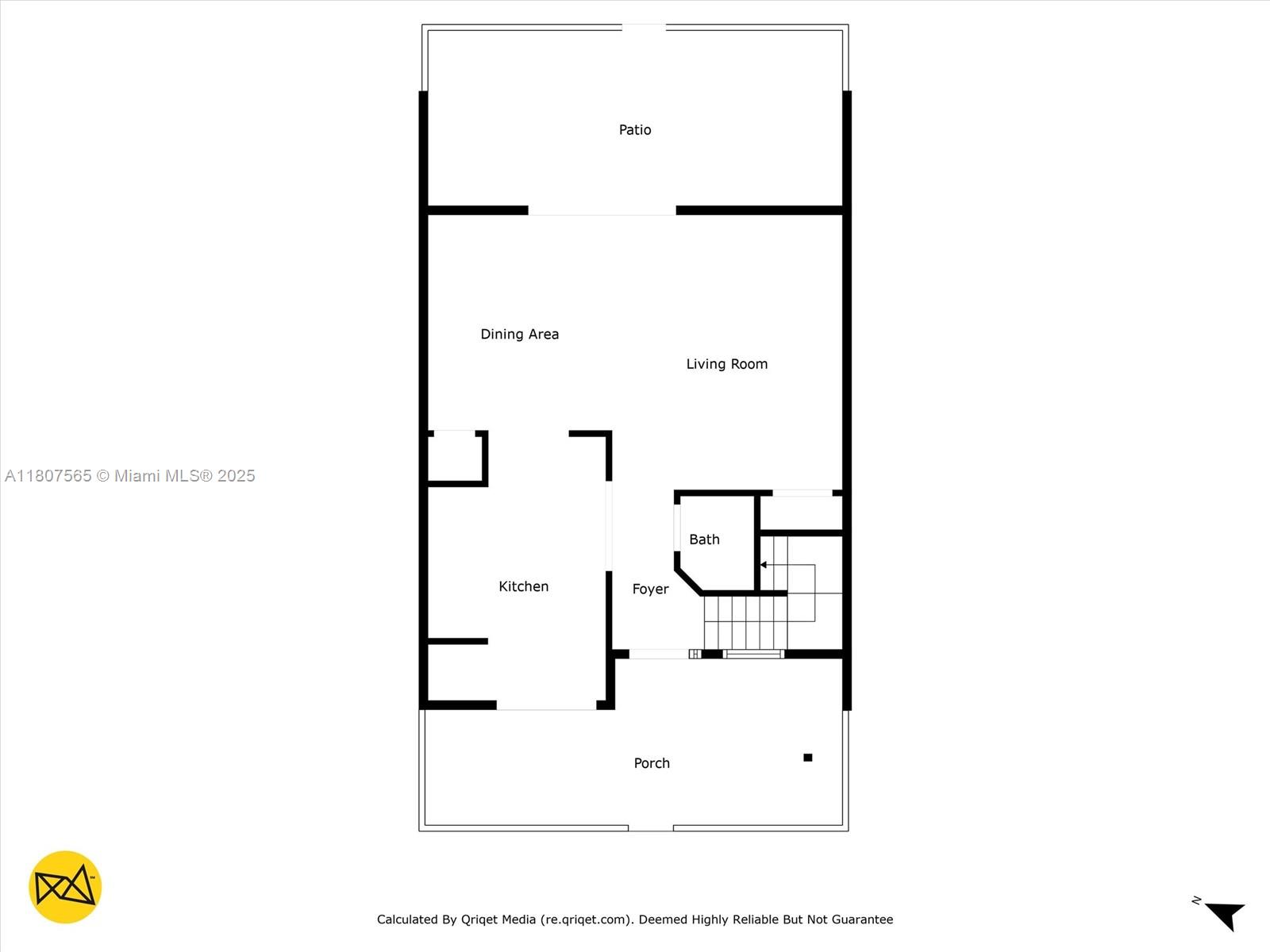
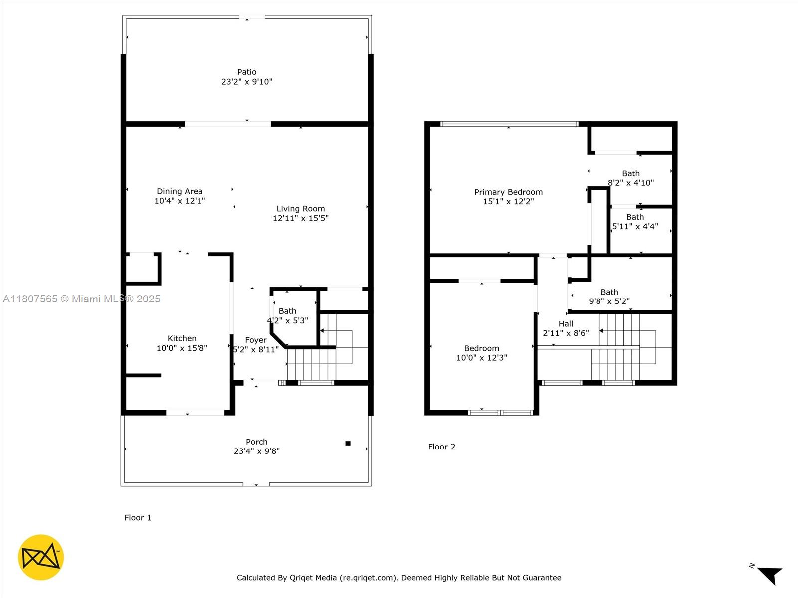
  • Жилая площадь: 1240 фут² / 115 м²
  • Цена за фут/метр: $279 / $3,003
  • Комнаты:2
  • Полных ванн:2
  • Неполных ванн:1
  • Обслуживание:$460
  • Налоги:$5,778
  • Год строительства:1986
  • Дата публикации:May 21, 2025
  • Дата продажи: July 31, 2025
  • Дней на рынке:70

Описание


Beautifully updated 2BD | 2.5BA townhome in the sought-after Tanglewood community of Pembroke Pines! This home features tile flooring throughout, granite countertops, stainless steel appliances, and an in-unit washer/dryer. Enjoy a spacious layout with updated bathrooms and a newer roof. Step outside to your private patio. HOA covers exterior painting, landscaping, tree trimming, pool, and upcoming paver driveways. FHA/VA approved and centrally located near shopping and major highways—schedule your showing today!

Особенности


  • Полы:Tile
  • Интерьер:BuiltInFeatures, FirstFloorEntry, MainLivingAreaEntryLevel, UpperLevelPrimary
  • Экстерьер:Fence, Patio

Расположение


Запросить информацию
Людмила Богатов
Людмила Богатов
Брокер по недвижимости

Другие дома в Пемброк Пайнс


8916 Sw 19th St
Miramar, FL 33025
$355,000
716 Sw 122nd Ave
Pembroke Pines, FL 33025
$425,000
8948 Sw 19th St, Unit 909
Miramar, FL 33025
$320,000
8353 Sw 26th St, Unit 104
Miramar, FL 33025
$335,000