Sector 3 Parcels C D E 4 bedroom Single Family House For Sale
1070 Briar Ridge Rd, Weston, FL 33327

$775,000
Продано
Людмила Богатов
Людмила Богатов
Брокер по недвижимости

Детали


  • МЛС номер:A11802389
  • Виртуальный тур: Да
  • Цена предложения: $775,000
  • Цена продажи: $775,000
  • Жилая площадь: 1904 фут² / 177 м²
  • Цена за фут/метр: $407 / $4,381
  • Комнаты:4
  • Полных ванн:2
  • Неполных ванн:1
  • Обслуживание:$490
  • Налоги:$6,714
  • Год строительства:1996
  • Дата публикации:May 27, 2025
  • Дата продажи: October 15, 2025
  • Дней на рынке:140

Описание


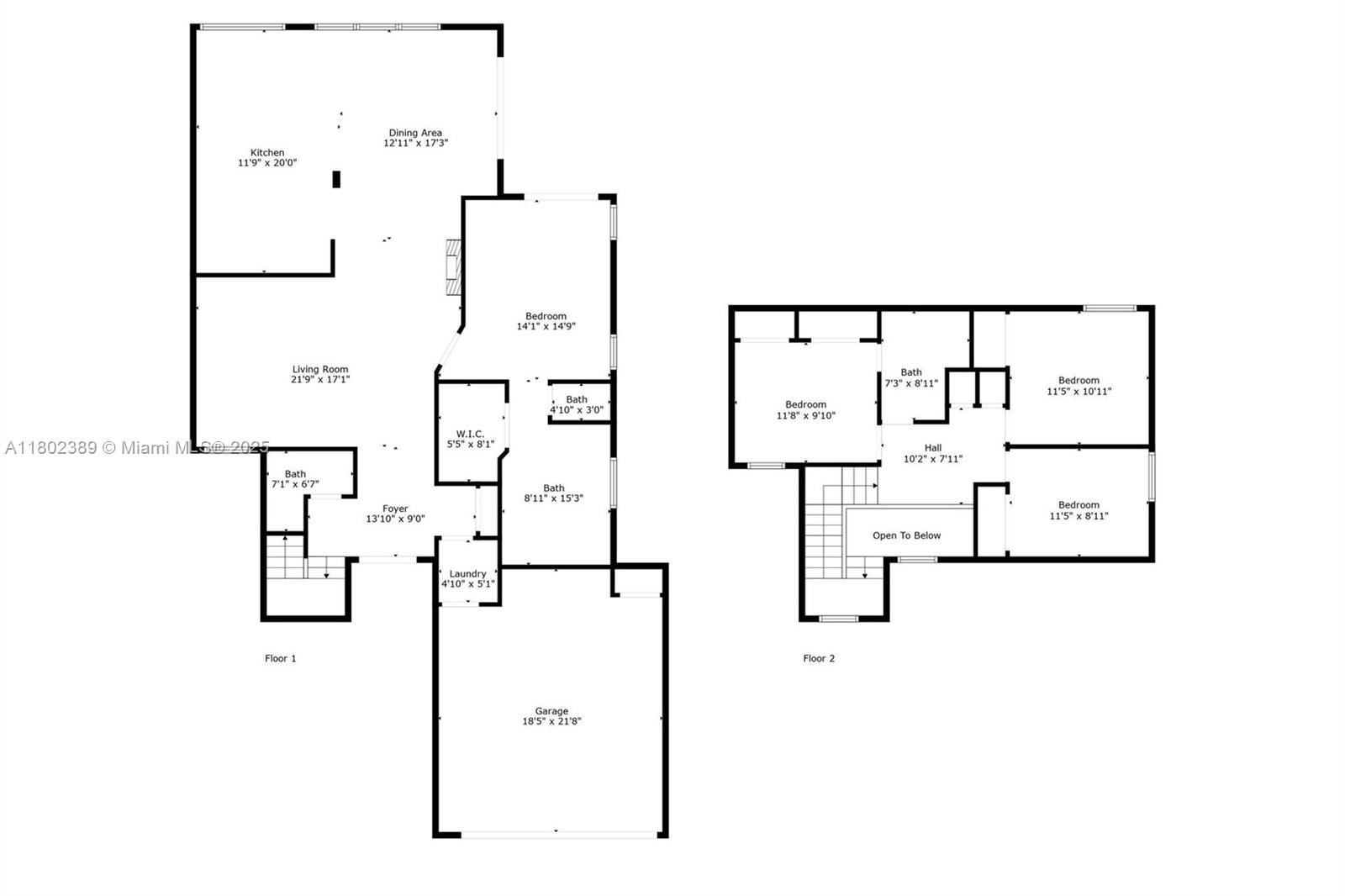
Beautiful 4-bed, 2.5-bath home in The Falls, Weston, nestled on a quiet cul-de-sac in a guard-gated community. This updated home also has a Roof & AC approximately 6.5 years new. Master suite on the first floor features a custom closet & upgraded bath with large shower and dual sinks. Upstairs offers three spacious bedrooms and a fully renovated bathroom. Open floor plan with high ceilings & abundant natural light. Updated kitchen with updated appliances, wood cabinets, and granite countertops. Extended covered patio perfect for entertaining, with plenty of space for a pool, gazebo and more. Tile flooring on the first floor, vinyl on stairs and second floor. Additional features include newer roof, AC, recessed lighting, updated half bath downstairs, laundry room under air, & 2-car garage.

Особенности


  • Полы:Tile, Vinyl
  • Интерьер:BuiltInFeatures, BedroomOnMainLevel, BreakfastArea, ClosetCabinetry, DualSinks, EatInKitchen, FirstFloorEntry, LivingDiningRoom, MainLevelPrimary, WalkInClosets, Attic
  • Экстерьер:Lighting, Patio, RoomForPool, SecurityHighImpactDoors, StormSecurityShutters

Расположение


Запросить информацию
Людмила Богатов
Людмила Богатов
Брокер по недвижимости

Другие дома в Вестон


627 Willow Bend Rd
Weston, FL 33327
$959,900
1646 Victoria Pointe Ln
Weston, FL 33327
$1,625,000
1668 Winterberry Ln
Weston, FL 33327
$825,000
1142 Croton Ct
Weston, FL 33327
$865,000