Cove Homesites 5 bedroom Single Family House For Sale
5840 Sw 19th St, Plantation, FL 33317

$910,000
Продано
Людмила Богатов
Людмила Богатов
Брокер по недвижимости

Детали


  • МЛС номер:A11833366
  • Виртуальный тур: Да
  • Цена предложения: $950,000
  • Цена продажи: $910,000
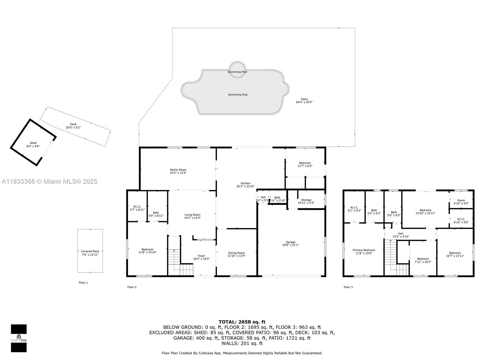
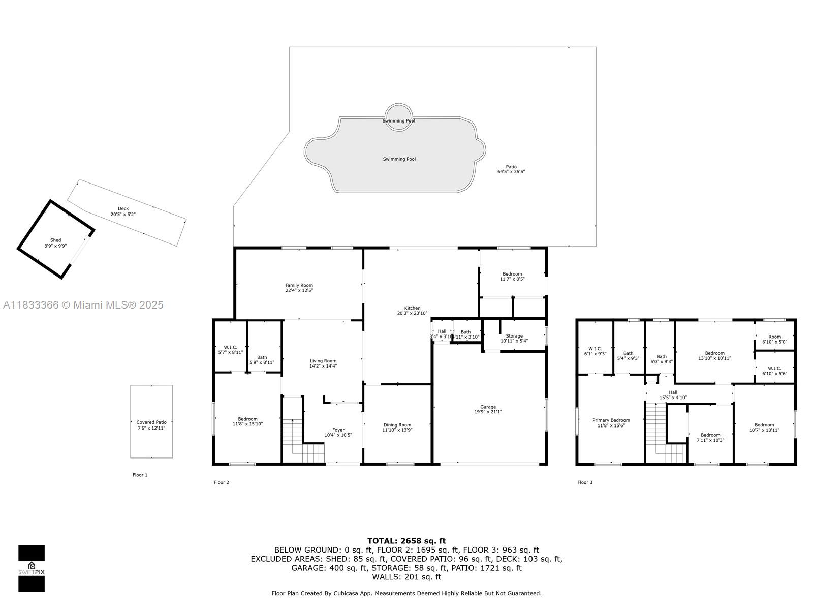
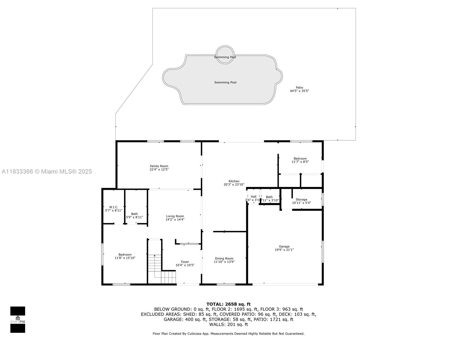
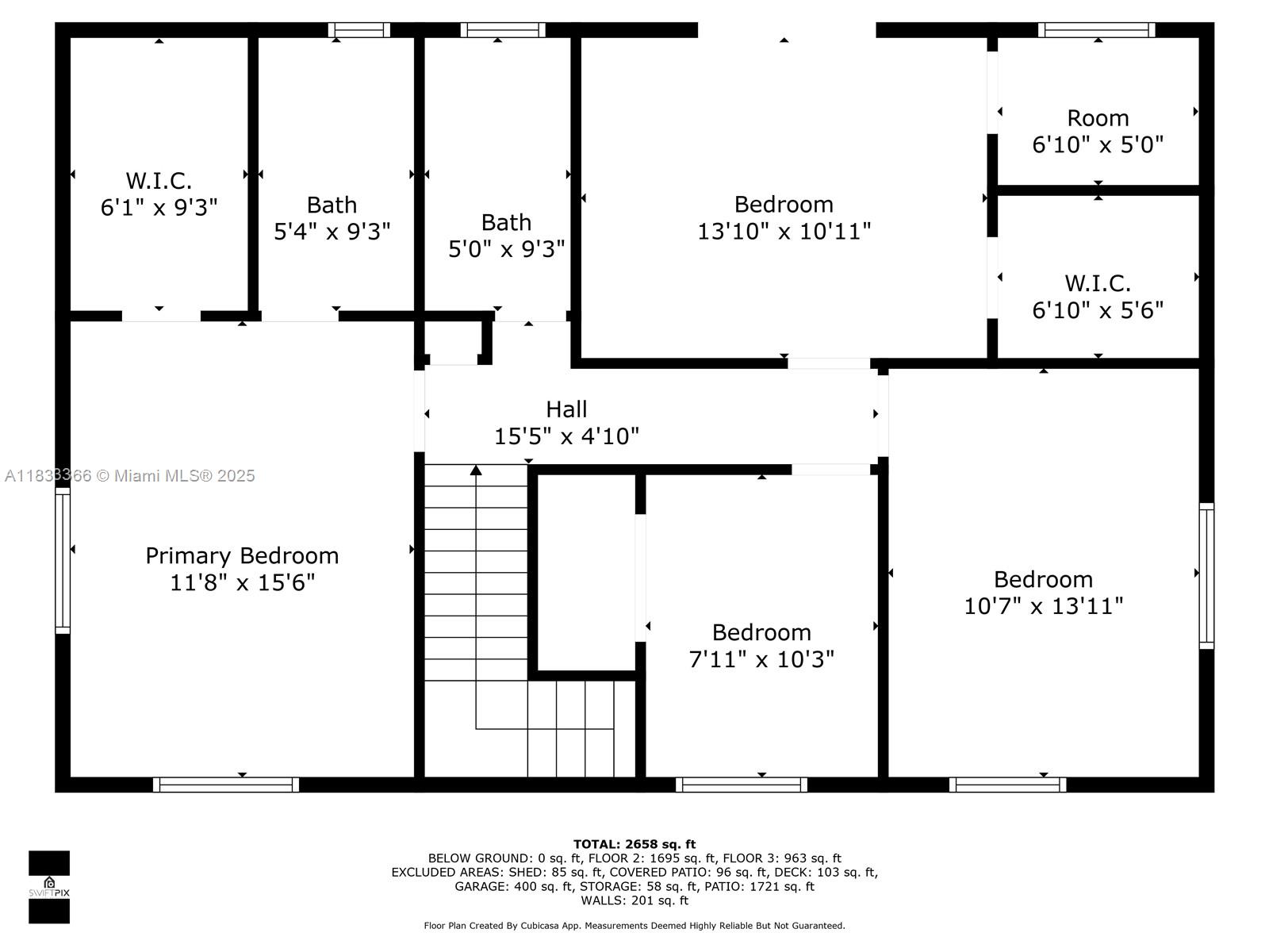
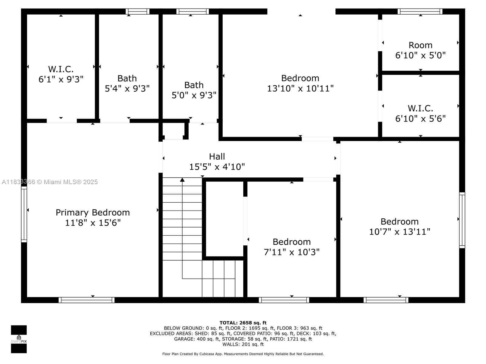
  • Жилая площадь: 2672 фут² / 248 м²
  • Цена за фут/метр: $341 / $3,666
  • Комнаты:5
  • Полных ванн:3
  • Неполных ванн:1
  • Налоги:$5,184
  • Год строительства:1970
  • На канале:Да
  • Дата публикации:July 7, 2025
  • Дата продажи: March 2, 2026
  • Дней на рынке:237

Описание


OCEAN ACCESS. Waterfront living in Plantation Isles! This 5-bed, 3.5-bath home sits on one of the nicest lots in the entire subdivision—nearly 1/3 of an acre—with an oversized 2-car garage, large driveway, and side yard parking perfect for your boat or RV. The huge, private yard offers a saltwater pool and a 30 ft private dock… just two fixed bridges to the ocean. Features include impact windows and doors, a metal roof...2017, tile flooring, an open kitchen with ample counter space, a formal dining area, and two master suites with walk-in closets. Located in a quiet, established neighborhood and close to everything—this is true South Florida living. Enjoy nearby golf courses, top-rated dining, major retail, and unbeatable convenience with the international airport just 15 minutes away and quick access to all major highways.

Особенности


  • Полы:Tile
  • Интерьер:BedroomOnMainLevel, DiningArea, SeparateFormalDiningRoom, FrenchDoorsAtriumDoors, FirstFloorEntry, Pantry, UpperLevelPrimary, WalkInClosets
  • Экстерьер:Balcony, Deck, Fence, SecurityHighImpactDoors
  • На канале:FixedBridge, OceanAccess

Расположение


Запросить информацию
Людмила Богатов
Людмила Богатов
Брокер по недвижимости

Другие дома в Плантейшен


2200 Sw 42nd Way
Fort Lauderdale, FL 33317
$499,999
791 Sw 75th Terrace
Plantation, FL 33317
$1,290,000
5700 Cypress Rd
Plantation, FL 33317
$4,995,000
661 Nw 66th Ave
Plantation, FL 33317
$849,900