Lakes Of Western Pines Re 3 bedroom Single Family House For Sale
1248 Nw 170th Ave, Pembroke Pines, FL 33028

$650,000
Продано
Людмила Богатов
Людмила Богатов
Брокер по недвижимости

Детали


  • МЛС номер:A11839911
  • Виртуальный тур: Да
  • Цена предложения: $650,000
  • Цена продажи: $650,000
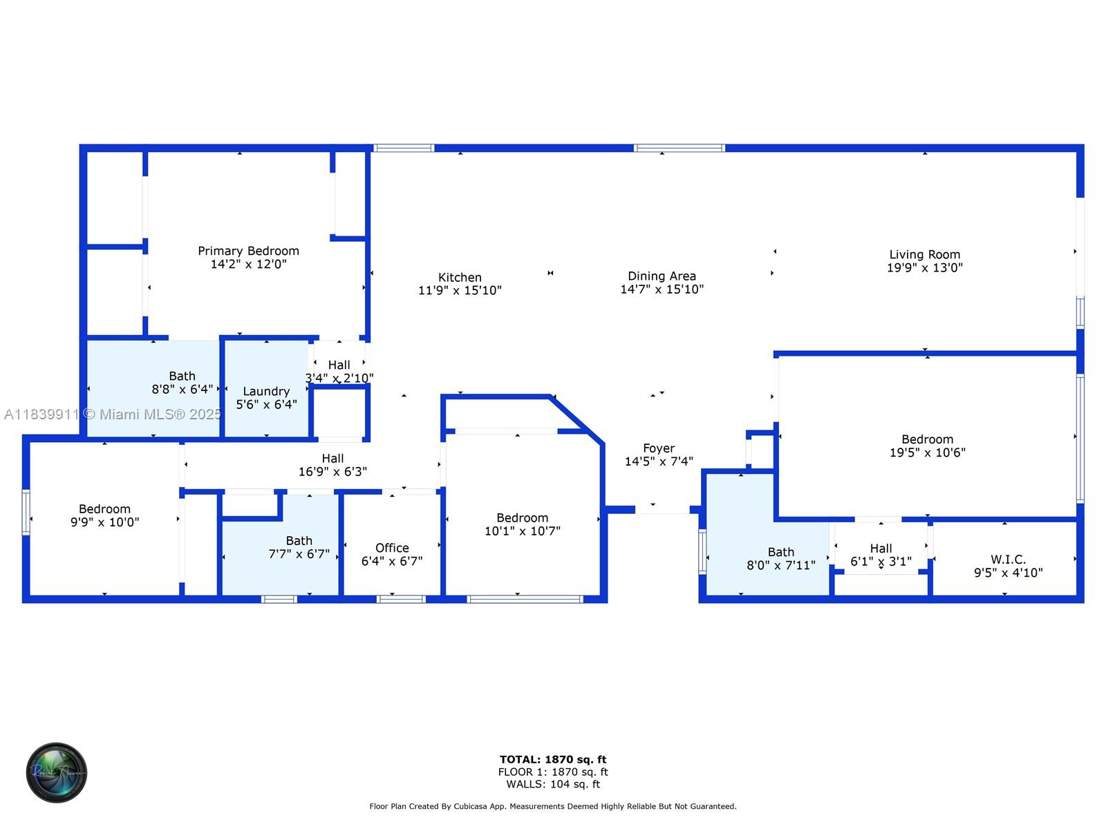
  • Жилая площадь: 1633 фут² / 152 м²
  • Цена за фут/метр: $398 / $4,284
  • Комнаты:3
  • Полных ванн:2
  • Обслуживание:$395
  • Налоги:$8,019
  • Год строительства:1997
  • Дата публикации:July 14, 2025
  • Дата продажи: August 15, 2025
  • Дней на рынке:31

Описание


Welcome to this updated 3/2 single-family home in the gated community of Pembroke Isles. It’s truly move-in ready: new roof (2024), impact windows, newer A/C system, fresh interior and exterior paint, and a newly fenced yard. Inside, you’ll find a renovated kitchen with upgraded appliances, remodeled bathrooms, and smart switches throughout. The garage has been converted into a 1/1 bath, for additional living space. Enjoy resort-style amenities including a clubhouse, gym, 3 pools, tennis, pickleball, playgrounds, and more. HOA includes cable, internet, alarm, lawn care, and 24/7 security. Seller is offering $10,000.00 toward buyer’s closing costs.

Особенности


  • Полы:CeramicTile, Tile
  • Интерьер:BedroomOnMainLevel, FirstFloorEntry
  • Экстерьер:Fence, SecurityHighImpactDoors, TennisCourts

Расположение


Запросить информацию
Людмила Богатов
Людмила Богатов
Брокер по недвижимости

Другие дома в Пемброк Пайнс


574 Nw 159th Ave
Pembroke Pines, FL 33028
$744,000
680 Nw 159th Ave
Pembroke Pines, FL 33028
$749,000
16543 Nw 5th Ct
Pembroke Pines, FL 33028
$629,900
15657 Nw 12th Mnr
Pembroke Pines, FL 33028
$635,000