Sector 6 4 bedroom Single Family House For Sale
1204 Bayview Cir, Weston, FL 33326

$775,000
Продано
Людмила Богатов
Людмила Богатов
Брокер по недвижимости

Детали


  • МЛС номер:A11840164
  • Виртуальный тур: Да
  • Цена предложения: $799,900
  • Цена продажи: $775,000
  • Жилая площадь: 2070 фут² / 192 м²
  • Цена за фут/метр: $374 / $4,030
  • Комнаты:4
  • Полных ванн:2
  • Неполных ванн:1
  • Обслуживание:$138
  • Налоги:$10,318
  • Год строительства:1991
  • На канале:Да
  • Дата публикации:July 15, 2025
  • Дата продажи: October 20, 2025
  • Дней на рынке:96

Описание


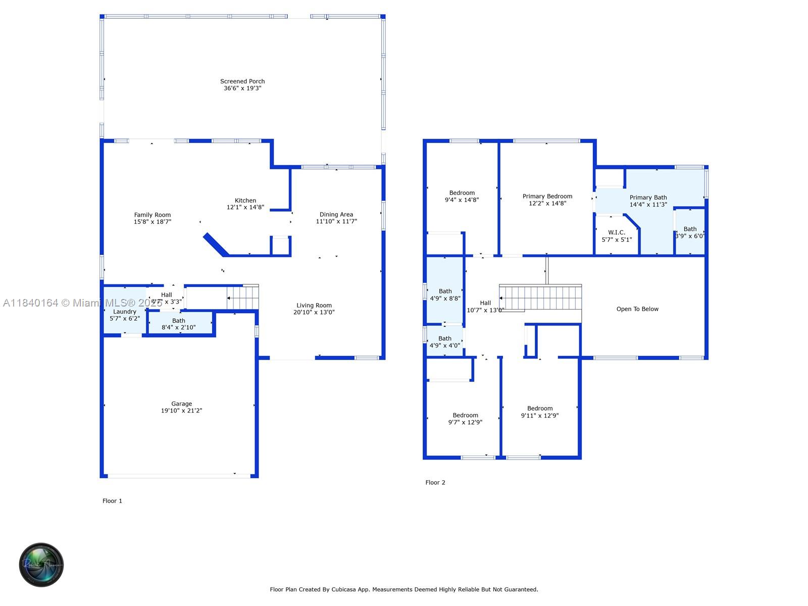
Welcome to this beautiful 4BR/2.5BA home in the sought-after Hibiscus Island community in Weston, offering serene lake views from the large screened-in lanai. The spacious primary suite features charming farmhouse doors leading to a fully renovated bathroom with dual sinks, a soaking tub, separate shower, & two closets. All bedrooms are located upstairs with two full baths, while a half bath is conveniently situated downstairs. Extensive updates include a NEW KITCHEN (2022), IMPACT GARAGE DOOR (2023), NEW A/C (2024), NEW ELECTRICAL PANEL, New Light Fixtures throughout, New Stainless Steel Appliances, NEW LAMINATE FLOORING on the second floor & the garage is equipped with EV charging. Zoned for all “A” rated schools, close to shops, dining, top rated hospitals and minutes to major highways.

Особенности


  • Полы:CeramicTile, Hardwood, Wood
  • Интерьер:BreakfastBar, BreakfastArea, DualSinks, FrenchDoorsAtriumDoors, FirstFloorEntry, LivingDiningRoom, SeparateShower, UpperLevelPrimary
  • Экстерьер:EnclosedPorch, Patio, RoomForPool, StormSecurityShutters
  • На канале:LakeFront, LakePrivileges

Расположение


Запросить информацию
Людмила Богатов
Людмила Богатов
Брокер по недвижимости

Другие дома в Вестон


362 Lake Crest Ct
Weston, FL 33326
$1,125,000
1025 Creekford Dr
Weston, FL 33326
$1,235,000
1115 Camellia Cir
Weston, FL 33326
$1,159,000
1102 Camellia Cir
Weston, FL 33326
$950,000