Irons Manor 3Rd Addn 3 bedroom Single Family House For Sale
12790 Ne 10 Ave, North Miami, FL 33161

$365,000
Продано
Людмила Богатов
Людмила Богатов
Брокер по недвижимости

Детали


  • МЛС номер:A11843037
  • Виртуальный тур: Да
  • Цена предложения: $369,000
  • Цена продажи: $365,000
  • Жилая площадь: 1750 фут² / 163 м²
  • Цена за фут/метр: $209 / $2,245
  • Комнаты:3
  • Полных ванн:2
  • Неполных ванн:1
  • Налоги:$3,791
  • Год строительства:2026
  • Дата публикации:July 18, 2025
  • Дата продажи: January 7, 2026
  • Дней на рынке:172

Описание


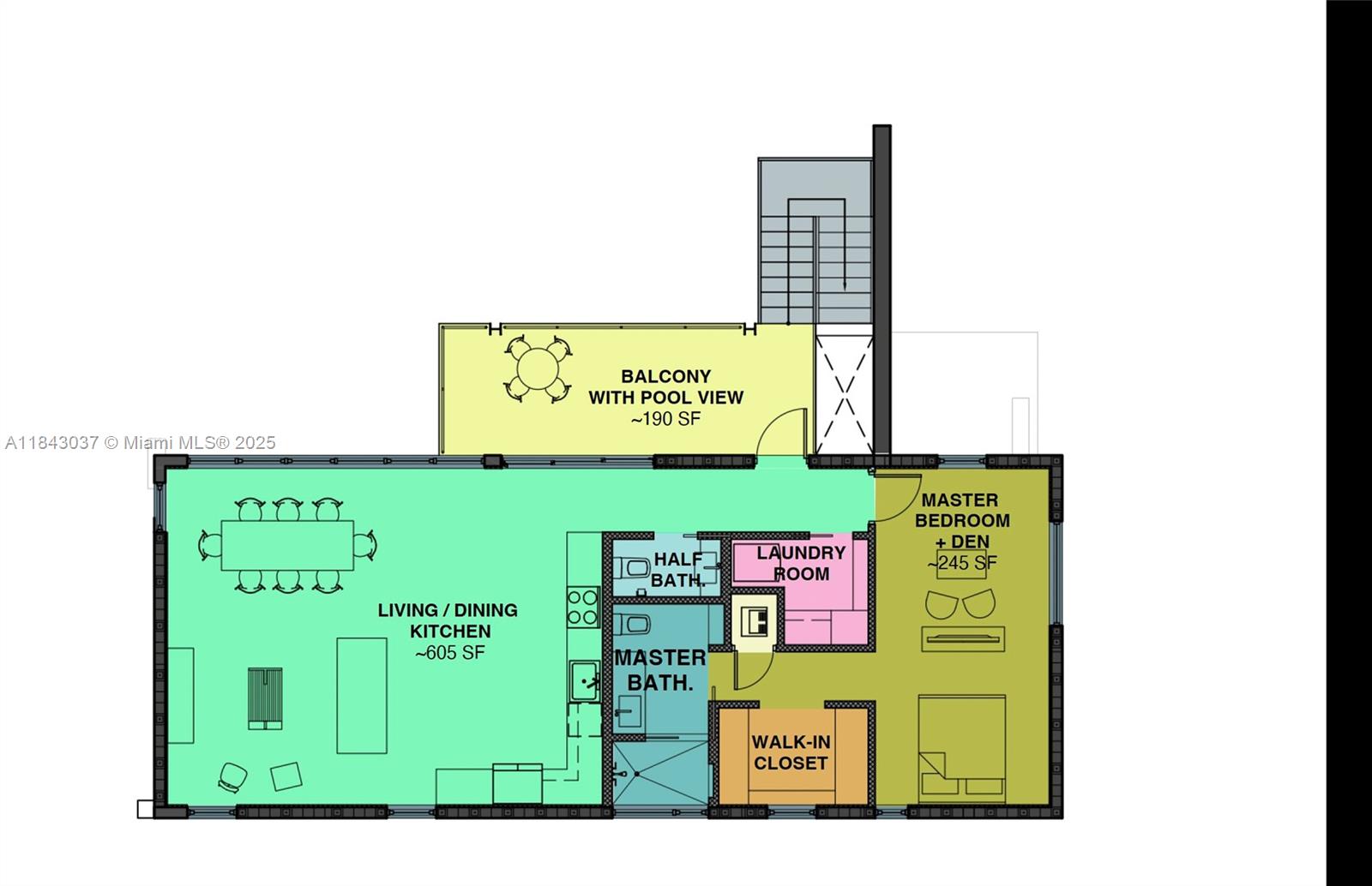
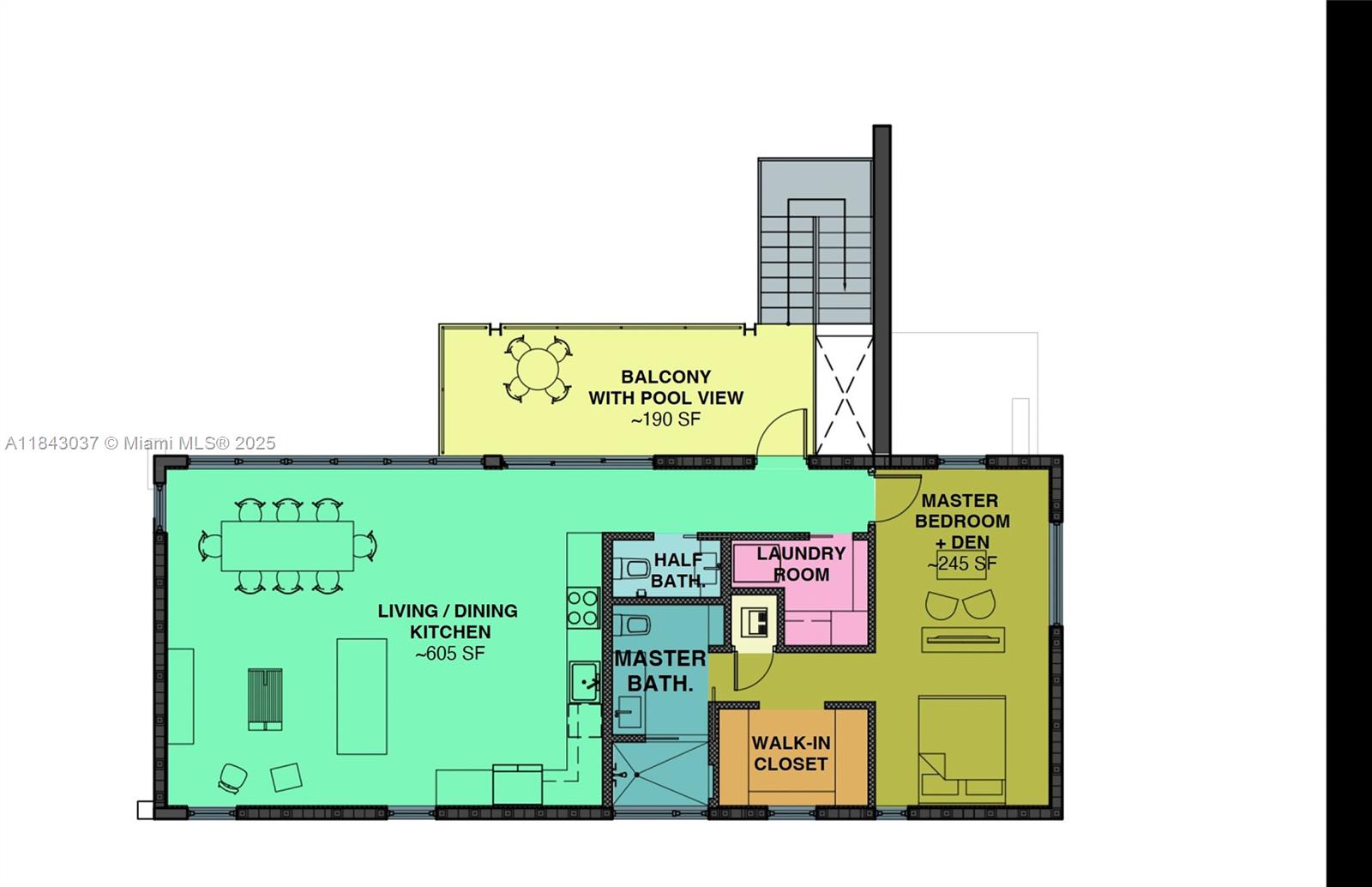
This 7,560 SF Vacant Lot is ready for you to build a brand-new modern house or make a smart investment in your future! The land comes with architectural plans to develop an eco-efficient, tropical, two-story residence featuring a lap pool, expansive terrace and balcony, and a spacious backyard. A rare opportunity to start building with no delays. City water and sewer are available. Located on a quiet street with shade, breezes from the trees, and birdsong—yet just minutes from local shops, restaurants, the BEACH, Bal Harbour, Whole Foods, the Museum of Contemporary Art (MOCA), Biscayne Park, a 22-acre hidden oasis-park, cafes, breweries, and more.

Особенности


  • Полы:Concrete
  • Интерьер:BedroomOnMainLevel, FirstFloorEntry, UpperLevelPrimary
  • Экстерьер:FruitTrees, Patio

Расположение


Запросить информацию
Людмила Богатов
Людмила Богатов
Брокер по недвижимости

Другие дома в Северном Майами


295 Ne 150th St
Miami, FL 33161
$799,999
1010 Ne 138th St
North Miami, FL 33161
$795,000
11400 Ne 9th Ave
Biscayne Park, FL 33161
$1,075,000
11144 Ne 8th Ct
Biscayne Park, FL 33161
$1,600,000