Progresso 2 bedroom Single Family House For Sale
1100 Ne 17th Ter, Fort Lauderdale, FL 33304

$612,500
Продано
Людмила Богатов
Людмила Богатов
Брокер по недвижимости

Детали


  • МЛС номер:A11843628
  • Виртуальный тур: Да
  • Цена предложения: $625,000
  • Цена продажи: $612,500
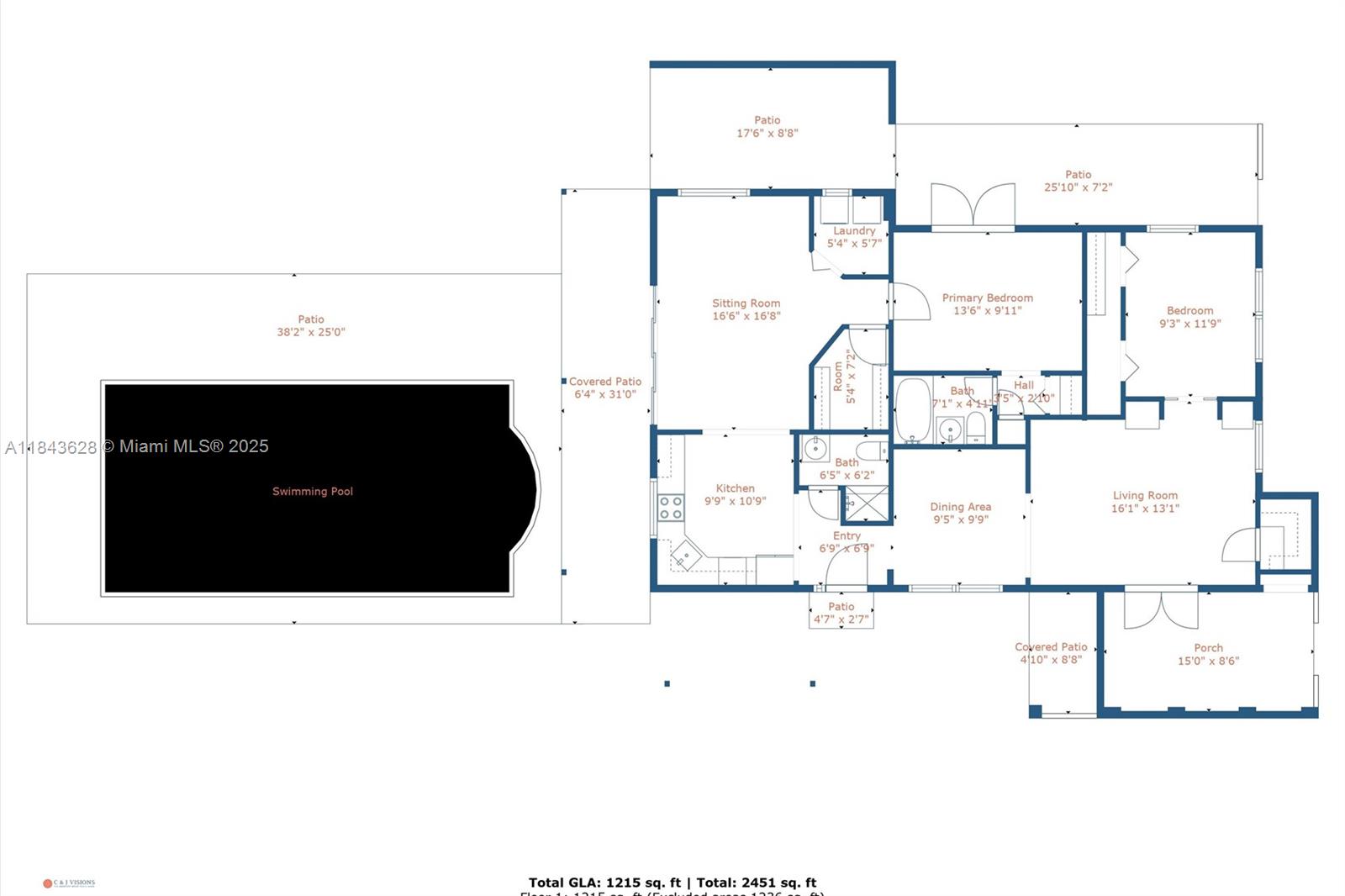
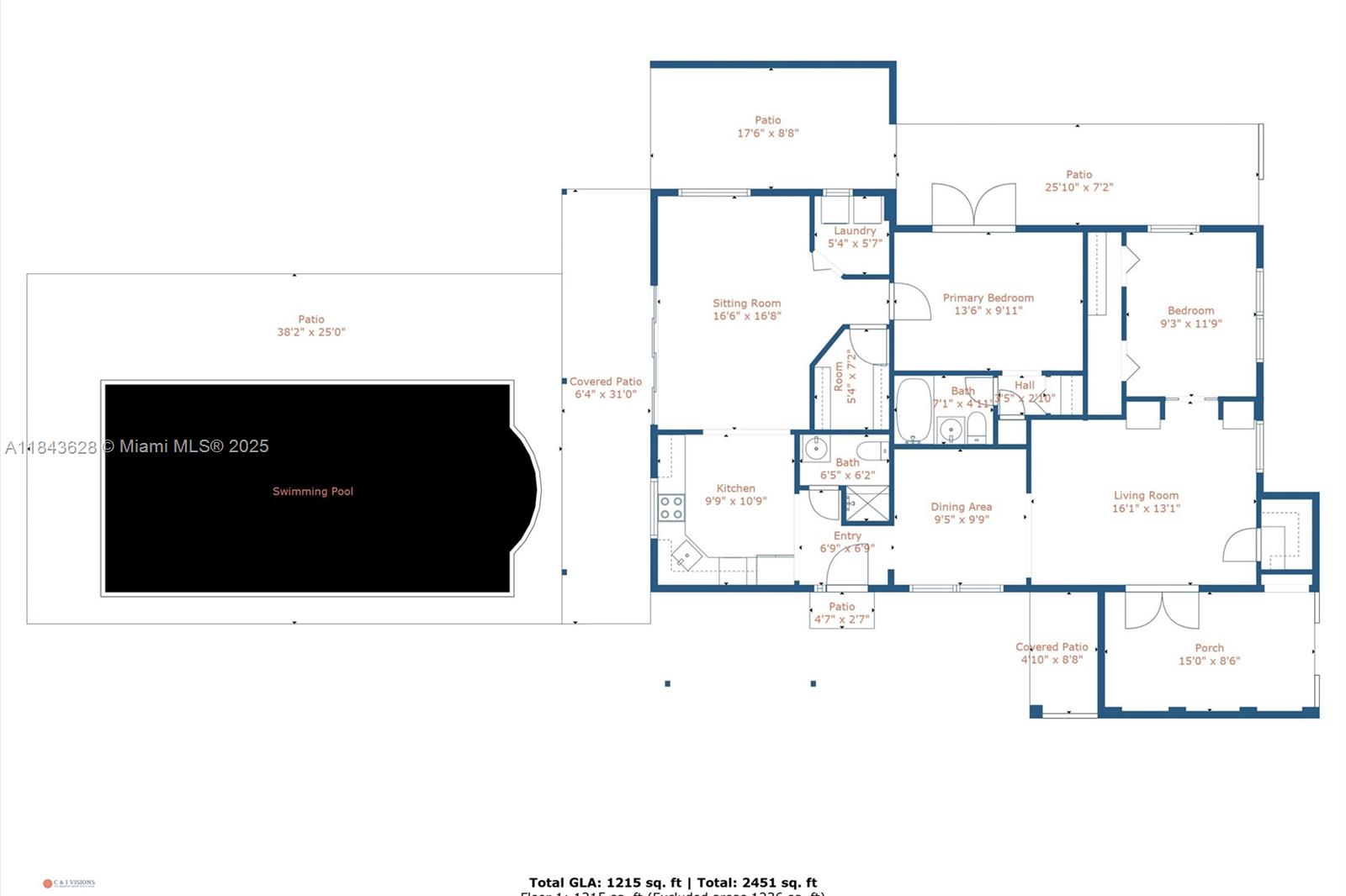
  • Жилая площадь: 1230 фут² / 114 м²
  • Цена за фут/метр: $498 / $5,360
  • Комнаты:2
  • Полных ванн:2
  • Налоги:$15,537
  • Год строительства:1947
  • Дата публикации:July 19, 2025
  • Дата продажи: November 24, 2025
  • Дней на рынке:127

Описание


This charming Mid-Century POOL home on a corner lot in East Fort Lauderdale! Enjoy Las Olas Blvd’s vibrant mix of boutiques, cafes, & restaurants, Fort Lauderdale Beach, Holiday Park w/ IcePlex, Tennis Center, andWar Memorial Auditorium. Conveniently located near schools, highways, public transportation. This home features tile flooring throughout, a formal living & dining room with stained wood ceiling, a large upgraded kitchen with quartz countertops and stainless steel appliances, and a bright poolside family room. The primary bedroom includes an ensuite bath. Also includes a gated courtyard porch, utility and laundry rooms, impact windows, HVAC 2025, and tons of parking. Brand new plumbing throughout. VA and first-time buyer friendly. Excellent potential for short-term rentals.

Особенности


  • Полы:Tile
  • Интерьер:BedroomOnMainLevel, FirstFloorEntry, TubShower
  • Экстерьер:Fence, Porch
Запросить информацию
Людмила Богатов
Людмила Богатов
Брокер по недвижимости

Другие дома в Форт Лодердейл


801 Ne 19th Ter
Fort Lauderdale, FL 33304
$1,050,000
636 Ne 17th Ter
Fort Lauderdale, FL 33304
$1,150,000
1320 N Andrews Ave
Fort Lauderdale, FL 33304
$429,500
1125 Ne 10th Ave
Fort Lauderdale, FL 33304
$615,000