North Links Country Club 4 bedroom Single Family House For Sale
7135 N Augusta Dr, Hialeah, FL 33015

$1,090,000
Продано
Людмила Богатов
Людмила Богатов
Брокер по недвижимости

Детали


  • МЛС номер:A11846379
  • Виртуальный тур: Да
  • Цена предложения: $1,100,000
  • Цена продажи: $1,090,000
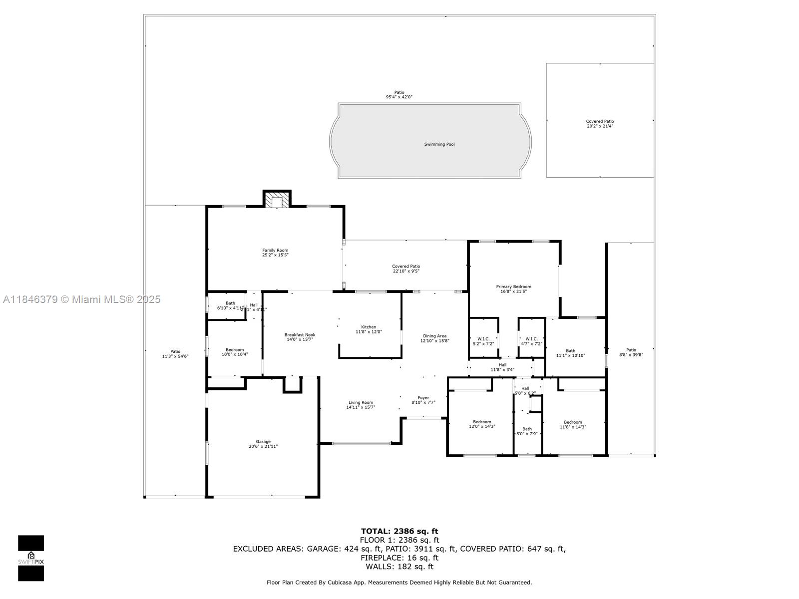
  • Жилая площадь: 2553 фут² / 237 м²
  • Цена за фут/метр: $427 / $4,596
  • Комнаты:4
  • Полных ванн:3
  • Налоги:$10,638
  • Год строительства:1986
  • На канале:Да
  • Дата публикации:July 24, 2025
  • Дата продажи: September 4, 2025
  • Дней на рынке:41

Описание


You have found the place you will call home in this 4/3 single family home perfect for entertaining family & friends at BBQs & holidays in the large size backyard w/ a covered terrace plus a tiki hut equipped w/ surround sound, TV, fans & adjacent to the saltwater pool for those hot summer days. Own a jet ski or small boat? There is room for them as well. The property also features accordion shutters, approx. 3 yr. old roof w/ 10 yr. warranty, two A/C units approx. 4 yrs. old, tankless water heater, water softener/filter system, porcelain flooring throughout, wood kitchen cabinets, stainless steel appliances, circular driveway w/ recently installed pavers that accommodates several vehicles, camara system included in the sale & so much more. See it ... love it ... make it your own!

Особенности


  • Полы:Tile
  • Интерьер:BedroomOnMainLevel, FirstFloorEntry, Fireplace, LivingDiningRoom, MainLevelPrimary
  • Экстерьер:Fence, Lighting, StormSecurityShutters
  • На канале:CanalFront

Расположение


Запросить информацию
Людмила Богатов
Людмила Богатов
Брокер по недвижимости

Другие дома в Хайалиа


20102 Nw 62nd Ave
Hialeah, FL 33015
$830,000
8540 Nw 182nd St
Hialeah, FL 33015
$865,000
19897 Nw 62nd Ave
Hialeah, FL 33015
$680,000
6010 Nw 201st Ln
Hialeah, FL 33015
$719,900