Guardian Estates 4 bedroom Single Family House For Sale
10476 Sw 52nd St, Cooper City, FL 33328

$792,000
Продано
Людмила Богатов
Людмила Богатов
Брокер по недвижимости

Детали


  • МЛС номер:A11849789
  • Виртуальный тур: Да
  • Цена предложения: $760,000
  • Цена продажи: $792,000
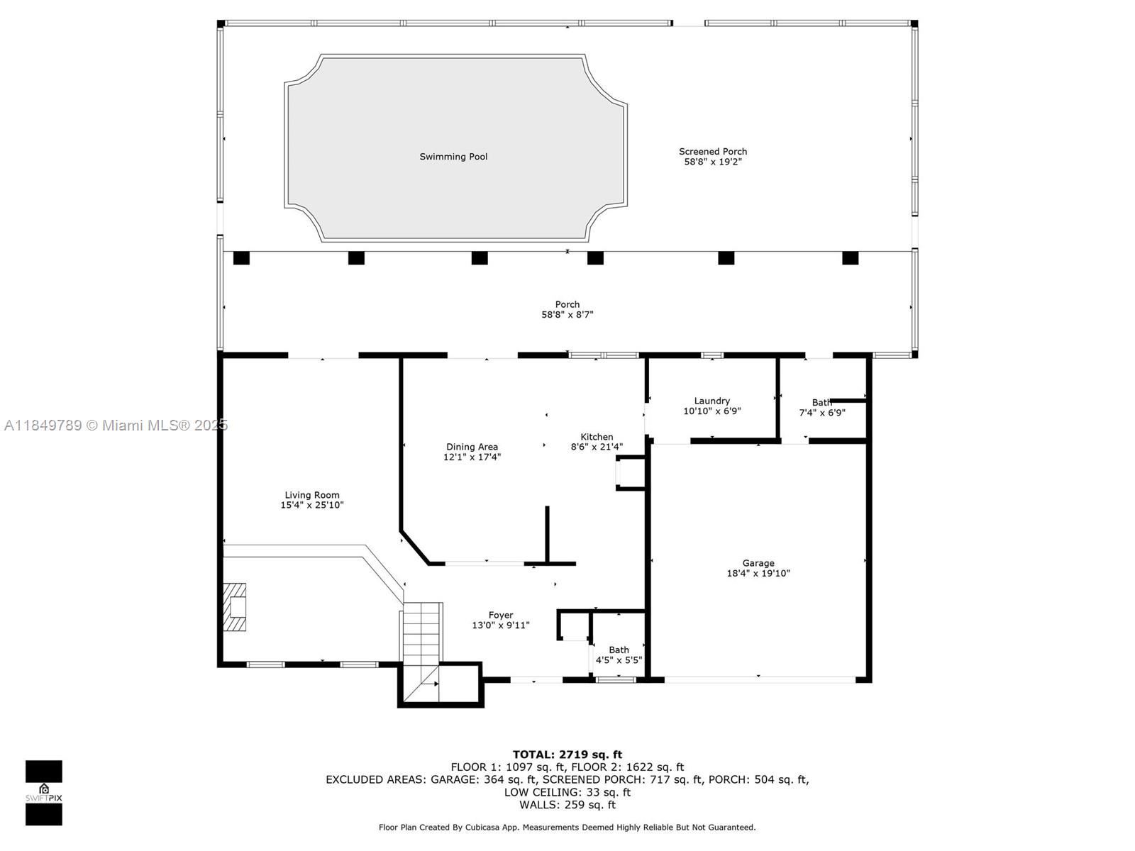
  • Жилая площадь: 2501 фут² / 232 м²
  • Цена за фут/метр: $317 / $3,409
  • Комнаты:4
  • Полных ванн:2
  • Неполных ванн:2
  • Налоги:$5,352
  • Год строительства:1976
  • На канале:Да
  • Дата публикации:July 30, 2025
  • Дата продажи: November 3, 2025
  • Дней на рынке:95

Описание


Welcome to your dream home in the heart of Cooper City! This stunning 4-bedroom, 2 full bath & 2 half bath waterfront pool home offers the perfect blend of luxury, comfort & functionality. Nestled in one of South Florida’s most sought-after cities and located within a top school district, this 2-story gem is a true must-see! The screened-in pool and patio area is surrounded by lush landscaping and a variety of fruit trees, creating your own private oasis. Enjoy Florida living at its finest with a spacious patio ideal for relaxing or hosting guests. Circular driveway, some impact windows, Roof (2018); Solar Panels (2019) two A/C Units; EV Charger, huge Shed!. $31 per month to City for canal maintenance. ***GREAT BONES JUST NEEDS SOME UPDATING and TLC**** ALREADY PRICED BELOW MARKET!

Особенности


  • Полы:Carpet, Laminate, Other, Tile
  • Интерьер:BreakfastBar, Bidet, BreakfastArea, DiningArea, SeparateFormalDiningRoom, EntranceFoyer, FirstFloorEntry, Fireplace, Other, SittingAreaInPrimary, UpperLevelPrimary, VaultedCeilings, WalkInClosets, Workshop
  • Экстерьер:Fence, FruitTrees, Lighting, Porch, Patio, Shed, ShuttersElectric
  • На канале:CanalFront

Расположение


Запросить информацию
Людмила Богатов
Людмила Богатов
Брокер по недвижимости

Другие дома в Купер Сити


2723 E Abiaca Cir
Davie, FL 33328
$1,049,000
4940 Sw 94th Way
Cooper City, FL 33328
$740,000
8674 Sw 50th St
Cooper City, FL 33328
$775,000
10386 Sw 57th Ct
Cooper City, FL 33328
$1,849,000