Doral Commons Residential 5 bedroom Single Family House For Sale
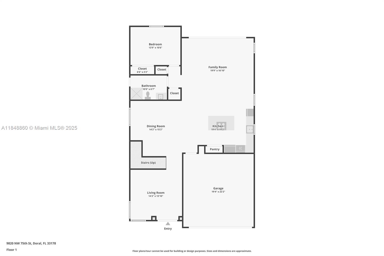
9820 Nw 75th St, Doral, FL 33178

$1,300,000
Продано
Людмила Богатов
Людмила Богатов
Брокер по недвижимости

Детали


  • МЛС номер:A11848860
  • Виртуальный тур: Да
  • Цена предложения: $1,450,000
  • Цена продажи: $1,300,000
  • Жилая площадь: 3113 фут² / 289 м²
  • Цена за фут/метр: $418 / $4,495
  • Комнаты:5
  • Полных ванн:5
  • Обслуживание:$711
  • Налоги:$17,252
  • Год строительства:2016
  • Дата публикации:July 31, 2025
  • Дата продажи: September 15, 2025
  • Дней на рынке:45

Описание


Modern Single Family House with 5 Bedrooms & 5 Bathrooms located in a prime corner lot at Modern45 -Doral. This house features open living spaces, an Italian-style open kitchen with a quartz countertop, and Bosh Appliances. The Entry is on the first floor, offering a full bedroom and a full bathroom. The first floor has Porcelain throughout, the second level has a wood floor and, includes 4 bedrooms, each with a private bathroom and a Laundry room. The large patio with a private pool is the center for your family to enjoy. Furniture is for sale. EASY TO SHOW !!

Особенности


  • Полы:Hardwood, Tile, Wood
  • Интерьер:BedroomOnMainLevel, EntranceFoyer, FirstFloorEntry, KitchenIsland, WalkInClosets
  • Экстерьер:Balcony, SecurityHighImpactDoors, Patio

Расположение


Запросить информацию
Людмила Богатов
Людмила Богатов
Брокер по недвижимости

Другие дома в Дорал


10561 Nw 67th Ter
Doral, FL 33178
$3,460,000
9980 Nw 74th Ter
Doral, FL 33178
$1,650,000
10873 Nw 71st St
Doral, FL 33178
$1,450,000
4844 Nw 94th Doral Pl
Doral, FL 33178
$4,550,000