Plantation Gardens 3Rd Se 3 bedroom Single Family House For Sale
821 Oleander Dr, Plantation, FL 33317

$650,000
Продано
Людмила Богатов
Людмила Богатов
Брокер по недвижимости

Детали


  • МЛС номер:A11849430
  • Виртуальный тур: Да
  • Цена предложения: $690,000
  • Цена продажи: $650,000
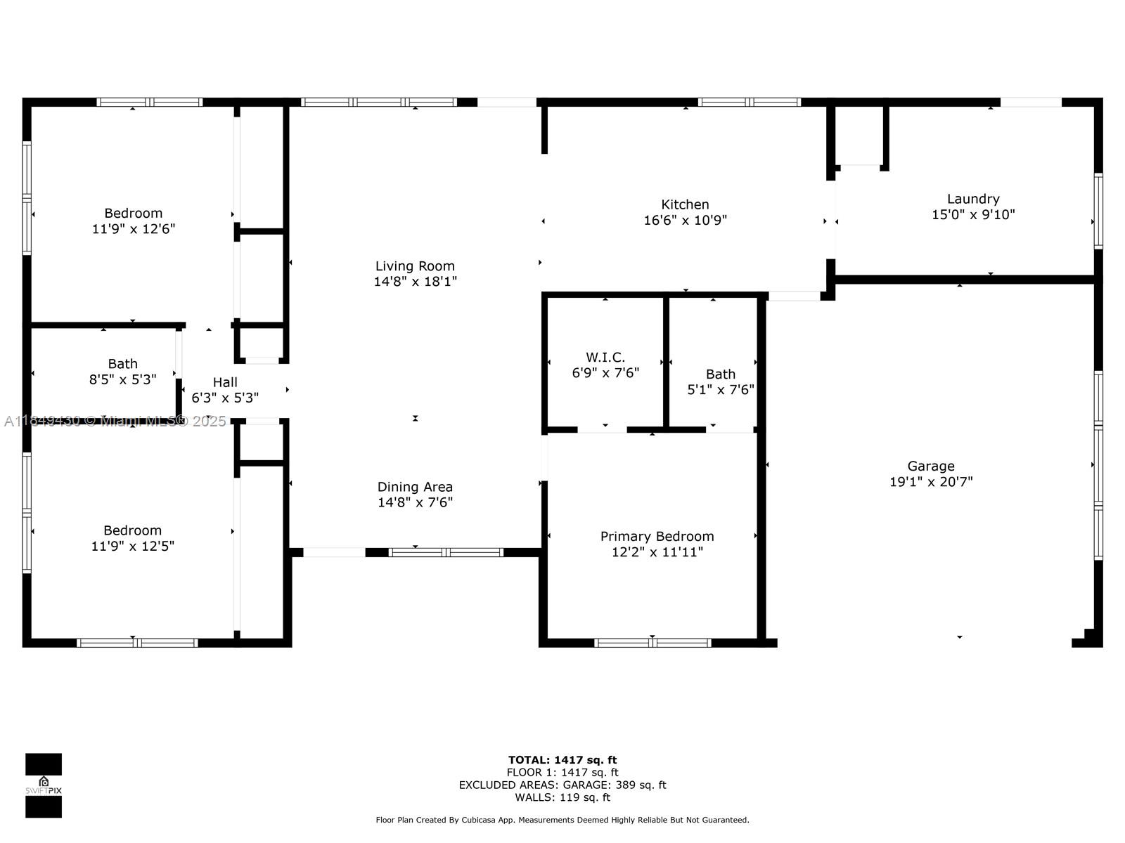
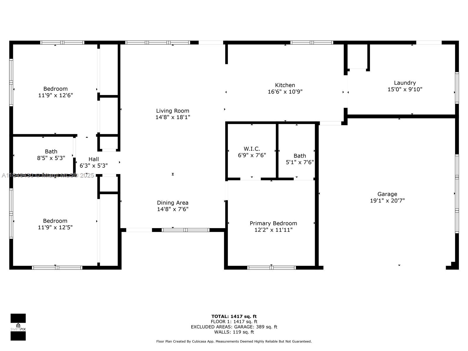
  • Жилая площадь: 1602 фут² / 149 м²
  • Цена за фут/метр: $406 / $4,367
  • Комнаты:3
  • Полных ванн:2
  • Налоги:$7,359
  • Год строительства:1957
  • Дата публикации:August 8, 2025
  • Дата продажи: October 3, 2025
  • Дней на рынке:55

Описание


Welcome to your personal paradise! This light & bright home offers the perfect blend of indoor comfort and outdoor serenity. Nestled on a lush 1/3-acre lot, mature fruit trees offering shade, large covered patio perfect for entertaining and a sparkling pool with cascading waterfall and outdoor shower. Open living area bathed in natural light, spacious galley kitchen with rich wood cabinetry and ample counter space. 3 bedrooms plus extra room, ideal as a laundry room, office, playroom or easily converted to a 4th bedroom, well-maintained with classic finishes. Don’t miss your opportunity to own this home with a rare blend of charm, functionality and tropical tranquility. Pre-approved buyers only please, offers on AS-IS Contract, 7-day inspection period, 15-day loan approval

Особенности


  • Полы:Other
  • Интерьер:BedroomOnMainLevel, FirstFloorEntry, SplitBedrooms
  • Экстерьер:FruitTrees, OutdoorShower, Porch, StormSecurityShutters

Расположение


Запросить информацию
Людмила Богатов
Людмила Богатов
Брокер по недвижимости

Другие дома в Плантейшен


292 Sw 52nd Ave
Plantation, FL 33317
$599,999
1657 Sw 44th Ave
Fort Lauderdale, FL 33317
$440,000
101 Sw 53rd Ave
Plantation, FL 33317
$660,000
1825 Sw 43rd Ave
Fort Lauderdale, FL 33317
$560,000